Реализованные Северо-Восточным бассейновым филиалом инвестиционные проекты
Планируемые и осуществляемые Северо-Восточным бассейновым филиалом инвестиционные проекты
- Морской порт Анадырь
- Морской порт Ванино
- Морской порт Певек (Чукотский автономный округ)
- Поселок городского типа Ванино
Реализованные Северо-Восточным бассейновым филиалом инвестиционные проекты
Одним из основных видов деятельности Северо-Восточного бассейнового филиала ФГУП «Росморпорт» является реализация федеральных инвестиционных программ, а также программ капитальных вложений ФГУП «Росморпорт», направленных на развитие федеральных объектов портовой инфраструктуры в морских портах Анадырь, Ванино, Де-Кастри, Магадан, Николаевск-на-Амуре, Охотск, Певек и Советская Гавань.
В этом направлении Северо-Восточным бассейновым филиалом в рамках осуществления функции заказчика-застройщика, в период с 2003 года по настоящее время реализованы следующие инвестиционные проекты, направленные на улучшение портовой инфраструктуры и качества предоставляемых в морских портах услуг судовладельцам, грузоотправителям и иным пользователям.
Морской порт Ванино
В 2011 году выполнен первый этап реконструкции системы управления движением судов в морском порту Ванино в целях увеличения зоны действия СУДС морского порта Ванино. По итогам выполненных строительно-монтажных работ построен радиотехнический пост в бухте Мучке, заменено морально устаревшее оборудование и программное обеспечение, что позволило улучшить надежность системы и включить в зону действия СУДС морского порта Ванино акваторию бухты Мучке.
В 2012 году выполнен второй этап реконструкции системы управления движением судов в морском порту Ванино в целях увеличения зоны действия СУДС морского порта Ванино. По итогам выполненных строительно-монтажных работ построен радиотехнический пост на сопке Кекурная
, что позволило создать систему связи с судами на дальних подходах к морскому порту Ванино и расширить зону действия СУДС морского порта Ванино на акваторию морского порта Советская Гавань.
|
В 2014 году завершен проект реконструкции объектов Глобальной морской системы связи при бедствии и для обеспечения безопасности в морских районах А1 и А2 на подходах к морскому порту Ванино. Реализация данного проекта, направленная на модернизацию морально устаревшего оборудования, устранение помех в функционировании оборудования в районе морского района А1 акватории морского порта Ванино, расширение района действия оборудования морского района А2, способствовала улучшению качества работы ГМССБ в Татарском проливе.
|
|
|
|
В декабре 2020 года в соответствии с разрешением Росморречфлота от 30.12.2020 № 27-RU27504000-ЗД-39/91-2020 введены в эксплуатацию построенные операционные акватории причалов № 1 и № 2 перегрузочного комплекса и акватория разворотного места общей площадью 28,7 га и отметками дна -19,3 метра, предназначенные для маневрирования и движения судов, что позволило осуществлять судозаходы и безопасную постановку к причалам перегрузочного комплекса судов типа «СН-115» длиной 247 метров, шириной 40,8 метра и осадкой в грузу 15,25 метра. Одновременно была организована якорная стоянка площадью 1,1 тыс. га с отметками глубин от -23 до -33 метров, где безопасно могут осуществлять стоянку суда типа «СН-163», «СН-115», «СН-70» и «СН-40» длиной не более 266 метров, шириной 44 метра и осадкой в грузу 16,5 метра.
![]() |
![]() |
В декабре 2023 года в соответствии с разрешением Росморречфлота от 20.12.2023 № 27-04-БТ-39/93-2023 ФАМРТ введена в эксплуатацию построенная операционная акватория причалов перегрузочного комплекса и акватория разворотного места общей площадью 30,8 га и отметками дна операционной акватории причала № 1: -19,3 метра, операционной акватории причала № 2 и акватории разворотного места: -19,8 метра, предназначенные для маневрирования и движения судов типа «СН-163», «СН-115», «СН-70» и «СН-40» длиной не более 266 метров, шириной 44 метра и осадкой в грузу 16,5 метра. С завершением данного проекта к причалам угольного терминала могут осуществлять подход и безопасную швартовку суда дедвейтом до 130 тыс. тонн, что позволит обеспечить перевалку угля на мощностях угольного терминала до 12 млн тонн в год.
![]() |
Морской порт Де-Кастри
В 2014 году завершен проект строительства объектов морского района А1 Глобальной морской системы связи при бедствии и для обеспечения безопасности на подходах к морскому порту Де-Кастри и системы управления движением судов в морском порту Де-Кастри. Реализация данного проекта позволила выполнить положения Международной конвенции по охране человеческой жизни на море 1974 года в целях повышения уровня безопасности мореплавания в акватории морского порта Де-Кастри, в первую очередь, безопасности судоходства танкеров с нефтяными грузами, следующими от рейдовых мест налива на суда в морском порту Де-Кастри.
|
|
|
|
|
Планируемые и осуществляемые Северо-Восточным бассейновым филиалом инвестиционные проекты
В настоящее время Северо-Восточным бассейновым филиалом в рамках выполнения федеральных целевых программ, а также собственных программ капитальных вложений по развитию объектов портовой инфраструктуры в морских портах Анадырь, Ванино, Де-Кастри, Магадан, Николаевск-на-Амуре, Охотск, Певек и Советская Гавань реализуются следующие инвестиционные проекты в форме капитальных вложений в объекты прибрежно-портовой инфраструктуры:
Морской порт Анадырь
- проект реконструкции пассажирского причала № 7
в морском порту Анадырь. Проектом реконструкции предполагается изменить конфигурацию причала и выполнить строительство контрольно-пропускного пункта. В результате реконструкции пассажирского причала № 7 будет создан паромно-пассажирский терминал, состоящий из 4 причалов: грузопассажирского паромного причала № 1.4 длиной 51 м, шириной 10 м и глубинами у кордона причала 5,1 м; пассажирский причал № 1.3 длиной 66 м, шириной 10 м и глубинами у кордона причала 5,1 м; грузопассажирский паромный причал № 1.2 длиной 51 м, шириной 10 м и глубинами у кордона причала 5,1 м и грузовой паромный причал № 1.1 длиной 61 м, шириной 10 м и глубинами у кордона причала 5,1 м, а также здания КПП. В результате реконструкции общая длина причального фронта будет увеличена до 224 м, что позволит обслуживать грузопассажирские суда длиной до 43 м, шириной до 10,4 м и осадкой в грузу до 4 м, тем самым обеспечив пассажиропоток – 20 тыс. человек в навигацию, грузопоток – 4,2 тыс. легковых автомашин и 1,8 тыс. грузовых автомашин в навигацию.
В установленном порядке проектной организацией проведены общественные слушания по обсуждению проектной документации, включая материалы оценки воздействия на окружающую среду. По итогам состоявшегося обсуждения представленные материалы одобрены с учетом высказанных жителями района замечаний и предложений (протокол общественных слушаний от 04.03.2024, согласованный администрацией городского округа Анадырь). Разработанная проектная документация и результаты инженерных изысканий в установленном порядке были представлены на рассмотрение в Росприроднадзор. По итогам их рассмотрения получено положительное заключение государственной экологической экспертизы от 21.08.2024 № 87-1-01-1-07-0908-24, утвержденное Росприроднадзором. В настоящее время проектную документацию и результаты инженерных изысканий планируется направить на рассмотрение в ФАУ «Главгосэкспертиза России».
При условии получения положительного заключения государственной экспертизы и разрешения на строительство, а также при условии выделения необходимого финансирования начало строительно-монтажных работ запланировано на 2026 год.
|
|
|
Морской порт Ванино
- проект реконструкции береговых сооружений
автомобильно-железнодорожного паромного сообщения «Ванино – Холмск» в морском порту Ванино. Проектом реконструкции существующего паромного комплекса предполагается реконструировать пролетные строения подъемно-переходных мостов, расположенных на причалах № 14 и № 14а, что позволит принимать расчетные суда типа CNF11CPD-LMPP-110/5 длиной 131 м, шириной 20,32 м, осадкой в грузу 6,6 м, расчетной вместимостью 30 вагонов или 71 автомобиль, пассажировместимостью 150 человек. Реализация проекта позволит существенно улучшить пассажирское и транспортное паромное сообщение Сахалина с материковой частью страны, учитывая социально-экономическую важность паромной переправы «Ванино – Холмск» для острова.
В соответствии с требованиями природоохранного законодательства Российской Федерации проектной организацией и Северо-Восточным бассейновым филиалом организованы общественные слушания по обсуждению проекта, включая материалы оценки воздействия на окружающую среду. По результатам состоявшегося обсуждения представленные материалы получили одобрение (протокол проведения общественных обсуждений от 15.03.2016, утвержденный Главой Ванинского муниципального района). В установленном порядке разработанная проектная документация представлена на рассмотрение государственной экологической экспертизы, по результатам которой получено положительное заключение экспертной комиссии государственной экологической экспертизы от 08.09.2016, утвержденное приказом Департамента Росприроднадзора по Дальневосточному федеральному округу от 09.09.2016 № 531, о ее соответствии требованиям природоохранного законодательства Российской Федерации и инструктивно-методических документов в области охраны окружающей среды. Представленная на рассмотрение в ФАУ «Главгосэкспертиза России» проектная документация и результаты инженерных изысканий были возвращены на доработку. Проектная документация после повторного рассмотрения экспертной комиссией государственной экологической экспертизы получила положительное заключение от 04.06.2020, утвержденное приказом Приамурского межрегионального управления Росприроднадзора от 15.06.2020 № 178. После получения положительного заключения государственной экологической экспертизы проектная документация и результаты инженерных изысканий представлены в ФАУ «Главгосэкспертиза России» для прохождения государственной экспертизы. Рассмотрев полученные документы, экспертной комиссией было сформировано отрицательное заключение государственной экспертизы от 08.10.2021 № 27-1-2-3-058462-2021, утвержденное ФАУ «Главгосэкспертиза России».
По итогам доработки проектной документации она и результаты инженерных изысканий были повторно представлены на рассмотрение государственной экспертизы в ФАУ «Главгсэкспертиза России». По итогам рассмотрения доработанных проектных материалов получено положительное заключение повторной государственной экспертизы, включая проведение проверки достоверности определения сметной стоимости объекта капитального строительства, от 23.09.2022 № 27-1-1-3-068092-2022, утвержденное ФАУ «Главгосэкспертиза России», которым установлено соответствие результатов инженерных изысканий требованиям технических регламентов, соответствие проектной документации результатам инженерных изысканий, заданию на проектирование и иным установленным требованиям, достоверность определения сметной стоимости объекта реконструкции.
На основании полученных положительных заключений государственных экспертиз Росморречфлотом выдано разрешение на строительство от 04.12.2023 № 27-04-БТ-39/87-2023-ФАМРТ.
Информация о ходе реализации проекта представлена в разделе «Объекты портовой инфраструктуры».
|
|
|
- проект строительства 2 очереди действующего транспортно-перегрузочного комплекса
в морском порту Ванино в бухте Мучке. Инвестиционным проектом в части обязательств предприятия предполагается выполнить дноуглубительные работы по созданию зон маневрирования судов у планируемого к строительству пирса № 5а морского порта Ванино с отметками дна -17,8 метра на площади 23,9 га, что позволит осуществлять безопасное маневрирование и подход к пирсу № 5а расчетных судов типа «СН-210» длиной 300 метров, шириной 50 метров и осадкой в грузу 15,4 метра, а также установить необходимое навигационное оборудование. Реализация проекта позволит увеличить проектную мощность транспортно-перегрузочного комплекса по перевалке угля объеме до 40 млн тонн в год. Разработанная специализированной организацией проектная документация и оценка воздействия на окружающую среду намечаемой деятельности в установленном порядке представлены на общественные обсуждения. По итогам их рассмотрения (протокол проведения общественных слушаний от 19.08.2021, утвержденный Главой администрации Ванинского муниципального района Хабаровского края) общественные слушания признаны состоявшимися. С учетом высказанных мнений в ходе обсуждения проектная документация была доработана и представлена на рассмотрение государственной экологической экспертизы. По итогам рассмотрения представленных документов получено положительное заключение экспертной комиссии государственной экологической экспертизы № 27-1-01-1-07-0022-22, утвержденное приказом Черноморо-Азовского морского управления Росприроднадзора от 25.03.2022 № 125-О. Результаты инженерных изысканий и проектно-сметная документация представлены на рассмотрение в ФАУ «Главгосэкспертиза России».
При условии получения положительного заключения государственной экспертизы и выделения необходимого финансирования начало строительно-монтажных работ запланировано на 2026 год.
|
- проект строительства терминала по перевалке глиноземной руды
в морском порту Ванино в рамках совместного инвестиционного проекта с компанией-инвестором. Инвестиционным проектом в части обязательств предприятия планируется выполнить дноуглубительные работы в операционной акватории морского порта Ванино на площади 15 га с доведением отметок дна до -13,6 метра, в целях обеспечения навигационных глубин для безопасного подхода и швартовки судов типа с дедвейтом 35-40 тыс. тн. «СН-163», «СН-115», «СН-70» и «СН-40» (длиной до 292 метров, шириной до 45 метров и осадкой в грузу до 17,1 метра), а также установить на причале 2 светящихся портовых знака типа «Колонна», заменить портовый знак на пирсе № 3 и смонтировать временный портовый знак на пирсе № 1. Реализация проекта позволит создать современный морской терминал по перевалке глиноземной руды, который на первом этапе будет обеспечивать перевалку угля в объеме 1,5 млн тонн, а при полном развитии в объеме 3 млн тонн. В установленном порядке проектной организацией проведены несколько общественных слушаний по обсуждению материалов проекта, включая материалы оценки воздействия на окружающую среду. По итогам состоявшихся обсуждений (протокол от 17.10.2017, утвержденный Главой администрации Ванинского муниципального района, и протокол от 3.07.2018, утвержденный и.о. Главы администрации Ванинского муниципального района) представленные материалы по оценке воздействия на окружающую среду были одобрены. По результатам проведенной государственной экологической экспертизы проектная документация получила положительное заключение государственной экспертной комиссии от 18.01.2019, утвержденное приказом Тихоокеанского морского управления Росприроднадзора от 18.01.2019 № 21. Результаты инженерных изысканий и проектная документация в установленном порядке представлены в ФАУ «Главгосэкспертиза России». По итогам их рассмотрения получено положительное заключение государственной экспертизы от 17.09.2019 № 27-1-1-3-0136-19. Одновременно получено положительное заключение ФАУ «Главгосэкспертиза России» по определению достоверности сметной стоимости объекта капитального строительства от 20.09.2019 № 01143-19/ГГЭ-17217/07-01. Представленные компанией-инвестором проектная документация и результаты инженерных изысканий береговой части проекта в ФАУ «Главгосэкспертиза России» также получили положительное заключение государственной экспертизы.
При условии выделения финансирования и получения разрешения на строительство начало строительно-монтажных работ намечено на 2026 год.
|
- проект строительства здания служб обеспечения безопасности мореплавания
Северо-Восточного бассейнового филиала ФГУП «Росморпорт». Проектом предусматривается строительство 3-этажного административно-технического здания общей площадью помещений 1 335 кв. м. Реализация проекта позволит компактно разместить структурные подразделения Северо-Восточного бассейнового филиала в одном месте, обеспечив улучшение санитарно-бытовых условий размещения персонала в целях повышения эффективности его работы. По итогам проектирования материалы оценки воздействия на окружающую среду и проектная документация в установленном порядке представлены на общественное обсуждение. По результатам состоявшихся обсуждений (протокол Администрации городского поселения «Рабочий поселок Ванино» Ванинского муниципального района Хабаровского края от 14.10.2019) материалы оценки воздействия на окружающую среду в целом одобрены. В соответствии с законодательством Российской Федерации в области проведения экологических экспертиз (статья 11 Федерального закона от 23.11.1995 № 174-ФЗ «Об экологической экспертизе») в отношении проекта строительства здания служб обеспечения безопасности мореплавания государственная экологическая экспертиза не требуется. Первоначально представленные на рассмотрение государственной экспертизы результаты инженерных изысканий и проектная документация были возвращены Дальневосточным филиалом ФАУ «Главгосэкспертиза России» на доработку в части необходимости корректировки сметной стоимости строительства. По итогам доработки уточненная проектная документация и результаты инженерных изысканий представлены на рассмотрение в ФАУ «Главгосэкспертиза России». Представленные повторно материалы получили положительное заключение повторной государственной экспертизы, включая проведение проверки достоверности определения сметной стоимости объекта капитального строительства, от 07.06.2021 № 27-1-1-3-029679-2021, утвержденное ФАУ «Главгосэкспертиза России». В связи с изменением стоимости строительных материалов проектная документация в части сметной стоимости проекта потребовала внесения соответствующих корректировок. Доработанная сметная документация по проекту в установленном порядке представлена в ФАУ «Главгосэкспертиза России» на рассмотрение ее достоверности. По итогам ее рассмотрения получено положительное заключение повторной государственной экспертизы, включая проверку достоверности определения сметной стоимости объекта капитального строительства, от 14.07.2023 № 27-1-1-2-040344-2023, утвержденное ФАУ «Главгосэкспертиза России», которым установлена достоверность определения сметной стоимости строительства.
На основании полученных положительных заключений государственных экспертиз Администрацией городского поселения «Рабочий поселок Ванино» Ванинского муниципального района Хабаровского края выдано разрешение на строительство от 19.06.2024 № 27-04-364-2024.
Информация о ходе реализации проекта представлена в разделе «Объекты портовой инфраструктуры».
|
- проект реконструкции причала № 18
морского порта Ванино. Проектом реконструкции предусмотрено восстановление и повышение эксплуатационных характеристик существующего, физически изношенного причала № 18 морского порта. Реализация проекта позволит использовать причал для размещения судов портового флота Северо-Восточного бассейнового филиала ФГУП «Росморпорт», а также выполнять на причале погрузочно-разгрузочные работы с генеральными грузами на суда длиной до 92,4 метра, шириной до 18 метров и осадкой в грузу 7,5 метра. В установленном порядке проектной организацией проведены общественные слушания по обсуждению проектной документации, включая материалы оценки воздействия на окружающую среду. По итогам состоявшегося обсуждения представленные материалы одобрены с учетом высказанных замечаний и предложений жителями района (протокол общественных слушаний от 17.09.2021, утвержденный Главой Ванинского муниципального района). Разработанная проектная документация и результаты инженерных изысканий в установленном порядке были представлены на рассмотрение в Росприроднадзор. По итогам их рассмотрения получено положительное заключение государственной экологической экспертизы от 26.05.2023 № 27-1-02-1-07-0371-23, утвержденное приказом Росприроднадзора от 26.05.2023 № 1345/ГЭЭ. В настоящее время проектная документация и результаты инженерных изысканий представлены на рассмотрение в ФАУ «Главгосэкспертиза России».
При условии получения положительного заключения государственной экспертизы и разрешения на строительство, а также при условии выделения необходимого финансирования начало строительно-монтажных работ запланировано на 2026 год.
|
|
- проект реконструкции пирса № 1
в морском порту Ванино. Проектом реконструкции предусмотрено восстановление и повышение эксплуатационных характеристик существующего пирса № 1 в морском порту. В результате реконструкции ряжевая конструкция причала будет заменена на современную конструкцию взаимозаанкеренного больверка из шпунта с замковым профилем, будет одновременно увеличена длина причала до 164 м, ширина до 26 м и глубины у кордона пирса до 12,35 м. Реализация проекта позволит использовать пирс для размещения ледоколов предприятия и судов портового флота филиала длиной до 126 м, шириной до 18,6 м и осадкой в грузу 10,9 м. После реконструкции на пирсе № 1 возможно будет также осуществлять погрузочно-разгрузочные работы с генеральными грузами.
В настоящее время проектной организацией выполняются проектно-изыскательские работы.
При условии успешного завершения работ, получении положительных заключений государственных экспертиз и разрешения на строительство, а также при условии выделения необходимого финансирования начало строительно-монтажных работ запланировано на 3 квартал 2025 года.
|
|
|
Морской порт Певек (Чукотский автономный округ)
- проект строительства объектов Глобальной морской системы связи при бедствии на трассах Северного морского пути. В рамках проекта строительства предполагается построить береговую станцию «Певек» службы НАВТЕКС в составе центра управления, радиопередающей станции, радиорелейной линии связи прямой видимости для передачи данных между центром управления и радиопередающей станцией. Реализация проекта позволит обеспечить передачу информации на суда в целях обеспечения безопасности мореплавания на трассах Северного морского пути района NAVAREA XXI. Разработанная специализированной организацией проектная документация получила положительное заключение государственной экспертизы от 25.07.2022 № 87-1-1-3-050095-2022, включая экспертизу достоверности определения сметной стоимости строительства, утвержденное ФАУ «Главгосэкспертиза России». По итогам государственной экспертизы отделом градостроительства и архитектуры в управлении промышленной, сельскохозяйственной политики, строительства и жилищно-коммунального хозяйства Администрации городского округа Певек выдано разрешение на строительство от 08.08.2022 № 87-02-05-2022.
Информация о ходе реализации проекта представлена в разделе «Объекты портовой инфраструктуры».
|
|
|
|
|
|
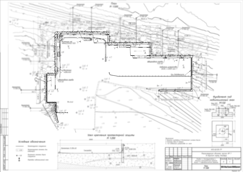
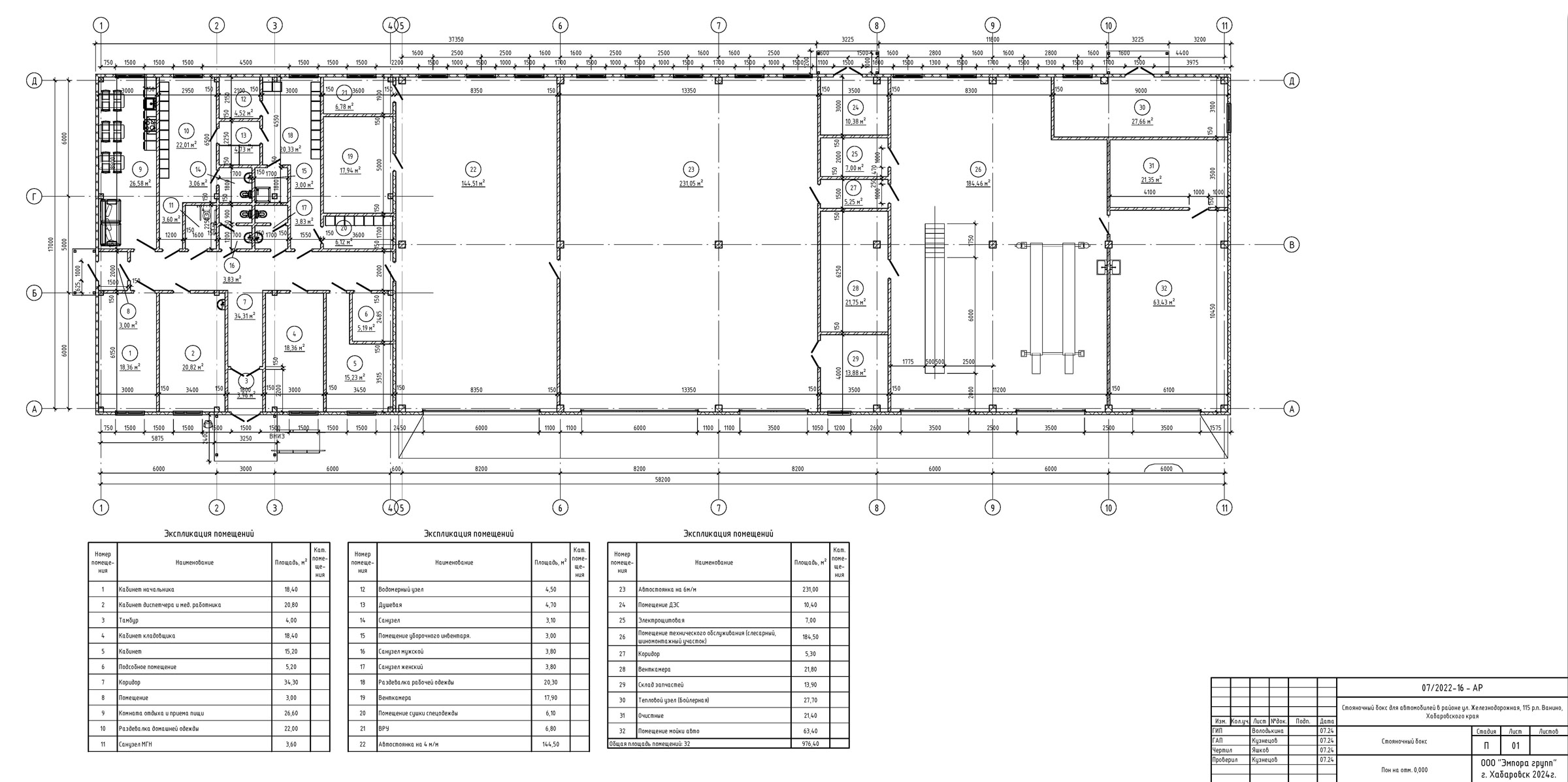
Поселок городского типа Ванино
- проект строительства стояночного бокса
в поселке Ванино. Проектом предусматривается строительство административно-бытового корпуса с отапливаемыми стояночными боксами, который представляет собой одноэтажное здание общей площадью 987,7 кв. м. Реализация проекта позволит разместить в нем персонал и автомобильную технику Северо-Восточного бассейнового филиала ФГУП «Росморпорт», что будет способствовать повышению качества обслуживания и ремонта транспортных средств Северо-Восточного бассейнового филиала, улучшению экологического состояния окружающей среды, бытовых условий работников филиала и безопасности хранения автомобилей, используемых филиалом при осуществлении своей деятельности в морском порту Ванино.
В настоящее время проектной организацией выполняются проектно-изыскательские работы.
При условии успешного завершения работ, получения положительных заключений государственных экспертиз и разрешения на строительство, а также выделения необходимого финансирования начало строительно-монтажных работ запланировано на 3 квартал 2025 года.
|
|



















