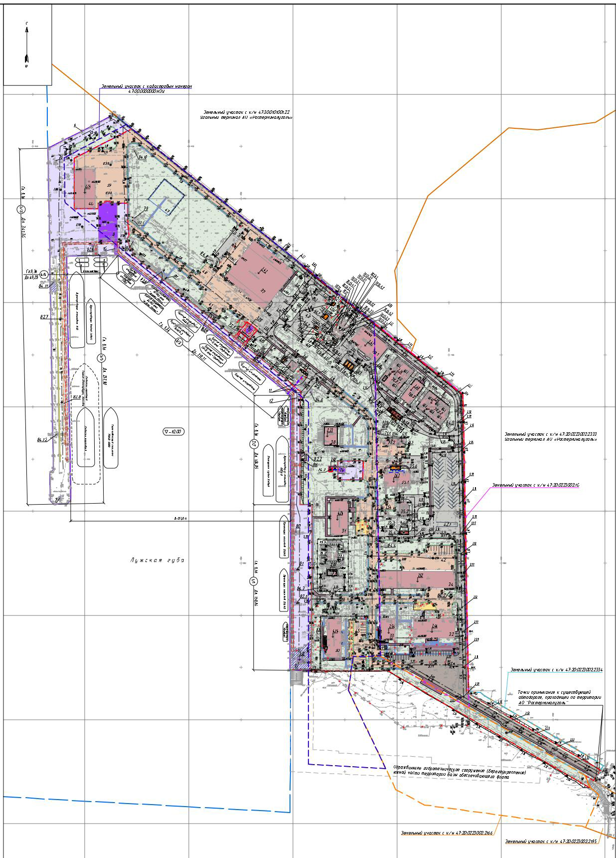
Реконструкция причалов № 12, 13, 14 и Гутуевского ковша в морском порту Большой порт Санкт-Петербург осуществляется в целях восстановления конструктивных параметров указанных объектов портовой инфраструктуры. В рамках реализации проекта предполагается выполнить строительство оторочки причалов № 12, № 13 и № 14 с увеличением глубины у кордона причалов № 13 и № 14 до отметки -8,5 м; а также выполнить сопряжение берегоукрепления Гутуевского ковша в месте примыкания к открылку № 12.2. По итогам реконструкции протяженность причала №12 с учетом двух открылков № 12.1. и № 12.2 составит 121,35 м, протяженность причала № 13 - 199 м и протяженность причала № 14 - 94,5 м, что позволит обеспечить безопасный подход, маневрирование и стоянку у причалов судов с максимальной длиной 84,5 м, максимальной шириной 21,2 м и максимальной осадкой в грузу 6,53 м, а также расширить площадь открытых площадок причалов для хранения и обслуживания средств навигационного оборудования и оборудования рейдовых стоянок.
Реконструкцией причалов № 12, 13, 14 и Гутуевского ковша в морском порту Большой порт Санкт-Петербург предусматривается:
1) реконструкция причала № 12 путем строительства оторочки причала, по итогам которой длина причальной линии составит 121,35 м, а глубина у кордона причала 4,1 метра, что позволит обеспечивать подход, маневрирование и стоянку судов длиной 43,2 м, шириной 10,2 м и осадкой в грузу 2,5 метра;
2) реконструкция причала № 13 путем строительства оторочки причала, по итогам которой длина причальной линии составит 199 м, а глубина у кордона причала 8,5 м, что позволит обеспечивать подход, маневрирование и стоянку судов длиной 84,5 метра, шириной 21,2 метра и осадкой в грузу 6,53 м;
3) реконструкция причала № 14 путем строительства оторочки причала, по итогам которой длина причальной линии составит 94,5 м, а глубина у кордона причала 8,5 м, что позволит обеспечивать подход, маневрирование и стоянку судов длиной 84,5 метра, шириной 21,2 метра и осадкой в грузу 6,53 м;
4) реконструкция берегоукрепления Гутуевского ковша, по итогам которой будет увеличена площадь территории причала № 12 на 253 кв. м;
5) реконструкция Гутуевского ковша, связанная с проведением дноуглубительных работ на площади 4,149 га и доведением отметок дна до -8,5 мАО «Инвестиции. Инжиниринг. Строительство» (с 28 марта 2018 года по 11 июня 2020 года)
ООО «УПТК-Калининград» (с 16 апреля 2021 года по 7 июня 2022 года)
ООО «Подводсервисстрой» (с 16 октября 2023 г. по настоящее время)
Договор подряда от 28 марта 2018 г. 18-73 ОКСиР (расторгнут в соответствии с соглашением от 11.06.2020)
Договор подряда от 16 апреля 2021 г. № 21-179 ОКСиР (расторгнут в одностороннем порядке в соответствии с уведомлением от 17.05.2022 № Ф1030-14/2721-ИС)
Договор подряда от 16 октября 2023 г. № 23-306 ОКСиР
- заключен договор с подрядной организацией;
- генподрядной организации передана проектная документация и все необходимые для производства работ исходные данные;
- заключен договор авторского надзора.- выполнялась разработка рабочей документации.
- выполнялись подготовительные работы;
- выполнялись работы по установке ограждения территории производства строительных работ.
- завершены подготовительные работы;
- завершены работы по установке ограждения территории производства строительных работ;
- выполнялись работы по устройству территории строительной площадки;
- выполнялись работы по демонтажу ограждения причалов № 12, 13, 14;
- выполнялись работы по расчистке территории от растительности (вырубка деревьев и кустарников);
- выполнялись работы по отсыпке территории причала № 12;
- выполнялись работы по установке 150 ед. шпунта технологической шпунтовой стенки в тылу причала № 13;
- выполнялись работы по демонтажу верхнего строения причала № 13;
- выполнялись работы по демонтажу причала № 13 (устройство котлована) в объеме почти 2 тыс. м3 грунта.
- завершены работы по устройству территории строительной площадки;
- завершены работы по демонтажу ограждения причалов № 12, 13, 14;
- завершены работы по расчистке территории от растительности (вырубка деревьев и кустарников);
- выполнялись работы по отсыпке территории причала № 12;
- работы по установке шпунта технологической шпунтовой стенки в тылу причала № 13 приостановлены в соответствии с графиком производства строительно-монтажных работ;
- выполнялись работы по демонтажу верхнего строения причала № 13;
- выполнялись работы по демонтажу причала № 13 (устройство котлована) в объеме почти 2,5 тыс. м3 грунта;
- выполнялись работы по установке анкерной стенки причала № 13 в количестве 31 ед. трубошпунта;
- выполнялись работы по подъему посторонних предметов со дна акватории в зоне погружения лицевой стенки из трубошпунта у причалов № 12, 13, 14.
- выполнялись работы по отсыпке территории причала № 12;
- выполнялись работы по установке шпунта технологической шпунтовой стенки в тылу причала № 13 в количестве 271 ед. шпунта;
- выполнялись работы по демонтажу верхнего строения причала № 13;
- выполнялись работы по демонтажу причала № 13 (устройство котлована) в объеме почти 3 тыс. м3 грунта;
- выполнялись работы по установке анкерной стенки причала № 13 в количестве 31 ед. трубошпунта;
- завершены работы по подъему посторонних предметов со дна акватории в зоне погружения лицевой стенки из трубошпунта у причалов № 12, 13, 14.
- работы по отсыпке территории причала № 12 не проводились в соответствии с графиком производства строительных работ;
- выполнялись работы по отсыпке территории причала № 13;
- работы по установке шпунта технологической шпунтовой стенки в тылу причала № 13 не проводились в соответствии с графиком производства строительных работ;
- работы по демонтажу верхнего строения причала № 13 не проводились в соответствии с графиком производства строительных работ;
- выполнялись работы по демонтажу причала № 13 (устройство котлована) в объеме 3,8 тыс. м3 грунта;
- работы по установке анкерной стенки причала № 13 не проводились в соответствии с графиком производства строительных работ;
- выполнялись работы по погружению лицевой стенки из трубошпунта на причале № 12 в количестве 25 ед. трубошпунта;
- выполнялись работы по демонтажу ж/д путей.
- выполнялись работы по отсыпке территории причала № 13;
- работы по демонтажу верхнего строения причала № 13;
- выполнялись работы по демонтажу причала № 13 (устройство котлована) в объеме 506 м3 грунта;
- выполнялись работы по погружению лицевой стенки из трубошпунта на причале № 12 в количестве 31 ед. трубошпунта;
- работы по демонтажу ж/д путей не проводились в соответствии с графиком производства строительных работ.
- выполнялись работы по отсыпке территории причала № 13;
- работы по демонтажу верхнего строения причала № 13;
- выполнялись работы по демонтажу причала № 13 (устройство котлована) в объеме 2,2 тыс. м3 грунта;
- выполнялись работы по погружению анкерной стенки причала № 13 в количестве 59 ед. трубошпунта;
- выполнялись работы по погружению лицевой стенки из трубошпунта на причале № 12 в количестве 31 ед. трубошпунта.
- выполнялись работы по отсыпке территории причала № 13;
- работы по демонтажу верхнего строения причала № 13 не производились в соответствии с графиком производства строительно-монтажных работ;
- работы по демонтажу причала № 13 (устройство котлована) не производились в соответствии с графиком производства строительно-монтажных работ;
- работы по погружению анкерной стенки причала № 13 не производились в соответствии с графиком производства строительно-монтажных работ;
- выполнялись работы по погружению лицевой стенки из трубошпунта на причале № 12 в количестве 14 ед. трубошпунта.
- выполнялись работы по отсыпке территории причала № 13;
- выполнялись работы по отсыпке территории причала № 12;
- выполнялись работы по погружению лицевой стенки из трубошпунта на причале № 12 в количестве 15 ед. трубошпунта.
- работы по отсыпке территории причала № 13 не выполнялись в соответствии с графиком производства строительно-монтажных работ;
- выполнялись работы по отсыпке территории причала № 12;
- завершены работы по погружению лицевой стенки из трубошпунта на причале № 12 в количестве 6 ед. трубошпунта. Всего погружено 122 ед. трубошпунта;
- выполнялись работы по погружению лицевой стенки из трубошпунта на причале № 13 в количестве 34 ед. трубошпунта.
- все работы приостановлены подрядной организацией в одностороннем порядке;
- предприятием оформляются претензионные документы в связи со срывом подрядной организацией сроков выполнения строительства.
- выполнялись работы по погружению трубошпунта анкерной стенки причала № 12 в количестве 10 ед. трубошпунта.
- работы по погружению трубошпунта анкерной стенки причала № 12 приостановлены подрядной организацией;
- все строительно-монтажные работы приостановлены подрядной организацией.
- выполнялись работы по подготовке документов для проведения конкурентной процедуры по выбору подрядной организации.
- завершены работы по подготовке документов для проведения конкурентной процедуры по выбору подрядной организации;
- выполнялись работы по выбору подрядной организации на конкурентной основе.
- завершены работы по выбору подрядной организации на конкурентной основе;
- выполнялись работы по оформлению договора подряда с победителем конкурентной процедуры.
- выполнялись работы по оформлению договора подряда с победителем конкурентной процедуры.
- заключен договор подряда с победителем конкурентной процедуры.
- выполнялись подготовительные работы;
- завершены работы по мобилизации строительной техники.
- завершены подготовительные работы;
- выполнялись работы по погружению 25 свай трубошпунта анкерного ряда причала № 12;
- выполнялись работы по погружению 12 свай трубошпунта свайного основания причала № 12.
- выполнялись работы по погружению 34 свай трубошпунта анкерного ряда причала № 12;
- выполнялись работы по погружению 7 свай трубошпунта свайного основания причала № 12;
- выполнялись работы по погружению 10 свай трубошпунта лицевой стенки причала № 13.
- работы по погружению свай трубошпунта анкерного ряда причала № 12 приостановлены в соответствии с графиком производства строительно-монтажных работ;
- работы по погружению свай трубошпунта свайного основания причала № 12 приостановлены в соответствии с графиком производства строительно-монтажных работ;
- выполнялись работы по погружению 5 свай трубошпунта лицевой стенки причала № 13;
- выполнялись работы по монтажу анкерной системы причала № 12 в количестве 7 ед. анкерных тяг.
- выполнялись работы по погружению 5 свай трубошпунта лицевой стенки причала № 13;
- работы по монтажу анкерной системы причала № 12 приостановлены в соответствии с графиком производства строительно-монтажных работ.
- выполнялись работы по погружению 10 свай трубошпунта лицевой стенки причала № 13.
- выполнялись работы по погружению 27 свай трубошпунта лицевой стенки причала № 13.
- выполнялись работы по погружению 18 свай трубошпунта лицевой стенки причала № 13;
- выполнялись работы по отсыпке песчаного основания причала № 12 в объеме 1 100 м3.
- работы по погружению свай трубошпунта лицевой стенки причала № 13 приостановлены в соответствии с графиком производства строительно-монтажных работ;
- выполнялись работы по отсыпке камня в тело причала № 13 в объеме 500 м3.
- работы по отсыпке камня в тело причала № 13 приостановлены в соответствии с графиком производства строительно-монтажных работ.
- все строительно-монтажные работы приостановлены в соответствии с графиком производства строительно-монтажных работ.
- работы не выполнялись в связи с банкротством подрядной организации.
- в соответствии с уведомлением от 17.05.2022 № Ф1030-14/2721-ИС договор подряда от 16.04.2021 № 21-179 ОКСиР с ООО «УПТК-Калининград» расторгнут в одностороннем порядке с 07.06.2022.
- выполнялись работы по подготовке и проведению конкурентных процедур по выбору новой подрядной организации для завершения строительно-монтажных работ.
- выполнялись работы по подготовке и проведению конкурентных процедур по выбору новой подрядной организации для завершения строительно-монтажных работ.
- завершены работы по подготовке и проведению конкурентных процедур по выбору новой подрядной организации для завершения строительно-монтажных работ;
- заключен договор с подрядной организацией для завершения строительно-монтажных работ.
- выполнялись подготовительные работы на строительной площадке.
- завершены подготовительные работы на строительной площадке;
- выполнялись работы по погружению 3 свай трубошпунта анкерного ряда причала № 13.
- завершены работы по погружению 42 свай трубошпунта анкерного ряда причала № 12. Всего выполнено работ по погружению 118 свай трубошпунта анкерного ряда причала № 12;
- выполнялись работы по погружению 24 свай трубошпунта анкерного ряда причала № 13.
- выполнялись работы по погружению 31 сваи трубошпунта анкерного ряда причала № 13;
- выполнялись работы по погружению 16 свай трубошпунта лицевого ряда причала № 13.
- выполнялись работы по погружению 21 сваи трубошпунта анкерного ряда причала № 13;
- выполнялись работы по погружению 44 свай трубошпунта лицевого ряда причала № 13;
- выполнялись работы по устройству котлована из шпунта Ларсена в количестве 84 шт.
- завершены работы по погружению 23 свай трубошпунта анкерного ряда причала № 13. Всего выполнено работ по погружению 199 свай трубошпунта анкерного ряда причала № 13;
- завершены работы по погружению 30 свай трубошпунта лицевого ряда причала № 13. Всего выполнено работ по погружению 199 свай трубошпунта лицевого ряда причала № 13;
- выполнялись работы по демонтажу причала № 14;
- завершены работы по устройству котлована из шпунта Ларсена в количестве 100 шт. Всего выполнено работ по устройству котлована из шпунта Ларсена в количестве 184 шт. шпунта;
- выполнялись работы по погружению 12 свай трубошпунта анкерного ряда причала № 14;
- выполнялись работы по погружению 20 свай трубошпунта лицевого ряда причала № 14.
- завершены работы по демонтажу причала № 14;
- работы по погружению свай трубошпунта анкерного ряда причала № 14 приостановлены в соответствии с графиком выполнения строительно-монтажных работ;
- выполнялись работы по погружению 19 свай трубошпунта лицевого ряда причала № 14;
- выполнялись работы по устройству распределительного пояса лицевого ряда причала № 12;
- выполнялись работы по устройству распределительного пояса анкерного ряда причала № 12;
- выполнялись работы по монтажу 27 анкерных тяг причала № 12;
- выполнялись работы по устройству дренажной призмы причала № 12;
- выполнялись работы по засыпке песком в объеме 2 тыс. куб. м тела причала № 12;
- выполнялись работы по устройству распределительного пояса лицевого ряда причала № 13;
- выполнялись работы по устройству распределительного пояса анкерного ряда причала № 13;
- выполнялись работы по монтажу 22 анкерных тяг причала № 13.
- выполнялись работы по погружению 20 свай трубошпунта лицевого ряда причала № 14;
- выполнялись работы по погружению 17 свай трубошпунта анкерного ряда причала № 14;
- выполнялись работы по устройству распределительного пояса лицевого ряда причала № 12;
- выполнялись работы по устройству распределительного пояса анкерного ряда причала № 12;
- завершены работы по монтажу 36 анкерных тяг причала № 12. Всего выполнено работ по монтажу 63 анкерных тяг причала № 12;
- выполнялись работы по устройству дренажной призмы причала № 12;
- выполнялись работы по засыпке песком в объеме 6 тыс. куб. м тела причала № 12;
- выполнялись работы по устройству распределительного пояса лицевого ряда причала № 13;
- выполнялись работы по устройству распределительного пояса анкерного ряда причала № 13;
- выполнялись работы по монтажу 22 анкерных тяг причала № 13;
- выполнялись работы по заполнению арматурным каркасом, песком, щебнем и бетоном 121 ед. трубошпунта причала № 12;
- выполнялись работы по заполнению арматурным каркасом, песком, щебнем и бетоном 40 ед. трубошпунта причала № 13.
- завершены работы по погружению 20 свай трубошпунта лицевого ряда причала № 14. Всего выполнено работ по погружению 79 свай трубошпунта лицевого ряда причала № 14;
- выполнялись работы по погружению 25 свай трубошпунта анкерного ряда причала № 14;
- завершены работы по устройству распределительного пояса лицевого ряда причала № 12;
- завершены работы по устройству распределительного пояса анкерного ряда причала № 12;
- завершены работы по устройству дренажной призмы причала № 12;
- выполнялись работы по засыпке песком в объеме 3 тыс. куб. м тела причала № 12;
- выполнялись работы по устройству распределительного пояса лицевого ряда причала № 13;
- выполнялись работы по устройству распределительного пояса анкерного ряда причала № 13;
- выполнялись работы по монтажу 22 анкерных тяг причала № 13;
- выполнялись работы по заполнению арматурным каркасом, песком, щебнем и бетоном 80 ед. трубошпунта причала № 12;
- выполнялись работы по заполнению арматурным каркасом, песком, щебнем и бетоном 60 ед. трубошпунта причала № 13.
- работы по засыпке песком тела причала № 12 приостановлены в соответствии с графиком производства строительно-монтажных работ;
- выполнялись работы по устройству распределительного пояса лицевого ряда причала № 13;
- выполнялись работы по устройству распределительного пояса анкерного ряда причала № 13;
- выполнялись работы по монтажу 55 анкерных тяг причала № 13;
- завершены работы по заполнению арматурным каркасом, песком, щебнем и бетоном 40 ед. трубошпунта причала № 12. Всего выполнено работ по заполнению арматурным каркасом, песком, щебнем и бетоном 120 ед. трубошпунта причала № 12;
- выполнялись работы по устройству верхнего строения причала № 12;
- выполнялись работы по устройству дренажной призмы причала № 13;
- выполнялись работы по засыпке тела причала № 13 песчано-гравийной смесью в объеме 3,5 тыс. куб. м;
- выполнялись работы по заполнению арматурным каркасом, песком, щебнем и бетоном 40 ед. трубошпунта причала № 13;
- завершены работы по погружению 25 свай трубошпунта анкерного ряда причала № 14. Всего выполнено работ по погружению 79 свай трубошпунта анкерного ряда причала № 14.
- завершены работы по устройству распределительного пояса лицевого ряда причала № 13;
- завершены работы по устройству распределительного пояса анкерного ряда причала № 13;
- завершены работы по монтажу 6 анкерных тяг причала № 13. Всего выполнено работ по монтажу 127 анкерных тяг причала № 13;
- завершены работы по устройству верхнего строения причала № 12;
- выполнялись работы по устройству дренажной призмы причала № 13;
- выполнялись работы по засыпке тела причала № 13 песчано-гравийной смесью в объеме 3 тыс. куб. м;
- завершены работы по заполнению арматурным каркасом, песком, щебнем и бетоном 59 ед. трубошпунта причала № 13. Всего выполнено работ по заполнению арматурным каркасом, песком, щебнем и бетоном 199 ед. трубошпунта причала № 13;
- выполнялись работы по устройству верхнего строения причала № 13;
- завершены работы по засыпке тела причала № 12 песком в объеме 4,5 тыс. куб м. Всего выполнено работ по засыпке тела причала № 12 песком в объеме 15,5 тыс. куб м.
- завершены работы по устройству дренажной призмы причала № 13;
- завершены работы по засыпке тела причала № 13 песчано-гравийной смесью в объеме 4,1 тыс. куб. м. Всего выполнено работ по засыпке тела причала № 13 песчано-гравийной смесью в объеме 10,6 тыс. куб. м;
- выполнялись работы по устройству верхнего строения причала № 13;
- выполнялись работы по монтажу арматурных каркасов и заполнению песком, щебнем и бетоном 50 ед. трубошпунта причала № 14;
- завершены работы по устройству распределительного пояса лицевого ряда причала № 14;
- завершены работы по устройству распределительного пояса анкерного ряда причала № 14;
- завершены работы по монтажу 43 анкерных тяг причала № 14;
- выполнялись работы по засыпке тела причала № 14 в объеме 1,5 куб. м песчано-гравийной смеси;
- выполнялись работы по устройству дренажной призмы причала № 14.
- выполнялись работы по устройству верхнего строения причала № 13;
- завершены работы по монтажу арматурных каркасов и заполнению песком, щебнем и бетоном 29 ед. трубошпунта причала № 14. Всего выполнено работ по монтажу арматурных каркасов и заполнению песком, щебнем и бетоном 79 ед. трубошпунта причала № 14;
- выполнялись работы по засыпке тела причала № 14 в объеме 4,5 куб. м песчано-гравийной смеси;
- завершены работы по устройству дренажной призмы причала № 14;
- завершены работы по монтажу 43 отбойных устройств причала № 12;
- выполнялись работы по монтажу 30 отбойных устройств причала № 13.
- завершены работы по устройству верхнего строения причала № 13;
- завершены работы по засыпке тела причала № 14 в объеме 1,5 куб. м песчано-гравийной смеси. Всего выполнено работ по засыпке тела причала № 14 в объеме 7,5 куб. м песчано-гравийной смеси;
- завершены работы по монтажу 60 отбойных устройств причала № 13. Всего выполнено работ по монтажу 90 отбойных устройств причала № 13.
- выполнялись работы по устройству верхнего строения причала № 14;
- выполнялись работы по демонтажу грунта в объеме 600 куб. м для котлована аккумулирующих емкостей локальных очистных сооружений.
- выполнялись работы по устройству верхнего строения причала № 14;
- выполнялись работы по демонтажу грунта в объеме 600 куб. м для котлована аккумулирующих емкостей локальных очистных сооружений.
- выполнялись работы по устройству верхнего строения причала № 14;
- завершены работы по демонтажу грунта в объеме 600 куб. м для котлована аккумулирующих емкостей локальных очистных сооружений. Всего было выполнено работ по демонтажу грунта для котлована аккумулирующих емкостей локальных очистных сооружений в объеме 1 800 куб. м;
- выполнялись работы по устройству котлована под локальные очистные сооружения на причале № 12.
- завершены работы по устройству верхнего строения причала № 14;
- выполнялись работы по устройству котлована под локальные очистные сооружения на причале № 12.
- завершены работы по монтажу 320 м колесоотбойных устройств на причалах № 12, № 13 и № 14;
- выполнялись работы по монтажу 7 ед. швартовных тумб на причалах № 12, № 13 и № 14;
- выполнялись работы по подъему посторонних предметов со дна операционной акватории Гутуевского ковша;
- выполнялись работы по устройству котлована под локальные очистные сооружения на причале № 12.
- завершены работы по монтажу 15 ед. швартовых тумб на причалах № 12, № 13 и № 14. Всего выполнено работ по монтажу 22 ед. швартовых тумб на причалах № 12, № 13 и № 14;
- завершены работы по подъему посторонних предметов со дна операционной акватории Гутуевского ковша;
- выполнялись работы по устройству 16 ед. свай основания мачт освещения на причалах № 12, № 13 и № 14 с испытаниями их на несущую способность;
- выполнялись работы по устройству котлована под локальные очистные сооружения на причале № 12.
- завершены работы по устройству 16 ед. свай основания мачт освещения на причалах № 12, № 13 и № 14 с испытаниями их на несущую способность;
- выполнялись работы по устройству котлована под локальные очистные сооружения на причале № 12;
- выполнялись работы по устройству ливневой канализации причалов № 13 и № 14.
- выполнялись работы по устройству 3 ед. фундаментов под мачты освещения причалов № 12, № 13 и № 14;
- выполнялись работы по устройству котлована под локальные очистные сооружения на причале № 12;
- выполнялись работы по устройству ливневой канализации причалов № 13 и № 14;
- выполнялись дноуглубительные работы на акватории Гутуевского ковша на площади 4,3 га с доведением отметок дна до -8 м и объемом изъятого грунта 9,9 тыс. куб. м.
- завершены работы по устройству одного фундамента под мачты освещения причалов № 12, № 13 и № 14. Всего было выполнено работ по устройству 4 ед. фундаментов под мачты освещения причалов № 12, № 13 и № 14;
- завершены работы по устройству котлована под локальные очистные сооружения на причале № 12;
- выполнялись работы по устройству ливневой канализации причалов № 13 и № 14;
- выполнялись работы по монтажу аккумулирующих емкостей для локальных очистных сооружений ливневой канализации причала № 12.
- завершены работы по устройству 3 ед. фундаментов под технологические модули локальных очистных сооружений ливневой канализации причала № 12;
- выполнялись дноуглубительные работы на акватории Гутуевского ковша на площади 4,3 га с доведением отметок дна до -8,2 м и объемом изъятого грунта 15 тыс. куб. м.
- выполнялись работы по устройству ливневой канализации причалов № 13 и № 14;
- завершены работы по монтажу аккумулирующих емкостей для локальных очистных сооружения ливневой канализации причала № 12;
- выполнялись дноуглубительные работы на акватории Гутуевского ковша на площади 4,3 га с доведением отметок дна до -8,4 м и объемом изъятого грунта 20,1 тыс. куб. м;
- выполнялись работы по обратной засыпке емкостей для локальных очистных сооружений ливневой канализации причала № 12 в объеме 600 куб. м грунта;
- завершены работы по монтажу 4 ед. опор освещения на причалах № 12, № 13 и № 14;
- выполнялись работы по благоустройству причалов № 13 и № 14.
- выполнялись работы по устройству ливневой канализации причалов № 13 и № 14;
- выполнялись дноуглубительные работы на акватории Гутуевского ковша на площади 4,3 га с доведением отметок дна до -8,45 м и объемом изъятого грунта 5,2 тыс. куб. м;
- завершены работы по обратной засыпке емкостей для локальных очистных сооружения ливневой канализации причала № 12 в объеме 600 куб. м грунта. Всего выполнено работ по обратной засыпке емкостей для локальных очистных сооружения ливневой канализации причала № 12 в объеме 1 200 куб. м грунта;
- выполнялись работы по благоустройству причалов № 13 и № 14;
- выполнялись работы по благоустройству причала № 12.
- завершены работы по устройству ливневой канализации причалов № 13 и № 14;
- выполнялись дноуглубительные работы на акватории Гутуевского ковша на площади 4,3 га с доведением отметок дна до -8,5 м и объемом изъятого грунта 2 тыс. куб. м.;
- выполнялись работы по благоустройству причалов № 13 и № 14;
- выполнялись работы по благоустройству причала № 12.
Срок окончания работ по договору: до 6 июля 2025 года
Срок сдачи в эксплуатацию объектов: III квартал 2025 года
а) строительство причала № 88 длиной 205 метров, шириной 40 метров, с отметкой дна акватории у причала: - 12 метров;
б) установку светящего навигационного знака высотой 3 метров типа «СН СНО П»;
в) строительство искусственного земельного участка площадью 6,1 га;
г) разбор и перенос 6 модульных зданий, установленных на причале № 90, на вновь построенный искусственный земельный участок и строительство двух новых модульных зданий:
- двухэтажного административного блока площадью 115,2 кв. м;
- двухэтажного административно-бытового блока площадью 67,2 кв. м;
- одноэтажного (складского) блока для хранения оборудования и обслуживания источников тока и светооптического оборудования площадью 43,2 кв. м;
- одноэтажного (складского) блока для хранения и работы с лакокрасочными материалами площадью 43,2 кв. м;
- автономного моечного комплекса замкнутого цикла площадью 90 кв. м;
- сантехнического блока площадью 30 кв. м;
д) строительство ангара № 1 площадью 864 кв. м;
е) строительство ангара № 2 площадью 864 кв. м;
ж) строительство здания архива площадью 120 кв. м.
АО «Инвестиции.Инжиниринг.Строительство» (разработка проектной документации на завершение строительства причала № 88) (в период с 13.07.2017 по 18.02.2020)
АО «Группа компаний «ЕКС» (инженерные изыскания, разработка проектной документации, строительно-монтажные работы) (с 24.06.2024 по 05.11.2027)
Контракт от 13 июля 2017 г. № 17 -248 ОКСиР (на разработку проектной документации на завершение строительства причала № 88)
Договор от 24.06.2024 № 24-190 (инженерные изыскания, разработка проектной документации, строительно-монтажные работы)
- разработка рабочей документации;
- изготовление и поставка шпунта;
- комплектация объекта строительной техникой;
- разработка и согласование проекта производства работ;
- получение разрешений на производство строительных работ.
- изготовлена и погружена одна свая-оболочка типа СО2;
- изготовлено и погружено 15 штук свай-оболочек типа СО3.
- изготовлена и погружена одна свая-оболочка типа СО2;
- изготовлена и погружена одна свая-оболочка типа СО3;
- выполнено погружение 53 штук шпунта лицевой стенки;выполнено устройство антикоррозионной защиты шпунта лицевой стенки на площади 45 м2.
- устройство антикоррозионной защиты шпунта лицевой стенки на площади 40 м2.
- изготовлено и погружено 3 штуки свай-оболочек типа СО1;
- изготовлено и погружено 11 штук свай-оболочек типа СО2;
- выполнено устройство антикоррозионной защиты шпунта лицевой шпунтовой стенки на площади 30 м2.
- выполнены работы по погружению 17 единиц шпунта лицевой стенки и 60 единиц шпунта анкерного ряда;
- выполнены работы по устройству антикоррозионной защиты шпунта лицевой стенки на площади 47 м2 и анкерных тяг на площади 90 м2;
- произведена отсыпка песка под анкерную стенку, в территорию причала общим объемом более 12,3 тыс.м3;
- выполнены работы по изготовлению и монтажу распределительного пояса;
- выполнен монтаж 12 анкерных тяг;
- выполнено погружение деревянных свай.
- произведена отсыпка песка под анкерную стенку, в территорию причала общим объемом более 26 тыс. м3;
- выполнены работы по изготовлению 20 тонн и монтажу 16 тонн распределительного пояса;
- выполнен монтаж 8 комплектов анкерных тяг;
- выполнено погружение деревянных свай.
- выполнены работы по погружению 15 единиц шпунта лицевой стенки и 20 единиц шпунта анкерного ряда;
произведена отсыпка песка в объеме более 34,5 тыс. м3 под анкерную стенку в территорию причала;
- выполнены работы по изготовлению 25 тонн и монтажу 6,4 тонн распределительного пояса;
- выполнены работы по устройству антикоррозийной защиты и гидроизоляции 28 комплектов анкерных тяг;
- выполнен монтаж 14 комплектов анкерных тяг;
- выполнено погружение деревянных свай.
- выполнены работы по изготовлению и погружению одной сваи-оболочки типа СО2;
- выполнена отсыпка песка объемом почти 46,1 тыс. м3 под анкерную стенку в территорию причала;
- выполнены работы по монтажу почти 13,6 тонн распределительного пояса;
- выполнены работы по устройству антикоррозийной защиты 9 единиц шпунта лицевой стенки и 10 комплектов анкерных тяг;
- выполнен монтаж 3 комплектов анкерных тяг;
- выполнено погружение деревянных свай.
- выполнены работы по погружению 40 единиц шпунта анкерной стенки;
- выполнены работы по изготовлению и погружению одной сваи-оболочки СО2;
- выполнена отсыпка песка объемом более 55 тыс. м3 под анкерную стенку в территорию причала;
- выполнены работы по монтажу 6,55 тонн распределительного пояса на длине 24 п.м.;
- выполнены работы по устройству антикоррозийной защиты 55 единиц шпунта лицевой стенки;
- выполнены работы по устройству антикоррозийной защиты 15 комплектов анкерных тяг;
- выполнен монтаж 10 комплектов анкерных тяг и поддерживающих конструкций.
- завершены работы по монтажу распределительного пояса лицевой шпунтовой стенки общим объемом 44,1 тонн;
- завершены работы по устройству антикоррозийной защиты лицевой шпунтовой стенки;
- завершены работы по устройству антикоррозийной защиты анкерных тяг;
- выполнены работы по погружению 20 единиц шпунта анкерной стенки;
- выполнены работы по отсыпке песка под анкерную стенку, в территорию причала, общим объемом более 67 тыс.м куб.;
- выполнены работы по монтажу 9,87 т распределительного пояса анкерной стенки;
- выполнен монтаж 5 комплектов анкерных тяг и поддерживающих конструкций
- выполнены работы по отсыпке песка под анкерную стенку, в территорию причала, общим объемом более 70 тыс. м3;
- выполнен монтаж 5 комплектов анкерных тяг и поддерживающих конструкций.
- выполнены работы по монтажу 9 комплектов анкерных тяг;
- выполнены работы по монтажу 35 анкерных шпунтин;
- выполнены работы по монтажу 21 погонного метра распределительного пояса анкерной стенки;
- выполнены работы по отсыпке песчаного основания анкерной стенки.
- завершены работы по монтажу анкерной стенки;
- завершены работы по монтажу распределительного пояса анкерной стенки;
- выполнялись работы по монтажу 19 комплектов анкерных тяг;
- выполнялись работы по отсыпке песчаного основания анкерной стенки и в тело причала в объеме почти 1,9 тыс. м. куб.
- выполнялись работы по отсыпке песчаного основания анкерной стенки и в тело причала в объеме почти 500 куб. м.
- заключен контракт от 13.07.2017 № 17-248 ОКСиР на разработку проектной документации на завершение строительства причала №88.
- предприятием утверждена программа и задание на выполнение инженерных изысканий в целях разработки проектной документации на завершение строительства причала №88;- заключен договор на оказание услуг по геодезическому мониторингу в период консервации объекта капитального строительства.
- завершены работы по первому этапу геодезического мониторинга в период консервации объекта капитального строительства.
- завершены инженерные изыскания, необходимые для разработки проектной документации на завершение строительства причала № 88.
- выполнялись работы по разработке проектной документации на завершение строительства причала № 88.
- завершены работы по разработке проектной документации на завершение строительства причала №88;
- выполняются работы по формированию комплекта документов для представления в ФАУ «Главгосэкспертиза России» проектной документации и результатов инженерных изысканий на государственную экспертизу.
- выполняются работы по формированию комплекта документов для представления в ФАУ «Главгосэкспертиза России» проектной документации и результатов инженерных изысканий на государственную экспертизу.
- получено положительное заключение экспертной комиссии государственной экологической экспертизы от 25.12.2018 № 56, утвержденное приказом Балтийско-Арктического морского управления Росприроднадзора от 25.12.2018 № 238-ЭЗ, по проектной документации.
- выполняются работы по формированию комплекта документов для представления в ФАУ «Главгосэкспертиза России» проектной документации и результатов инженерных изысканий на государственную экспертизу.
- выполнялись работы по формированию документов для расторжения контракта на разработку проектной документации с подрядной организацией в связи с невыполнением ею своих договорных обязательств.
- контракт на разработку проектной документации на завершение строительства причала № 88 расторгнут предприятием в одностороннем порядке ввиду невыполнения подрядной организацией АО «Инвестиции.Инжиниринг.Строительство» своих обязательств по контракту.
- работы не выполнялись в связи с расторжением договора с подрядной организацией.
- заключен договор с подрядной организацией, отобранной по итогам проведения конкурентных процедур, на проведение работ по разработке рабочей документации и выполнению строительно-монтажных работ;
- завершены работы по передаче подрядной организации строительной площадки и исходно-разрешительной документации.
- выполнялись инженерные изыскания.
- выполнялись инженерные изыскания;
- выполнялись работы по обследованию границы проектирования.
- выполнялись инженерные изыскания;
- завершены работы по обследованию границы проектирования;
- завершены работы по водолазному обследованию шпунта лицевой стенки причала № 88.
- выполнялись инженерные изыскания;
- завершены археологические работы;
- завершены работы по обследованию территории на наличие техногенных и взрывоопасных предметов;
- выполнялись проектные работы.
- выполнялись инженерные изыскания;
- выполнялись проектные работы.
- завершены инженерные изыскания;
- выполнялись проектные работы.
- выполнялись проектные работы.
Срок завершения строительно-монтажных работ: 5 ноября 2027 года;
Срок ввода в эксплуатацию объекта: апрель 2028 года.
В рамках реализации проекта предусматривается:
- реконструкция гидротехнического сооружения «Канал Выборг – Высоцк» с увеличением площади объекта на 3,33 га до 422,2 га и доведением отметок дна до -12,7 м;
- строительство одного берегового навигационного знака высотой 8 м;
- установка двух плавучих предостерегательных знаков;
- перенос одного существующего плавучего предостерегательного знака- заключен договор подряда;
- завершены работы по мобилизации дноуглубительной техники;
- выполнялись водолазные работы на площади 75 кв. м;
- выполнялись дноуглубительные работы на площади 5 га с доведением отметок дна до -6 м и объемом изъятого донного грунта в размере 8,3 тыс. куб. м.
- выполнялись водолазные работы на площади 163 кв. м;
- выполнялись дноуглубительные работы на площади 5 га с доведением отметок дна до -9 м и объемом изъятого донного грунта в размере 80,4 тыс. куб. м.
- выполнялись водолазные работы на площади 150 кв. м;
- выполнялись дноуглубительные работы на площади 5 га с доведением отметок дна до -12 м и объемом изъятого донного грунта в размере 105,6 тыс. куб. м.
- выполнялись водолазные работы на площади 163 кв. м;
- выполнялись дноуглубительные работы на площади 5 га с доведением отметок дна до -12,3 м и объемом изъятого донного грунта в размере 54 тыс. куб. м.
- выполнялись водолазные работы на площади 276 кв. м;
- выполнялись дноуглубительные работы на площади 5 га с доведением отметок дна до -12,35 м и объемом изъятого донного грунта в размере 46,5 тыс. куб. м.- выполнялись водолазные работы на площади 225 кв. м;
- выполнялись дноуглубительные работы на площади 5 га с доведением отметок дна до -12,4 м и объемом изъятого донного грунта в размере 37,5 тыс. куб. м.
- выполнялись водолазные работы на площади 275 кв. м;
- выполнялись дноуглубительные работы на площади 5 га с доведением отметок дна до -12,5 м и объемом изъятого донного грунта в размере 69,5 тыс. куб. м.
- завершены водолазные работы на площади 193 кв. м. Всего было выполнено водолазных работ на площади 1,5 тыс. кв. м;
- выполнялись дноуглубительные работы на площади 5 га с доведением отметок дна до -12,6 м и объемом изъятого донного грунта в размере 96 тыс. куб. м.
- выполнялись дноуглубительные работы на площади 5 га с доведением отметок дна до -12,7 м и объемом изъятого донного грунта в размере 10 тыс. куб. м.
Срок окончания работ по договору: ноябрь 2025 года.
Срок сдачи в эксплуатацию объекта: декабрь 2025 годаРеализация проекта позволит обеспечить с использованием морского пассажирского терминала круизное судоходство в объеме не менее 225 тыс. пассажиров в год и числом судозаходов 110 круизных судов в год, а также паромное судоходство в объеме 77,8 тыс. пассажиров и 80 тыс. единиц накатных грузов в год при 312 судозаходах паромов в год
В связи с передачей с 1 января 2022 года полномочий заказчика по договору строительства объекта от ФГУП «Росморпорт» к ФКУ «Ространсмодернизация» в настоящее время в части обязательств предприятия по реализации данного инфраструктурного проекта предполагается выполнить:
- строительство здания пассажирского терминала;
- строительство радиорелейной мачты высотой 50 м для размещения оборудования связи и навигации;
- устройство ливневой канализации;
- строительство объектов транспортной безопасности морского терминала
АО «Стройтрансгаз» (в период с февраля 2020 года по 03.06.2021)
ООО «РегионПромСтрой» (в период с 24.08.2021 по 27.08.2022)
ФГБУ «Морспасслужба» (в период с 24.09.2021 по настоящее время) (с 01.01.2022 полномочия заказчика по договору перешли от ФГУП «Росморпорт» к ФКУ «Ространсмодернизация»)
ООО «ГЕОИЗОЛ» (в период с 27.09.2022 по 01.08.2025)
ООО «Спецстрой» (в период с 06.10.2025 по 04.11.2025)
Договор от 21.02.2020 № КУ-38/20 (выполнение работ по строительству и сохранению гидротехнических сооружений и строительных конструкций на незаконченном строительством объекте) (выполнен в полном объеме)
Договор от 24.08.2021 № 21-347 ОКСиР (выполнение подготовительных работ на незаконченном строительством объекте) (расторгнут 27.08.2022 в одностороннем порядке на основании письма Северо-Западного бассейнового филиала ФГУП «Росморпорт» от 18.08.2022 № Ф1030-14/4705-ИС)
Государственный контракт от 24.09.2021 № 338/ОПЭД-21 (на выполнение строительно-монтажных работ по завершению строительства объекта) (с 01.01.2022 полномочия заказчика по договору перешли от ФГУП «Росморпорт» к ФКУ «Ространсмодернизация»)
А) дополнительное соглашение от 12.11.2021 № 1
Б) дополнительное соглашение от 30.12.2021 № 2
Договор от 27.09.2022 № КУ-218/22 (выполнение работ по строительству здания пассажирского терминала и радиорелейной мачты, устройству ливневой канализации и строительству объектов транспортной безопасности) (расторгнут 01.08.2025 в одностороннем порядке в соответствии с письмом Северо-Западного бассейнового филиала ФГУП «Росморпорт» от 16.07.2025 № Ф1030-14/4428-ИС в связи с неисполнением подрядной организацией обязательств по договору)
А) дополнительное соглашение от 06.06.2023 № 1
Договор от 06.10.2025 № КУ-223/25 (выполнение работ по бетонированию плиты перекрытия здания пассажирского терминала)
- заключен договор с подрядной организацией;
- проектная документация, журналы работ, строительная площадка и геодезическая разбивка сооружения переданы подрядной организации;
- выполнялись работы по демонтажу корпуса № 1 административно-бытового комплекса, материального склада и механических мастерских.
- завершены работы по демонтажу механических мастерских; материального склада; материального склада (ацетиленового); здания службы безопасности мореплавания; здания котельной.
- выполнялись работы по демонтажу корпуса № 1 административно-бытового комплекса.
- выполнялись работы по магнитометрии территории;
- выполнялись работы по обследованию акватории;
- выполнялись работы по демонтажу производственного причала;
- выполнялись работы по очистке территории от строительного мусора;
- выполнялись работы по формированию строительного городка.
- выполнялись работы по обследованию акватории;
- выполнялись работы по демонтажу производственного причала;
- выполнялись работы по демонтажу трубы котельной;
- выполнялись работы по очистке территории от строительного мусора;
- выполнялись работы по формированию строительного городка;
- выполнялись работы по намыву территории морского терминала на площади 30,61 га в объеме 60 тыс. куб. м песка.
- выполнялись работы по обследованию акватории;
- выполнялись работы по демонтажу производственного причала;
- завершены работы по демонтажу трубы котельной;
- выполнялись работы по очистке территории от строительного мусора;
- завершены работы по формированию строительного городка;
- выполнялись работы по намыву песчаного грунта для использования в строительстве территории морского терминала на площади 3 га в объеме 189 тыс. куб. м песка;
- выполнялись дноуглубительные работы на площади 30,61 га с доведением отметок дна до -9 м в объеме 189 тыс. куб. м изъятого песчаного грунта.
- выполнялись работы по демонтажу Восточного мола.
- выполнялись работы по обследованию акватории;
- выполнялись работы по подъему обнаруженных на дне акватории предметов;
- выполнялись работы по демонтажу производственного причала;
- выполнялись работы по очистке территории от строительного мусора;
- работы по намыву песчаного грунта для использования в строительстве территории морского терминала приостановлены в связи с наступлением нерестового периода;
- дноуглубительные работы приостановлены в связи с наступлением нерестового периода;
- выполнялись работы по демонтажу Восточного мола;
- выполнялись работы по демонтажу шпоры Северного мола;
- выполнялись работы по перекладке тетраподов Северного мола;
- завершены работы по демонтажу 5 знаков средств навигационного обеспечения;
- завершены работы по обследованию акватории;
- выполнялись работы по подъему обнаруженных на дне акватории предметов;
- работы по демонтажу производственного причала приостановлены в соответствии с графиком производства строительно-монтажных работ;
- работы по очистке территории от строительного мусора не выполнялись в связи приостановкой вывоза строительного мусора на период получения разрешительных документов;
- работы по намыву песчаного грунта для использования в строительстве территории морского терминала приостановлены в связи с наступлением нерестового периода;
- дноуглубительные работы приостановлены в связи с наступлением нерестового периода;
- выполнялись работы по демонтажу Восточного мола;
- выполнялись работы по восстановлению головы Восточного мола;
- завершены работы по демонтажу шпоры Северного мола;
- выполнялись работы по перекладке тетраподов Северного мола;
- выполнялись работы укладке 300 биг-бегов на Северном молу;
- завершены работы по устройству шпунтовой стенки причала для судов портового флота в количестве 92 ед. шпунта. Всего установлено 92 ед. шпунта;
- выполнялись работы по устройству шпунтовой стенки берегоукрепления внутри гавани в количестве 46 ед. шпунта
- работы по магнитометрии территории не выполнялись в соответствии с графиком производства строительно-монтажных работ;
- работы по подъему обнаруженных на дне акватории предметов не выполнялись в соответствии с графиком производства строительно-монтажных работ;
- выполнялись работы по демонтажу производственного причала;
- выполнялись работы по демонтажу инженерных сетей;- выполнялись работы по очистке территории от строительного мусора;
- работы по намыву песчаного грунта для использования в строительстве территории морского терминала не выполнялись в связи с наступлением нерестового периода;
- дноуглубительные работы не выполнялись в связи с наступлением нерестового периода;
- завершены работы по демонтажу Восточного мола;
- выполнялись работы по восстановлению головы Восточного мола;
- работы по перекладке тетраподов Северного мола не выполнялись в соответствии с графиком производства строительно-монтажных работ;
- работы укладке биг-бегов на Северном молу не выполнялись в соответствии с графиком производства строительно-монтажных работ;
- завершены работы по устройству анкерной системы причала для судов портового флота в количестве 52 свай. Всего установлено 52 сваи;
- выполнялись работы по устройству шпунтовой стенки берегоукрепления внутри гавани в количестве 37 ед. шпунта.
- выполнялись работы по устройству анкерной системы берегоукрепления внутри гавани в количестве 7 свай;
- выполнялись работы по устройству анкерной системы оградительного мола в количестве 70 свай
- работы по магнитометрии территории не выполнялись в соответствии с графиком производства строительно-монтажных работ;
- работы по подъему обнаруженных на дне акватории предметов не выполнялись в соответствии с графиком производства строительно-монтажных работ;
- выполнялись работы по демонтажу производственного причала;
- выполнялись работы по демонтажу инженерных сетей;
- выполнялись работы по очистке территории от строительного мусора;
- работы по намыву песчаного грунта для использования в строительстве территории морского терминала не выполнялись в связи с наступлением нерестового периода;
- выполнялись дноуглубительные работы на площади 3,6 га на территории формируемого фарватера входа во внутреннюю гавань в объеме 9,3 тыс. тонн изъятого донного грунта с доведением отметок дна до -4 метров;
- выполнялись работы по восстановлению головы Восточного мола;
- работы по перекладке тетраподов Северного мола не выполнялись в соответствии с графиком производства строительно-монтажных работ;
- работы укладке биг-бегов на Северном молу не выполнялись в соответствии с графиком производства строительно-монтажных работ;
- выполнялись работы по устройству лицевой шпунтовой стенки берегоукрепления внутри гавани в количестве 37 ед. шпунта;
- выполнялись работы по устройству анкерной системы берегоукрепления внутри гавани в количестве 56 свай;
- выполнялись работы по устройству анкерной системы оградительного мола в количестве 122 свай;
- выполнялись работы по выносу в натуру осей вспомогательных зданий «КПП режимной зоны» и «Гараж ПС»;
- выполнялись земляные работы по вспомогательным зданиям «КПП режимной зоны» и «Гараж ПС»
- работы по магнитометрии территории не выполнялись в соответствии с графиком производства строительно-монтажных работ;
- работы по подъему обнаруженных на дне акватории предметов не выполнялись в соответствии с графиком производства строительно-монтажных работ;
- выполнялись работы по демонтажу производственного причала;
- выполнялись работы по демонтажу инженерных сетей;
- выполнялись работы по очистке территории от строительного мусора;
- работы по намыву песчаного грунта для использования в строительстве территории морского терминала не выполнялись в связи с наступлением нерестового периода;
- дноуглубительные работы приостановлены в соответствии с графиком производства строительно-монтажных работ;
- выполнялись работы по восстановлению головы Восточного мола;
- работы по перекладке тетраподов Северного мола не выполнялись в соответствии с графиком производства строительно-монтажных работ;
- работы укладке биг-бегов на Северном молу не выполнялись в соответствии с графиком производства строительно-монтажных работ;
- выполнялись работы по устройству лицевой шпунтовой стенки берегоукрепления внутри гавани в количестве 87 ед. шпунта;
- выполнялись работы по устройству анкерной системы берегоукрепления внутри гавани в количестве 7 свай;
- выполнялись работы по устройству анкерной системы оградительного мола в количестве 97 свай;
- завершены работы по выносу в натуру осей вспомогательных зданий «КПП режимной зоны» и «Гараж ПС»;
- завершены земляные работы по вспомогательным зданиям «КПП режимной зоны» и «Гараж ПС»;
- выполнялись работы по устройству лицевой шпунтовой стенки оградительного мола в количестве 28 шт.;
- завершены работы по устройству железобетонной фундаментной плиты «КПП режимной зоны»;
- завершены работы по устройству железобетонных столбчатых фундаментов «Гараж ПС»;
- завершены работы по устройству железобетонной фундаментной плиты «Специализированная проходная»;
- завершены работы по устройству котлована «Бокса углубленного досмотра»;
- выполнялись работы по устройству бетонной подготовки под фундаменты «Бокса углубленного досмотра».
- выполнялись работы по демонтажу производственного причала;
- выполнялись работы по демонтажу инженерных сетей;
- выполнялись работы по очистке территории от строительного мусора;
- завершены работы по восстановлению головы Восточного мола;
- работы по устройству лицевой шпунтовой стенки берегоукрепления внутри гавани не выполнялись в соответствии с графиком производства строительно-монтажных работ;
- выполнялись работы по устройству анкерной системы берегоукрепления внутри гавани в количестве 32 свай;
- работы по устройству анкерной системы оградительного мола не выполнялись в соответствии с графиком производства строительно-монтажных работ;
- выполнялись работы по устройству лицевой шпунтовой стенки оградительного мола в количестве 95 шт.;
- работы по устройству бетонной подготовки под фундаменты «Бокса углубленного досмотра» не выполнялись в соответствии с графиком производства строительно-монтажных работ;
- выполнялись работы по монтажу ригельной анкерной системы оградительного мола;
- выполнялись работы по установке свай анкерной системы причала 1 участка 1 в количестве 61 свай;
- выполнялись работы по монтажу бетонных пробок шпунта причала 1 участка 1 в количестве 59 шт.;
- выполнялись работы по монтажу бетонных пробок анкерных свай причала 1 участка 1 в количестве 20 шт.;
- выполнялись работы по установке свай анкерной системы причала 1 участка 2 в количестве 8 свай;
- выполнялись работы по монтажу бетонных пробок шпунта берегоукрепления внутри гавани в количестве 10 шт.;
- выполнялись работы по монтажу бетонных пробок анкерных свай берегоукрепления внутри гавани в количестве 18 шт.;
- выполнялись работы по монтажу анкерных тяг берегоукрепления внутри гавани в количестве 2 шт.;
- выполнялись работы по установке свай анкерной системы берегового пандуса в количестве 15 свай;
- выполнялись работы по армированию цоколя и стен здания «КПП режимной зоны»;
- завершены работы по утеплению фундаментной плиты здания «Гараж ПС ФСБ РФ»;
- выполнялись работы по армированию фундаментов здания «Бокс углубленного досмотра»;
- выполнялись работы по бетонированию столбчатых фундаментов здания «Бокс углубленного досмотра»;
- выполнялись работы по армированию цоколя и стен здания «Специализированная проходная»;
- выполнялись работы по устройству котлована здания «Склад временного хранения»;
- выполнялись работы по устройству бетонной подготовки здания «Склад временного хранения»;
- выполнялись работы по устройству армирования столбчатых фундаментов здания «Склад временного хранения»
- работы по демонтажу производственного причала не выполнялись в соответствии с графиком производства строительно-монтажных работ;
- выполнялись работы по демонтажу инженерных сетей;
- выполнялись работы по очистке территории от строительного мусора;
- выполнялись работы по устройству анкерной системы берегоукрепления внутри гавани в количестве 12 свай;
- работы по устройству лицевой шпунтовой стенки оградительного мола не выполнялись в соответствии с графиком производства строительно-монтажных работ;
- завершены работы по устройству бетонной подготовки под фундаменты «Бокса углубленного досмотра»;
- работы по монтажу ригельной анкерной системы оградительного мола не выполнялись в соответствии с графиком производства строительно-монтажных работ;
- работы по установке свай анкерной системы причала 1 участка 1 не выполнялись в соответствии с графиком производства строительно-монтажных работ;
- работы по монтажу бетонных пробок шпунта причала 1 участка 1 не выполнялись в соответствии с графиком производства строительно-монтажных работ;
- работы по монтажу бетонных пробок анкерных свай причала 1 участка 1 не выполнялись в соответствии с графиком производства строительно-монтажных работ;
- работы по установке свай анкерной системы причала 1 участка 2 не выполнялись в соответствии с графиком производства строительно-монтажных работ;
- выполнялись работы по монтажу бетонных пробок шпунта берегоукрепления внутри гавани в количестве 50 шт.;
- выполнялись работы по монтажу бетонных пробок анкерных свай берегоукрепления внутри гавани в количестве 47 шт.;
- работы по монтажу анкерных тяг берегоукрепления внутри гавани не выполнялись в соответствии с графиком производства строительно-монтажных работ;
- работы по установке свай анкерной системы берегового пандуса не выполнялись в соответствии с графиком производства строительно-монтажных работ;
- выполнялись работы по армированию цоколя и стен здания «КПП режимной зоны»;
- выполнялись работы по армированию фундаментов здания «Бокс углубленного досмотра»;
- завершены работы по бетонированию столбчатых фундаментов здания «Бокс углубленного досмотра»;
- выполнялись работы по армированию цоколя и стен здания «Специализированная проходная»;
- работы по устройству котлована здания «Склад временного хранения» не выполнялись в соответствии с графиком производства строительно-монтажных работ;
- завершены работы по устройству бетонной подготовки здания «Склад временного хранения»;
- выполнялись работы по устройству армирования столбчатых фундаментов здания «Склад временного хранения»;
- выполнялись работы по установке анкерных свай причала №1 участка №2 в количестве 17 шт.;
- выполнялись работы по установке балок анкерно-ригельной системы причала № 1 участка № 2;
- выполнялись работы по бетонированию фундаментной плиты здания «Гараж ПС ФСБ России»;
- выполнялись работы по устройству столбчатых фундаментов здания «Склад временного хранения»;
- выполнялись работы по устройству монолитных железобетонных ленточных фундаментов здания «Бокс углубленного досмотра».
- работы по демонтажу инженерных сетей не выполнялись в соответствии с графиком производства строительно-монтажных работ;
- работы по очистке территории от строительного мусора не выполнялись в соответствии с графиком производства строительно-монтажных работ;
- выполнялись работы по устройству анкерной системы берегоукрепления внутри гавани в количестве 1 сваи;
- выполнялись работы по устройству анкерной системы оградительного мола в количестве 32 свай;
- выполнялись работы по устройству лицевой шпунтовой стенки оградительного мола в количестве 50 ед. шпунта;
- выполнялись работы по монтажу ригельной анкерной системы оградительного мола;
- выполнялись работы по монтажу бетонных пробок шпунта причала №1 участка №1 в количестве 46 шт.;
- выполнялись работы по монтажу бетонных пробок анкерных свай причала №1 участка №1 в количестве 33 ед.;
- выполнялись работы по установке свай анкерной системы причала №1 участка №2 в количестве 28 свай;
- выполнялись работы по монтажу бетонных пробок шпунта берегоукрепления внутри гавани в количестве 7 шт.;
- выполнялись работы по монтажу бетонных пробок анкерных свай берегоукрепления внутри гавани в количестве 3 шт.;
- работы по армированию цоколя и стен здания «КПП режимной зоны» не выполнялись в соответствии с графиком производства строительно-монтажных работ;
- выполнялись работы по армированию фундаментов здания «Бокс углубленного досмотра»;
- завершены работы по бетонированию столбчатых фундаментов здания «Бокс углубленного досмотра»;
- работы по армированию цоколя и стен здания «Специализированная проходная» не выполнялись в соответствии с графиком производства строительно-монтажных работ;
- выполнялись работы по устройству армирования столбчатых фундаментов здания «Склад временного хранения»;
- выполнялись работы по установке балок анкерно-ригельной системы причала № 1 участка № 2;
- завершены работы по бетонированию фундаментной плиты здания «Гараж ПС ФСБ России»;
- выполнялись работы по устройству столбчатых фундаментов здания «Склад временного хранения»;
- выполнялись работы по устройству монолитных железобетонных ленточных фундаментов здания «Бокс углубленного досмотра».
- завершены работы по устройству анкерной системы берегоукрепления внутри гавани. Всего выполнено работ по устройству 115 свай анкерной системы берегоукрепления внутри гавани;
- работы по устройству анкерной системы оградительного мола не выполнялись в связи с неблагоприятными природно-климатическими условиями;
- работы по устройству лицевой шпунтовой стенки оградительного мола не выполнялись в связи с неблагоприятными природно-климатическими условиями;
- работы по монтажу ригельной анкерной системы оградительного мола не выполнялись в связи с неблагоприятными природно-климатическими условиями;
- работы по монтажу бетонных пробок шпунта причала № 1 участка № 1 не выполнялись в соответствии с графиком производства строительно-монтажных работ;
- работы по монтажу бетонных пробок анкерных свай причала № 1 участка № 1 не выполнялись в соответствии с графиком производства строительно-монтажных работ;
- работы по установке свай анкерной системы причала № 1 участка № 2 не выполнялись в связи с неблагоприятными природно-климатическими условиями;
- выполнялись работы по монтажу бетонных пробок шпунта берегоукрепления внутри гавани в количестве 69 шт.;
- выполнялись работы по монтажу бетонных пробок анкерных свай берегоукрепления внутри гавани в количестве 9 шт.;
- работы по армированию фундаментов здания «Бокс углубленного досмотра» не выполнялись в соответствии с графиком производства строительно-монтажных работ;
- завершены работы по устройству армирования столбчатых фундаментов здания «Склад временного хранения»;
- работы по установке балок анкерно-ригельной системы причала № 1 участка № 2 не выполнялись в связи с неблагоприятными природно-климатическими условиями;
- работы по устройству столбчатых фундаментов здания «Склад временного хранения» не выполнялись в соответствии с графиком производства строительно-монтажных работ;
- работы по устройству монолитных железобетонных ленточных фундаментов здания «Бокс углубленного досмотра» не выполнялись в соответствии с графиком производства строительно-монтажных работ;
- выполнялись работы по армированию оголовка причала портового флота;
- выполнялись работы по монтажу анкерных тяг берегоукрепления внутри гавани в количестве 71 шт.;
- завершены работы по устройству бетонных пробок шпунта берегового пандуса в количестве 29 шт.;
- завершены работы по устройству бетонных пробок анкерных свай берегового пандуса в количестве 29 шт.
- выполнялись работы по монтажу бетонных пробок шпунта берегоукрепления внутри гавани в количестве 29 шт.;
- завершены работы по монтажу бетонных пробок анкерных свай берегоукрепления внутри гавани. Всего смонтировано 155 бетонных пробок анкерных свай берегоукрепления внутри гавани;
- завершены работы по армированию цоколя и стен здания «КПП режимной зоны»;
- завершены работы по армированию фундаментов здания «Бокс углубленного досмотра»;
- завершены работы по армированию цоколя и стен здания «Специализированная проходная»;
- выполнялись работы по установке балок анкерно-ригельной системы причала № 1 участка № 2;
- выполнялись работы по армированию оголовка причала портового флота;
- выполнялись работы по монтажу анкерных тяг берегоукрепления внутри гавани в количестве 26 шт.;
- выполнялись работы по бетонированию оголовка причала портового флота в объеме 139,5 м3 бетона;
- выполнялись работы по устройству шпунтовой стенки северного мола на участке № 2 в количестве 13 шт.;
- завершены работы по устройству анкерных тяг берегового пандуса в количестве 15 шт.;
- выполнялись работы по бетонированию анкерных свай причала № 1 на участке № 2 в количестве 6 шт.;
- выполнялись работы по бетонированию анкерных свай оградительного мола на участке № 1 в количестве 11 шт.;
- завершены работы по антикоррозионной защите бетонного оголовка восточного мола на площади 202 м2;
- завершены работы по теплоизоляции, бетонированию и гидроизоляции цоколя здания «Гараж ПС ФСБ РФ»;
- завершены работы по теплоизоляции, бетонированию и гидроизоляции цоколя здания «КПП режимной зоны»;
- выполнялись работы по бетонированию стен здания «КПП режимной зоны» в объеме 4,2 м3 бетона;
- завершены работы по теплоизоляции, бетонированию и гидроизоляции цоколя здания «Специализированная проходная»;
- завершены работы по бетонированию стен здания «Специализированная проходная» в объеме 16 м3 бетона;
- выполнялись работы по обратной засыпке котлована здания «Склад временного хранения грузов» в объеме 530 м3 песка;
- завершены работы по теплоизоляции фундаментов здания «Бокс углубленного досмотра»;
- завершены работы по армированию и бетонированию смотрового приямка здания «Бокс углубленного досмотра» в объеме 23,7 м3 бетона.
- выполнялись работы по монтажу бетонных пробок шпунта берегоукрепления внутри гавани в количестве 29 шт.;
- работы по установке балок анкерно-ригельной системы причала № 1 участка № 2 не выполнялись в связи с неблагоприятными природно-климатическими условиями;
- завершены работы по армированию оголовка причала портового флота;
- завершены работы по монтажу анкерных тяг берегоукрепления внутри гавани. Всего смонтировано 115 шт. анкерных тяг берегоукрепления внутри гавани;
- выполнялись работы по бетонированию оголовка причала портового флота в объеме 46,5 м3 бетона;
- выполнялись работы по устройству шпунтовой стенки северного мола на участке № 2 в количестве 16 шт.;
- работы по бетонированию анкерных свай причала № 1 на участке № 2 не выполнялись в связи с неблагоприятными природно-климатическими условиями;
- работы по бетонированию анкерных свай оградительного мола на участке № 1 не выполнялись в связи с неблагоприятными природно-климатическими условиями;
- работы по бетонированию стен здания «КПП режимной зоны» не выполнялись в соответствии с графиком производства строительно-монтажных работ;
- работы по обратной засыпке котлована здания «Склад временного хранения грузов» не выполнялись в соответствии с графиком производства строительно-монтажных работ;
- завершены работы по вертикальной гидроизоляции смотрового приямка здания «Бокс углубленного досмотра» на площади 90,5 м2;
- выполнялись работы по антикоррозионной защите оголовка причала портового флота на площади 62,7 м2;
- выполнялись работы по армированию оголовка берегоукрепления внутри гавани;
- выполнялись работы по устройству бетонной подготовки фундаментной плиты здания «Склад временного хранения грузов» в объеме 58 м3 бетона.
- завершены работы по монтажу бетонных пробок шпунта берегоукрепления внутри гавани в количестве 14 шт. Всего смонтировано 207 шт. бетонных пробок шпунта берегоукрепления внутри гавани;
- завершены работы по бетонированию оголовка причала портового флота в объеме 87,9 м3 бетона. Всего выполнено работ по бетонированию оголовка причала портового флота в объеме 273,9 м3 бетона;
- выполнялись работы по устройству шпунтовой стенки северного мола на участке № 2 в количестве 76 шт.;
- работы по антикоррозионной защите оголовка причала портового флота не выполнялись в соответствии с графиком производства строительно-монтажных работ;
- выполнялись работы по армированию оголовка берегоукрепления внутри гавани;
- работы по устройству бетонной подготовки фундаментной плиты здания «Склад временного хранения грузов» не выполнялись в соответствии с графиком производства строительно-монтажных работ;
- завершены работы по бетонированию покрытия здания «Спецпроходная» в объёме 14,7 м3;
- завершены работы по монтажу шпунтовой стенки причала № 1 на участке № 1 в количестве 4 шт. Всего смонтировано 143 шт. шпунта;
- выполнялись работы по монтажу шпунтовой стенки причала № 1 на участке № 2 в количестве 48 шт.;
- выполнялись работы по установке анкерных свай причала № 1 на участке № 2 в количестве 4 шт.;
- выполнялись работы по бетонированию оголовка берегоукрепления внутри гавани в количестве 176,7 м3 бетона;
- выполнялись работы по бетонированию пробок анкерных свай берегового пандуса в количестве 8 шт.;
- выполнялись работы по бетонированию пробок шпунтовой стенки причала № 1 на участке № 1 в количестве 12 шт.;
- выполнялись работы по устройству анкерных тяг причала № 1 на участке № 1 в количестве 24 шт.
- выполнялись работы по устройству шпунтовой стенки северного мола на участке №2 в количестве 42 шт.;
- завершены работы по армированию оголовка берегоукрепления внутри гавани;
- выполнялись работы по монтажу шпунтовой стенки причала №1 на участке №2 в количестве 17 шт.;
- выполнялись работы по установке анкерных свай причала №1 на участке № 2 в количестве 64 шт.;
- выполнялись работы по бетонированию оголовка берегоукрепления внутри гавани в количестве 130,4 м3 бетона;
- завершены работы по бетонированию пробок анкерных свай берегового пандуса в количестве 6 шт. Всего выполнено бетонирование 29 ед. пробок анкерных свай;
- выполнялись работы по бетонированию пробок шпунтовой стенки причала №1 на участке №1 в количестве 4 шт.;
- выполнялись работы по устройству анкерных тяг причала №1 на участке №1 в количестве 12 шт.
- выполнялись работы по устройству анкерных свай причала №1 на участке №1 в количестве 5 шт.;
- выполнялись работы по установке балок анкерно-ригельной системы причала № 1 на участке № 2;
- выполнялись работы по бетонированию пробок анкерных свай причала №1 на участке №2 в количестве 2 шт.;
- выполнялись работы по бетонированию пробок шпунтовой стенки причала №1 на участке №2 в количестве 8 шт.;
- завершены работы по бетонированию стен здания «КПП режимной зоны». Всего выполнено работ по бетонированию в объеме 14,8 м3 бетона;
- выполнялись работы по монтажу 2 ед. стальных колонн здания «Специализированная проходная»;
- завершены работы по устройству арматурных каркасов анкерных свай берегового пандуса;
- выполнялись работы по армированию оголовка берегового пандуса;
- выполнялись работы по устройству балок анкерно-ригельной системы оградительного мола;
- выполнялись работы по дноуглублению акватории на площади 10,2 га с доведением отметок дна до -5 и -9,2 метров и изъятием донного грунта в объеме 45 тыс. м куб с последующим образованием искусственного земельного участка №1 на площади 1,9 га.
- выполнялись работы по устройству шпунтовой стенки северного мола на участке №2 в количестве 31 шт.;
- выполнялись работы по монтажу шпунтовой стенки причала №1 на участке №2 в количестве 17 шт.;
- выполнялись работы по установке анкерных свай причала №1 на участке № 2 в количестве 28 шт.;
- завершены работы по бетонированию оголовка берегоукрепления внутри гавани в количестве 218,3 м3 бетона. Всего выполнено работ по бетонированию в объеме 516,6 м3;
- работы по бетонированию пробок шпунтовой стенки причала №1 на участке №1 не выполнялись в соответствии с графиком производства строительно-монтажных работ;
- выполнялись работы по устройству анкерных тяг причала №1 на участке №1 в количестве 12 шт.
- выполнялись работы по устройству анкерных свай причала №1 на участке №1 в количестве 3 шт.;
- выполнялись работы по установке балок анкерно-ригельной системы причала № 1 на участке № 2;
- выполнялись работы по бетонированию пробок анкерных свай причала №1 на участке №2 в количестве 13 шт.;
- выполнялись работы по бетонированию пробок шпунтовой стенки причала №1 на участке №2 в количестве 10 шт.;
- работы по монтажу стальных колонн здания «Специализированная проходная» не выполнялись в соответствии с графиком производства строительно-монтажных работ;
- завершены работы по армированию оголовка берегового пандуса;
- работы по устройству балок анкерно-ригельной системы оградительного мола не выполнялись в соответствии с графиком производства строительно-монтажных работ;
- выполнялись работы по дноуглублению акватории на площади 10,2 га с доведением отметок дна до -5 и -9,2 метров и изъятием донного грунта в объеме 90 тыс. м куб с последующим образованием искусственного земельного участка №1 на площади 1,93 га и искусственного участка №2 на площади 0,5 га.
- завершены работы по бетонированию покрытия здания «КПП режимной зоны». Всего выполнено работ по бетонированию в объёме 14,7 м3;
- завершены работы по бетонированию оголовка берегового пандуса. Всего выполнено работ по бетонированию в объёме 92,7 м3;
- выполнялись работы по установке анкерных свай причала №2 в количестве 8 шт.;
- завершены работы по высадке 172 деревьев в рамках компенсационного озеленения;
- выполнялись работы по устройству сети хозяйственно-бытовой канализации в объёме 308 м сети и 17 колодцев.
- работы по устройству шпунтовой стенки северного мола на участке № 2 не выполнялись в соответствии с графиком производства строительно-монтажных работ;
- работы по монтажу шпунтовой стенки причала № 1 на участке № 2 не выполнялись в соответствии с графиком производства строительно-монтажных работ;
- работы по установке анкерных свай причала № 1 на участке № 2 не выполнялись в соответствии с графиком производства строительно-монтажных работ;
- работы по устройству анкерных тяг причала № 1 на участке № 1 не выполнялись в соответствии с графиком производства строительно-монтажных работ;
- работы по устройству анкерных свай причала № 1 на участке № 1 не выполнялись в соответствии с графиком производства строительно-монтажных работ;
- выполнялись работы по установке балок анкерно-ригельной системы причала № 1 на участке № 2;
- работы по бетонированию пробок анкерных свай причала № 1 на участке № 2 не выполнялись в соответствии с графиком производства строительно-монтажных работ;
- работы по бетонированию пробок шпунтовой стенки причала № 1 на участке № 2 не выполнялись в соответствии с графиком производства строительно-монтажных работ;
- работы по дноуглублению акватории с последующим образованием искусственного земельного участка № 1 на площади 1,93 га и искусственного участка № 2 на площади 0,5 га не выполнялись в соответствии с графиком производства строительно-монтажных работ;
- работы по установке анкерных свай причала № 2 не выполнялись в соответствии с графиком производства строительно-монтажных работ;
- работы по устройству сети хозяйственно-бытовой канализации не выполнялись в соответствии с графиком производства строительно-монтажных работ.
- выполнялись работы по устройству шпунтовой стенки северного мола на участке № 2 в количестве 38 шт.;
- выполнялись работы по устройству лицевой шпунтовой стенки оградительного мола в количестве 3 шт.;
- выполнялись работы по установке балок анкерно-ригельной системы причала № 1 на участке № 2.
- завершены работы по устройству шпунтовой стенки северного мола на участке № 2. Всего выполнено работ по установке 228 ед. шпунта;
- работы по устройству лицевой шпунтовой стенки оградительного мола не выполнялись в соответствии с графиком производства строительно-монтажных работ;
- работы по установке балок анкерно-ригельной системы причала № 1 на участке № 2 не выполнялись в соответствии с графиком производства строительно-монтажных работ;
- выполнялись работы по устройству шпунтовой стенки северного мола на участке № 1 в количестве 8 шт.;
- выполнялись работы по бетонированию пробок шпунтовой стенки причала № 1 на участке № 2 в количестве 3 шт.;
- выполнялись работы по бетонированию пробок лицевой стенки причала № 1 на участке № 1 в количестве 1 шт.;
- выполнялись работы по бетонированию пробок шпунтовой стенки северного мола на участке № 2 в количестве 26 шт.
- выполнялись работы по устройству лицевой шпунтовой стенки оградительного мола с установкой 1 ед. шпунта;
- выполнялись работы по устройству лицевой шпунтовой стенки причала №1 на участке №2 с установкой 19 ед. шпунта;
- работы по устройству шпунтовой стенки северного мола на участке №1 не выполнялись в соответствии с графиком производства строительно-монтажных работ;
- работы по бетонированию пробок шпунтовой стенки причала №1 на участке №2 не выполнялись в соответствии с графиком производства строительно-монтажных работ;
- работы по бетонированию пробок лицевой стенки причала №1 на участке №1 не выполнялись в соответствии с графиком производства строительно-монтажных работ;
- работы по бетонированию пробок шпунтовой стенки северного мола на участке №2 не выполнялись в соответствии с графиком производства строительно-монтажных работ.
- работы по устройству лицевой шпунтовой стенки оградительного мола приостановлены подрядной организацией;
- работы по устройству лицевой шпунтовой стенки причала №1 на участке №2 приостановлены подрядной организацией;
- все строительно-монтажные работы приостановлены подрядной организацией;
- государственный контракт с подрядной организацией ООО «Больверк» расторгнут в одностороннем порядке в связи с неисполнением ею контрактных обязательств.
- строительно-монтажные работы приостановлены в связи с расторжением государственного контракта;
- выполнялись работы по выбору подрядной организации для выполнения работ по сохранению гидротехнических сооружений в осенне-зимний период 2019-2020 гг. на незавершенном строительством объекте.
- выполнялись работы по выбору подрядной организации для выполнения работ по сохранению гидротехнических сооружений в зимний период 2020 года на незавершенном строительством объекте.
- на конкурсной основе выбрана подрядная организация АО «Стройтрансгаз» и с ней заключен договор на выполнение работ по строительству и сохранению гидротехнических сооружений и строительных конструкций на незаконченном строительством объекте.
- выполнялись работы подготовительного периода (поставка строительных материалов на строительную площадку, мобилизация техники и оборудования, трудовых ресурсов).
- выполнялись работы по заполнению 76 свай шпунтовой стенки северного мола, в том числе армирование и бетонирование пробок;
- выполнялись работы по заполнению 60 свай шпунтовой стенки причала № 1, в том числе армирование и бетонирование пробок;
- выполнялись работы по погружению 20 анкерных свай временной перемычки.
- выполнялись работы по заполнению 10 свай шпунтовой стенки оградительного мола, в том числе армирование и бетонирование двухуровневых пробок;
- выполнялись работы по монтажу балок анкерно-ригельной системы оградительного мола;
- выполнялись работы по заполнению 5 свай шпунтовой стенки северного мола, в том числе армирование и бетонирование пробок;
- выполнялись работы по заполнению 11 свай шпунтовой стенки причала № 1, в том числе армирование и бетонирование пробок;
- выполнялось работы по погружению 3 анкерных свай причала №1;
- выполнялись работы по заполнению 9 анкерных свай причала №1, в том числе армирование и бетонирование пробок;
- выполнялись работы по погружению 10 анкерных свай временной перемычки;
- выполнялись работы по монтажу балок анкерной системы временной перемычки;
- выполнялись работы по демонтажу 3 балок анкерной системы оградительного мола;
- выполнялись работы по демонтажу одной балки анкерной системы причала №1.
- выполнялись работы по заполнению 26 свай шпунтовой стенки оградительного мола, в том числе армирование и бетонирование двухуровневых пробок;
- выполнялись работы по монтажу балок анкерно-ригельной системы оградительного мола;
- работы по заполнению свай шпунтовой стенки северного мола не выполнялись в соответствии с графиком производства работ;
- выполнялись работы по заполнению 2 свай шпунтовой стенки причала № 1, в том числе армирование и бетонирование пробок;
- выполнялось работы по погружению одной анкерной сваи причала №1;
- выполнялись работы по заполнению 4 анкерных свай причала №1, в том числе армирование и бетонирование пробок;
- выполнялись работы по монтажу 3 анкерных тяг причала №1;
- выполнялись работы по погружению 26 анкерных свай временной перемычки;
- выполнялись работы по погружению 44 свай шпунтовой стенки временной перемычки;
- выполнялись работы по монтажу балок анкерной системы временной перемычки;
- выполнялись работы по изготовлению 21 бетонного перфорированного блока;
- выполнялись работы по изготовлению 3 габионов.
- выполнялись работы по заполнению 21 сваи шпунтовой стенки оградительного мола, в том числе армирование и бетонирование двухуровневых пробок;
- выполнялись работы по монтажу балок анкерно-ригельной системы оградительного мола;
- выполнялись работы по заполнению 2 свай шпунтовой стенки причала № 1, в том числе армирование и бетонирование пробок;
- работы по погружению анкерных свай причала №1 не выполнялись в соответствии с графиком производства работ;
- выполнялись работы по заполнению одной анкерной сваи причала №1, в том числе армирование и бетонирование пробок;
- выполнялись работы по монтажу 16 анкерных тяг причала №1;
- выполнялись работы по погружению 10 анкерных свай временной перемычки;
- выполнялись работы по погружению 29 свай шпунтовой стенки временной перемычки;
- выполнялись работы по монтажу балок анкерной системы временной перемычки;
- выполнялись работы по изготовлению 71 бетонного перфорированного блока;
- выполнялись работы по изготовлению 4 габионов;
- выполнялись работы по изготовлению 74 тетраподов.
- выполнялись работы по заполнению 12 сваи шпунтовой стенки оградительного мола, в том числе армирование и бетонирование двухуровневых пробок;
- выполнялись работы по заполнению 15 анкерных свай оградительного мола, в том числе армирование и бетонирование пробок;
- работы по монтажу балок анкерно-ригельной системы оградительного мола не выполнялись в соответствии с графиком производства работ;
- выполнялись работы по заполнению 10 свай шпунтовой стенки причала № 1, в том числе армирование и бетонирование пробок;
- выполнялись работы по погружению 10 свай шпунтовой стенки причала №1;
- работы по заполнению анкерных свай причала №1 не выполнялись в соответствии с графиком производства работ;
- работы по монтажу анкерных тяг причала №1 не выполнялись в соответствии с графиком производства работ;
- работы по погружению анкерных свай временной перемычки не выполнялись в соответствии с графиком производства работ;
- работы по погружению свай шпунтовой стенки временной перемычки не выполнялись в соответствии с графиком производства работ;
- выполнялись работы по монтажу балок анкерной системы временной перемычки;
- выполнялись работы по изготовлению 44 бетонных перфорированных блоков;
- выполнялись работы по изготовлению 37 габионов;
- выполнялись работы по изготовлению 66 тетраподов;
- выполнялись работы по отсыпке 4600 м3 тела искусственного земельного участка №2.
- выполнялись работы по заполнению 33 свай шпунтовой стенки оградительного мола, в том числе армирование и бетонирование двухуровневых пробок;
- выполнялись работы по заполнению 1 анкерной сваи оградительного мола, в том числе армирование и бетонирование пробок;
- выполнялись работы по заполнению 16 свай шпунтовой стенки причала № 1, в том числе армирование и бетонирование пробок;
- выполнялись работы по погружению 35 свай шпунтовой стенки причала № 1;
- выполнялись работы по заполнению 4 анкерных свай причала № 1;
- завершены работы по погружению 30 анкерных свай временной перемычки. Всего выполнено работ по погружению 66 анкерных свай временной перемычки;
- завершены работы по погружению одной сваи шпунтовой стенки временной перемычки. Всего выполнено работ по погружению 73 свай шпунтовой стенки временной перемычки;
- выполнялись работы по монтажу балок анкерной системы временной перемычки;
- завершены работы по изготовлению 40 ед. бетонных перфорированных блоков. Всего выполнено работ по изготовлению 176 ед. бетонных перфорированных блоков;
- выполнялись работы по изготовлению 85 габионов;
- выполнялись работы по изготовлению 91 тетрапода;
- выполнялись работы по отсыпке 14,2 тыс. кв. м тела искусственного земельного участка № 2;
- выполнялись работы по бурению 8 лидерных скважин для погружения анкерных свай причала № 1;
- выполнялись работы по укладке 29 тетраподов в узле сопряжения северного и оградительного молов.
- выполнялись работы по заполнению 35 свай шпунтовой стенки оградительного мола, в том числе армирование и бетонирование двухуровневых пробок;
- выполнялись работы по заполнению 3 анкерных свай оградительного мола, в том числе армирование и бетонирование пробок;
- выполнялись работы по заполнению 12 свай шпунтовой стенки причала№ 1, в том числе армирование и бетонирование пробок;
- выполнялись работы по погружению 7 свай шпунтовой стенки причала № 1;
- работы по заполнению анкерных свай причала № 1 не выполнялись в соответствии с графиком;
- завершены работы по монтажу балок анкерной системы временной перемычки. Всего выполнен монтаж 125,6 т балок;
- выполнялись работы по изготовлению 32 габионов;
- выполнялись работы по изготовлению 62 тетраподов;
- выполнялись работы по отсыпке 11 тыс. м3 тела искусственного земельного участка № 2;
- выполнялись и завершены работы по бурению 4 лидерных скважин для погружения анкерных свай причала № 1. Всего выполнено 12 скважин лидерного бурения;
- выполнялись работы по укладке 45 тетраподов в узле сопряжения северного и оградительного молов;
- выполнялись работы по отсыпке 828 м3 камня Северного мола;
- выполнялись работы по отсыпке 2 082 м3 щебня при восстановлении отметок дна Оградительного мола;
- выполнялись работы по антикоррозионной защите 1 120 м2 балок.
- выполнялись работы по заполнению 11 свай шпунтовой стенки оградительного мола, в том числе армирование и бетонирование двухуровневых пробок;
- работы по заполнению анкерных сваи оградительного мола, в том числе армирование и бетонирование пробок, не выполнялись в соответствии с графиком;
- выполнялись работы по заполнению 9 свай шпунтовой стенки причала № 1, в том числе армирование и бетонирование пробок;
- работы по погружению свай шпунтовой стенки причала № 1 не выполнялись в соответствии с графиком;
- работы по заполнению анкерных свай причала № 1 не выполнялись в соответствии с графиком;
- выполнялись работы по лидерному бурению 3 скважин анкерных свай причала № 1;
- выполнялись работы по лидерному бурению 1 скважины шпунтовых свай Оградительного мола;
- выполнялись работы по изготовлению 16 габионов;
- выполнялись и завершены работы по изготовлению 110 тетраподов. Всего изготовлено 488 тетраподов;
- выполнялись работы по отсыпке 2,2 тыс. м3 тела искусственного земельного участка № 2;
- выполнялись работы по укладке 266 тетраподов в узле сопряжения северного и оградительного молов;
- выполнялись работы по отсыпке 1 061 м3 камня Северного мола;
- выполнялись работы по отсыпке 1 421 м3 щебня при восстановлении отметок дна Оградительного мола;
- выполнялись работы по укладке 18 габионов Оградительного мола;
- выполнялись работы по укладке 20 бетонных перфорированных блоков Оградительного мола;
- выполнялись работы по антикоррозионной защите 1 640 м2 балок.
- работы по заполнению свай шпунтовой стенки оградительного мола, в том числе армирование и бетонирование двухуровневых пробок не выполнялись в соответствии с графиком;
- работы по заполнению анкерных свай оградительного мола, в том числе армирование и бетонирование пробок, не выполнялись в соответствии с графиком;
- работы по заполнению свай шпунтовой стенки причала № 1, в том числе армирование и бетонирование пробок не выполнялись в соответствии с графиком;
- работы по погружению свай шпунтовой стенки причала № 1 не выполнялись в соответствии с графиком;
- работы по заполнению анкерных свай причала № 1 не выполнялись в соответствии с графиком;
- выполнялись и завершены работы по изготовлению 32 габионов. Всего изготовлено 192 габиона;
- работы по отсыпке тела искусственного земельного участка № 2 не выполнялись в соответствии с графиком;
- работы по лидерному бурению скважин анкерных свай причала № 1 не выполнялись в соответствии с графиком;
- работы по лидерному бурению скважин шпунтовых свай Оградительного мола не выполнялись в соответствии с графиком;
- выполнялись работы по лидерному бурению 2 скважин анкерных свай Оградительного мола;
- работы по укладке тетраподов в узле сопряжения северного и оградительного молов не выполнялись в соответствии с графиком;
- выполнялись работы по отсыпке 829 м3 камня Северного мола;
- выполнялись работы по отсыпке 270 м3 щебня при восстановлении отметок дна Оградительного мола;
- выполнялись работы по укладке 26 габионов Оградительного мола;
- выполнялись работы по укладке 34 бетонных перфорированных блоков Оградительного мола;
- выполнялись работы по антикоррозионной защите 4 480 м2 балок.
- выполнялись работы по лидерному бурению 2 скважин анкерных свай причала № 1;
- выполнялись работы по лидерному бурению 2 скважин анкерных свай Оградительного мола;
- выполнялись работы по отсыпке 155 куб. м камня Северного мола;
- выполнялись работы по отсыпке 153 куб. м щебня при восстановлении отметок дна Оградительного мола;
- работы по укладке габионов Оградительного мола не выполнялись в соответствии с графиком производства строительно-монтажных работ;
- работы по укладке бетонных перфорированных блоков Оградительного мола не выполнялись в соответствии с графиком производства строительно-монтажных работ;
- работы по антикоррозионной защите балок не выполнялись в соответствии с графиком производства строительно-монтажных работ.
- выполнялись работы по лидерному бурению 1 скважины анкерных свай причала № 1;
- выполнялись работы по лидерному бурению 2 скважин анкерных свай Оградительного мола;
- выполнялись работы по лидерному бурению 3 скважин шпунтовых свай Оградительного мола;
- работы по отсыпке камня Северного мола не выполнялись в соответствии с графиком производства строительно-монтажных работ;
- выполнялись работы по отсыпке 354 куб. м щебня при восстановлении отметок дна Оградительного мола;
- выполнялись работы по укладке 52 габионов Оградительного мола;
- выполнялись работы по укладке 65 бетонных перфорированных блока Оградительного мола.
- завершены работы по лидерному бурению 3 скважин анкерных свай причала № 1. Всего выполнено работ по лидерному бурению 12 скважин анкерных свай причала № 1;
- завершены работы по погружению 6 анкерных свай причала № 1. Всего выполнено работ по погружению 16 анкерных свай причала № 1;
- работы по лидерному бурению скважин анкерных свай Оградительного мола не выполнялись в соответствии с графиком производства строительно-монтажных работ;
- выполнялись работы по лидерному бурению 4 скважин шпунтовых свай Оградительного мола;
- работы по отсыпке щебня при восстановлении отметок дна Оградительного мола не выполнялись в соответствии с графиком производства строительно-монтажных работ;
- выполнялись работы по укладке 10 габионов Оградительного мола;
- работы по укладке бетонных перфорированных блоков Оградительного мола не выполнялись в соответствии с графиком производства строительно-монтажных работ.
- завершены работы по лидерному бурению 4 скважин анкерных свай Оградительного мола. Всего выполнено работ по лидерному бурению 8 скважин анкерных свай Оградительного мола;
- завершены работы по погружению 8 анкерных свай Оградительного мола;
- завершены работы по лидерному бурению 4 скважин шпунтовых свай Оградительного мола. Всего выполнено работ по лидерному бурению 12 скважин шпунтовых свай Оградительного мола;
- завершены работы по погружению 12 шпунтовых свай Оградительного мола;
- выполнялись работы по отсыпке 220,7 куб. м камня Северного мола;
- выполнялись работы по укладке 19 габионов Оградительного мола;
- выполнялись работы по укладке 10 тетраподов Северного мола.
- завершены работы по отсыпке 70,4 куб. м камня Северного мола. Всего выполнено работ по отсыпке 3,1 тыс. куб. м камня Северного мола;
- завершены работы по укладке 44 тетраподов Северного мола. Всего выполнено работ по укладке 488 тетраподов Северного мола;
- завершены работы по укладке 26 габионов Оградительного мола. Всего выполнено работ по укладке 151 габиона Оградительного мола;
- выполнялись работы по укладке 65 бетонных перфорированных блоков Оградительного мола;
- завершены работы по заполнению 7 свай шпунтовой стенки Оградительного мола, в том числе армирование и бетонирование двухуровневых пробок. Всего выполнено работ по заполнению 154 свай шпунтовой стенки Оградительного мола, в том числе армирование и бетонирование двухуровневых пробок.
- завершены работы по укладке 4 бетонных перфорированных блоков Оградительного мола. Всего выполнено работ по укладке 188 бетонных перфорированных блоков Оградительного мола;
- завершены все строительно-монтажные работы по строительству и сохранению гидротехнических сооружений и строительных конструкций на незаконченном строительством объекте;
- выполнялись работы по оформлению закрывающих документов на выполненные работы по строительству и сохранению гидротехнических сооружений и строительных конструкций на незаконченном строительством объекте.
- выполнялись работы по конкурентному отбору подрядной организации на выполнение работ по продолжению строительства объекта.
- выполнялись работы по оформлению закрывающих документов на выполненные работы по строительству и сохранению гидротехнических сооружений и строительных конструкций на незаконченном строительством объекте.
- выполнялись работы по конкурентному отбору подрядной организации на выполнение работ по продолжению строительства объекта.
- выполнялись работы по выбору генеральной подрядной организации для заключения государственного контракта на завершение строительства.
- по результатам проведения конкурентных процедур заключен договор с подрядной организацией ООО «РегионПромСтрой» на выполнение подготовительных работ на незаконченном строительством объекте. Проектная документация, строительная площадка и геодезическая разбивка переданы подрядной организации.
- выполнялись подготовительные работы по организации площадки.
- выполнялись работы по оформлению закрывающих документов на выполненные работы по строительству и сохранению гидротехнических сооружений и строительных конструкций на незаконченном строительством объекте;
- завершены работы по выбору генеральной подрядной организации и заключен государственный контракт с генеральным подрядчиком на выполнение работ по завершению строительства объекта;
- завершены работы по передаче проектной и рабочей документации новой подрядной организации;
- выполнялись работы по передаче строительной площадки новой подрядной организации;
- завершены подготовительные работы по организации строительной площадки;
- выполнялись работы по укладке 9 балок технологического проезда по анкерно-ригельной системе Оградительного мола.
- выполнялись работы по оформлению закрывающих документов на выполненные работы по строительству и сохранению гидротехнических сооружений и строительных конструкций на незаконченном строительством объекте;
- завершены работы по передаче строительной площадки новой подрядной организации;
- выполнялись работы по укладке 36 балок технологического проезда по анкерно-ригельной системе Оградительного мола;
- выполнялись работы по монтажу 39 железобетонных плит технологического проезда по анкерно-ригельной системе Оградительного мола;
- выполнялись работы по разработке 750 куб. м грунта для обнаружения и обеспечения извлечения фрагментов свай лицевого ряда Оградительного мола, поврежденных штормом.
- работы по укладке балок технологического проезда по анкерно-ригельной системе Оградительного мола приостановлены по природно-климатическим условиям;
- работы по монтажу железобетонных плит технологического проезда по анкерно-ригельной системе Оградительного мола приостановлены по природно-климатическим условиям;
- работы по разработке грунта для обнаружения и обеспечения извлечения фрагментов свай лицевого ряда Оградительного мола, поврежденных штормом, приостановлены по природно-климатическим условиям;
- выполнялись подготовительные работы по устройству дамбы обвалования карты намыва на участке искусственного земельного участка № 1.
- выполнялись подготовительные работы по устройству дамбы обвалования карты намыва на участке искусственного земельного участка № 1;
- выполнялись работы по организации станции рефулирования.
- выполнялись работы по подготовке документации для конкурентного отбора подрядной организации для выполнения строительно-монтажных работ по объектам предприятия;
- выполнялись работы по разработке рабочей документации.
- выполнялись работы по разработке рабочей документации.
- выполнялись работы по разработке рабочей документации.
- выполнялись работы по разработке рабочей документации.
- заключен договор с подрядной организацией на выполнение работ по строительству объектов;
- выполнялись подготовительные работы по обустройству строительной площадки;
- выполнялись работы по мобилизации строительной техники;
- выполнялись работы по разработке рабочей документации.
- выполнялись работы по мобилизации строительной техники;
- выполнялись работы по разработке рабочей документации.
- завершены работы по мобилизации строительной техники;
- выполнялись работы по разработке рабочей документации.
- завершены работы по погружению, выбуриванию грунта, установке армокаркаса и бетонированию 4 буронабивных свай диаметром 620 мм для проведения альтернативных испытаний свай свайного поля здания пассажирского терминала;
- выполнялись работы по разработке рабочей документации.
- завершены работы по погружению 3 свай типа С130.35-9у свайного поля здания пассажирского терминала;
- завершены статические и динамические испытания 3 свай типа С130.35-9у свайного поля здания пассажирского терминала;
- выполнялись работы по разработке рабочей документации.
- выполнялись работы по погружению 19 свай свайного поля фундамента здания пассажирского терминала.
- выполнялись работы по погружению 367 свай свайного поля фундамента здания пассажирского терминала.
- выполнялись работы по срубке 53 голов свай фундамента здания пассажирского
терминала и подготовке песчаного основания к бетонированию плитного ростверка фундамента здания пассажирского терминала.
- выполнялись работы по срубке 417 голов свай фундамента здания пассажирского терминала и подготовке песчаного основания к бетонированию плитного ростверка фундамента здания пассажирского терминала;
- выполнялись работы по подбетонке и армированию плиты фундамента здания пассажирского терминала.
- выполнялись работы по срубке 431 головы свай фундамента здания пассажирского терминала и подготовке песчаного основания к бетонированию плитного ростверка фундамента здания пассажирского терминала;
- выполнялись работы по подбетонке и армированию плиты фундамента здания пассажирского терминала;
- выполнялись работы по бетонированию плиты фундамента здания пассажирского терминала в объеме 952 куб. м бетона.
- выполнялись работы по подбетонке и армированию плиты фундамента здания пассажирского терминала;
- выполнялись работы по бетонированию плиты фундамента здания пассажирского терминала в объеме 290 куб. м бетона;
- выполнялись работы по устройству монолитных стен и колонн в объеме 62 куб. м бетона;
- выполнялись работы по устройству ливневой канализации.
- выполнялись работы по бетонированию плиты фундамента здания пассажирского терминала в объеме 1,8 тыс. куб. м бетона;
- выполнялись работы по устройству монолитных стен и колонн в объеме 132 куб. м бетона;
- выполнялись работы по устройству ливневой канализации.
- завершены работы по бетонированию плиты фундамента здания пассажирского терминала в объеме 0,6 тыс. куб. м бетона. Всего выполнено работ по бетонированию плиты фундамента здания пассажирского терминала в объеме более 3,6 тыс. куб. м бетона;
- выполнялись работы по устройству монолитных стен и колонн в объеме 199 куб. м бетона;
- выполнялись работы по устройству плиты перекрытия здания пассажирского терминала в объеме 243 куб. м бетона;
- выполнялись работы по устройству ливневой канализации.
- выполнялись работы по устройству монолитных стен и колонн в объеме 146 куб. м бетона;
- работы по устройству плиты перекрытия здания пассажирского терминала приостановлены в соответствии с графиком проведения строительно-монтажных работ;
- выполнялись работы по устройству ливневой канализации.
- выполнялись работы по устройству монолитных стен и колонн в объеме 120,5 куб. м бетона;
- выполнялись работы по устройству плиты перекрытия здания пассажирского терминала в объеме 55,5 куб. м бетона;
- выполнялись работы по устройству ливневой канализации.
- выполнялись работы по устройству монолитных стен и колонн в объеме 218,3 куб. м бетона;
- выполнялись работы по устройству плиты перекрытия здания пассажирского терминала в объеме 340 куб. м бетона;
- выполнялись работы по устройству ливневой канализации;
- выполнялись работы по устройству кирпичных перегородок цокольного этажа здания пассажирского терминала в объеме 58,9 куб. м керамического кирпича;
- выполнялись работы по устройству утепления стен цоколя здания пассажирского терминала в объеме 96 кв. м экструдированного пенополистирола;
- выполнялись работы по устройству дренажа вокруг здания пассажирского терминала.
- выполнялись работы по устройству монолитных стен и колонн в объеме 201 куб. м бетона;
- выполнялись работы по устройству плиты перекрытия здания пассажирского терминала в объеме 396 куб. м бетона;
- выполнялись работы по устройству ливневой канализации;
- выполнялись работы по устройству кирпичных перегородок цокольного этажа здания пассажирского терминала в объеме 150 куб. м керамического кирпича;
- выполнялись работы по устройству утепления стен цоколя здания пассажирского терминала в объеме 50 кв. м экструдированного пенополистирола;
- выполнялись работы по устройству дренажа вокруг здания пассажирского терминала.
- выполнялись работы по устройству монолитных стен и колонн в объеме 125,2 куб. м бетона;
- выполнялись работы по устройству плиты перекрытия здания пассажирского терминала в объеме 200 куб. м бетона;
- выполнялись работы по устройству ливневой канализации;
- выполнялись работы по устройству кирпичных перегородок цокольного этажа здания пассажирского терминала в объеме 480 куб. м керамического кирпича;
- выполнялись работы по устройству утепления стен цоколя здания пассажирского терминала в объеме 100 кв. м экструдированного пенополистирола;
- выполнялись работы по устройству дренажа вокруг здания пассажирского терминала.
- выполнялись работы по устройству монолитных стен и колонн в объеме 55,5 куб. м бетона;
- выполнялись работы по устройству плиты перекрытия здания пассажирского терминала в объеме 466 куб. м бетона;
- выполнялись работы по устройству ливневой канализации;
- выполнялись работы по устройству кирпичных перегородок цокольного этажа здания пассажирского терминала в объеме 20 куб. м керамического кирпича;
- выполнялись работы по устройству утепления стен цоколя здания пассажирского терминала на площади 100 кв. м экструдированного пенополистирола;
- выполнялись работы по устройству наплавляемой гидроизоляции на кирпичной кладке цокольного этажа на площади 656 кв. м наплавленной гидроизоляции;
- завершены работы по устройству дренажа вокруг здания пассажирского терминала;
- выполнялись работы по устройству подсыпки песчаного основания в пирог пола цокольного этажа в объеме 300 куб. м песка.
- выполнялись работы по устройству монолитных стен и колонн в объеме 81 куб. м бетона;
- выполнялись работы по устройству плиты перекрытия здания пассажирского терминала в объеме 480,5 куб. м бетона;
- выполнялись работы по устройству лестниц здания пассажирского терминала в объеме 11 куб. м бетона;
- выполнялись работы по устройству ливневой канализации;
- выполнялись работы по устройству кирпичных перегородок цокольного этажа здания пассажирского терминала в объеме 11 куб. м керамического кирпича;
- работы по устройству утепления стен цоколя здания пассажирского терминала приостановлены в соответствии с графиком производства строительно-монтажных работ;
- выполнялись работы по устройству наплавляемой гидроизоляции на кирпичной кладке цокольного этажа на площади 150 кв. м наплавленной гидроизоляции;
- выполнялись работы по устройству подсыпки песчаного основания в пирог пола цокольного этажа в объеме 680 куб. м песка.
- выполнялись работы по устройству монолитных стен и колонн в объеме 140 куб. м бетона;
- выполнялись работы по устройству плиты перекрытия здания пассажирского терминала в объеме 184,5 куб. м бетона;
- работы по устройству лестниц здания пассажирского терминала приостановлены в соответствии с графиком производства строительно-монтажных работ;
- выполнялись работы по устройству ливневой канализации;
- выполнялись работы по устройству кирпичных перегородок цокольного этажа здания пассажирского терминала в объеме 32 куб. м керамического кирпича;
- работы по устройству наплавляемой гидроизоляции на кирпичной кладке цокольного этажа приостановлены в соответствии с графиком производства строительно-монтажных работ;
- выполнялись работы по устройству подсыпки песчаного основания в пирог пола цокольного этажа в объеме 120 куб. м песка.
- выполнялись работы по устройству монолитных стен и колонн в объеме 112 куб. м бетона;
- выполнялись работы по устройству плиты перекрытия здания пассажирского терминала в объеме 228,5 куб. м бетона;
- выполнялись работы по устройству лестниц здания пассажирского терминала в объеме 48,5 куб. м бетона;
- выполнялись работы по устройству ливневой канализации;
- выполнялись работы по устройству кирпичных перегородок цокольного этажа здания пассажирского терминала в объеме 8 куб. м керамического кирпича;
- выполнялись работы по устройству наплавляемой гидроизоляции на кирпичной кладке цокольного этажа на площади 50 кв. м;
- выполнялись работы по устройству подсыпки песчаного основания в пирог пола цокольного этажа в объеме 50 куб. м песка.
- выполнялись работы по устройству монолитных стен и колонн в объеме 49,5 куб. м бетона;
- выполнялись работы по устройству плиты перекрытия здания пассажирского терминала в объеме 451 куб. м бетона;
- работы по устройству лестниц здания пассажирского терминала приостановлены в соответствии с графиком производства строительно-монтажных работ;
- выполнялись работы по устройству ливневой канализации;
- работы по устройству кирпичных перегородок цокольного этажа здания пассажирского терминала приостановлены в соответствии с графиком производства строительно-монтажных работ;
- работы по устройству наплавляемой гидроизоляции на кирпичной кладке цокольного этажа приостановлены в соответствии с графиком производства строительно-монтажных работ;
- работы по устройству подсыпки песчаного основания в пирог пола цокольного этажа приостановлены в соответствии с графиком производства строительно-монтажных работ.
- выполнялись работы по устройству монолитных стен и колонн в объеме 50 куб. м бетона;
- выполнялись работы по устройству плиты перекрытия здания пассажирского терминала в объеме 216 куб. м бетона;
- выполнялись работы по устройству лестниц здания пассажирского терминала в объеме 6 куб. м бетона;
- выполнялись работы по устройству ливневой канализации.
- выполнялись работы по устройству монолитных стен и колонн в объеме 27,5 куб. м бетона;
- работы по устройству плиты перекрытия здания пассажирского терминала приостановлены в соответствии с графиком производства строительно-монтажных работ;
- выполнялись работы по устройству лестниц здания пассажирского терминала в объеме 18,4 куб. м бетона;
- выполнялись работы по устройству ливневой канализации;
- выполнялись работы по устройству пилонов здания пассажирского терминала высотой 22 м в объеме 22 куб. м бетона.
- работы по устройству монолитных стен и колонн приостановлены в соответствии с графиком производства строительно-монтажных работ;
- выполнялись работы по устройству плиты перекрытия здания пассажирского терминала в объеме 178,5 куб. м бетона;
- выполнялись работы по устройству лестниц здания пассажирского терминала в объеме 6,5 куб. м бетона;
- работы по устройству ливневой канализации приостановлены в соответствии с графиком производства строительно-монтажных работ.
- выполнялись работы по устройству монолитных стен и колонн здания пассажирского терминала в объеме 48 куб. м бетона;
- работы по устройству плиты перекрытия здания пассажирского терминала приостановлены в соответствии с графиком производства строительно-монтажных работ;
- выполнялись работы по устройству лестниц здания пассажирского терминала в объеме 16 куб. м бетона;
- выполнялись работы по устройству пилонов здания пассажирского терминала высотой 22 м в объеме 22 куб. м бетона.
- выполнялись работы по устройству монолитных стен и колонн здания пассажирского терминала в объеме 33,5 куб. м бетона;
- выполнялись работы по устройству плиты перекрытия здания пассажирского терминала в объеме 375 куб. м бетона;
- выполнялись работы по устройству лестниц здания пассажирского терминала в объеме 11,8 куб. м бетона;
- выполнялись работы по устройству пилонов здания пассажирского терминала высотой 22 м в объеме 22 куб. м бетона;
- выполнялись кладочные работы в зоне примыкания стен к потолку здания пассажирского терминала в объеме 2 куб. м;
- выполнялись работы по устройству ливневой канализации.
- выполнялись работы по устройству монолитных стен и колонн здания пассажирского терминала в объеме 46,5 куб. м бетона;
- работы по устройству плиты перекрытия здания пассажирского терминала приостановлены в соответствии с графиком производства строительно-монтажных работ;
- выполнялись работы по устройству лестниц здания пассажирского терминала в объеме 14,4 куб. м бетона;
- выполнялись работы по устройству пилонов здания пассажирского терминала высотой 22 м в объеме 14,4 куб. м бетона.
- кладочные работы в зоне примыкания стен к потолку здания пассажирского терминала приостановлены в соответствии с графиком производства строительно-монтажных работ;
- выполнялись работы по устройству ливневой канализации.
- работы по устройству монолитных стен и колонн здания пассажирского терминала приостановлены в соответствии с графиком производства строительно-монтажных работ;
- работы по устройству лестниц здания пассажирского терминала приостановлены в соответствии с графиком производства строительно-монтажных работ;
- работы по устройству пилонов здания пассажирского терминала высотой 22 м приостановлены в соответствии с графиком производства строительно-монтажных работ;
- выполнялись работы по устройству ливневой канализации.
- выполнялись работы по устройству ливневой канализации.
- работы по устройству ливневой канализации приостановлены подрядной организацией;
- выполнялись работы по армированию плиты перекрытия 3-го этажа здания пассажирского терминала.
- завершены работы по армированию плиты перекрытия 3-го этажа здания пассажирского терминала;
- на основании письма Северо-Западного бассейнового филиала ФГУП «Росморпорт» от 16.07.2025 № Ф1030-14/4428-ИС договор от 27.09.2022 № КУ-218/22 на выполнение работ по строительству здания пассажирского терминала, ливневой канализации, радиорелейной мачты и обеспечению транспортной безопасности на объекте «Строительство морской портовой инфраструктуры в морском порту Калининград. Международный морской терминал для приема круизных и грузопассажирских судов в г. Пионерский, Калининградской области» расторгнут 01.08.2025 в одностороннем порядке в связи с неисполнением подрядчиком своих обязательств.
- работы не выполнялись в связи с расторжением договора с подрядной организацией.
- завершены работы по бетонированию плиты перекрытия 3-го этажа здания пассажирского терминала в объеме 420 куб. м.
- выполнялись работы по разборке опалубки от бетонирования плиты перекрытия 3-го этажа здания пассажирского терминала.
- завершены работы по разборке опалубки от бетонирования плиты перекрытия 3-го этажа здания пассажирского терминала. Все работы по договору от 06.10.2025 № КУ-223/25 на выполнение работ по бетонированию плиты перекрытия здания пассажирского терминала выполнены в полном объеме;
- работы по остальным объектам не выполнялись в связи с расторжением договора с подрядной организацией в августе 2025 года.
Срок сдачи в эксплуатацию объектов: I квартал 2024 года
На территории базы обеспечивающего флота предусматривается строительство комплекса для термического уничтожения (обезвреживания) отходов в целях повышения уровня экологической безопасности морского порта и обеспечения охраны окружающей природной среды Лужской губы и прилегающих территорий Ленинградской области при функционировании морского порта Усть-Луга.
Строительство базы обеспечивающего флота осуществляется в два этапа:
1-й этап
а) строительство гидротехнических и прилегающих к ним сооружений на площадке № 1;
б) строительство береговых сооружений на площадке № 1.
2-й этап
строительство зданий и сооружений на площадке № 2.
На площадке № 1 предполагается строительство:
В рамках строительства гидротехнических и прилегающих к ним сооружений:
1) причала № 1, длиной 159 м, с отметкой дна у причала: - 10 м (БС);
2) причала № 2, длиной 105 м, с отметкой дна у причала: - 10 м (БС);
3) причала № 3, длиной 214 м, с отметкой дна у причала: -10 м (БС);
4) причала № 4, длиной 50 м, с отметкой дна у причала: -10 м (БС);
5) оградительного мола с причалом № 5 длиной 237,9 м, с отметкой дна: -10 м (БС);
6) причала № 6А длиной 341,3 м, с отметкой дна: -10 м (БС);
7) причал № 6Б длиной 164,85 м, с отметкой дна: -10 м (БС);
8) берегоукрепления, длиной 69,3 м, с отметкой кордона внешней стенки: +3 м (БС);
9) навигационного портового знака на южной оконечности оградительного мола: высотой 5 м;
10) площадки для мойки бонов, площадью 700 кв.м;
11) здания мареографа, предназначенного для обеспечения постоянного мониторинга уровня моря;
12) двух блочных комплектных трансформаторных подстанций (БКТП-1, БКТП-2);
13) сетей электроснабжения;
14) наружного освещения причальных сооружений;
15) сетей дождевой канализации.
В рамках строительства береговых сооружений:
1) здания служб капитана порта;
2) административно-бытового корпуса;
3) административного здания с конференц-залом;
4) караульного помещения;
5) гаража;
6) котельной с резервуарами дизельного топлива;
7) ремонтной мастерской;
8) противорадиационного укрытия;
9) хранилища средств морспецподразделения;
10) склада баллонов;
11) метеостанции;
12) очистных сооружений дождевых и нефтесодержащих сточных вод;
13) очистных сооружений бытовых сточных вод;
14) насосной станции пожаротушения с морским водозабором;
15) производственного здания с ДЭС;
16) мачты высотой 28 метров в качестве поста мониторинга разливов нефти;
17) мачты высотой 28 метров для размещения антенны УКВ радиосвязи;
18) насосной станции II подъема питьевого водоснабжения;
19) резервуаров запасов воды;
20) производственного здания очистных сооружений нефтесодержащих сточных вод;
21) насосной станции очистных сооружений нефтесодержащих сточных вод;
22) комплексной насосной станции перекачки нефтесодержащих сточных вод с судна-сборщика;
23) комплексной насосной станции перекачки нефтесодержащих сточных вод от обмыва бонов;
24) комплексной насосной станции бытовых стоков;
25) комплексной насосной станции дождевых стоков;
26) станции биологической очистки;
27) установки обезвоживания осадков;
28) наружных сетей связи и сигнализации;
29) наружных сетей водопровода и канализации;
30) сетей электроснабжения к береговым объектам и наружного освещения территории;
31) тепловых сетей.
Площадь территории в границах проектирования площадки № 1: 9,42 га.
Общая длина причального фронта: 1 105,8 м.
Планируемое количество судозаходов к причалам в месяц: 699 единиц.
На площадке № 2 планируется осуществить строительство:
1) санитарно-бытового корпуса;
2) площадки с навесом для разгрузки мусора;
3) площадки с навесом для иловых осадков;
4) расходного склада топлива при инсинераторе;
5) насосной станции производственно-противопожарного водоснабжения;
6) двух резервуаров запаса воды, емкостью по 270 кв.м каждый;
7) дезбарьера;
8) здания инсинератора, в котором размещается инсинераторная установка производительностью:
- по утилизации твердых отходов при калорийности 2 500 ккал/кг: до 500 кг/час;
- по утилизации жидких нефтешламов при калорийности 4 500-9 000 ккал/кг: до 500 кг/час;
- по суммарному объему утилизируемых отходов: 4 413,5 тонн/год;
9) локальных очистных сооружений дождевых и бытовых сточных вод;
10) наружных сетей связи и сигнализации;
11) наружных сетей водопровода и канализации;
12) наружных сетей электроснабжения и наружного освещения;
13) тепловых сетей.
Площадь территории в границах проектирования площадки № 2: 1,29 га.
ОАО «НПК «МорТрансНииПроект» (выполняет работы по проектированию в целях восстановления и завершения строительства объекта)
ООО «Геолайн» (разработка рабочей документации и строительство объекта) (в период с декабря 2023 по май 2025 года)
Государственный контракт от 19.12.2011 № 76-ГК/11
Дополнительное соглашение от 02.03.2012 № 1
Дополнительное соглашение от 27.08.2012 № 2
Полное развитие:
Государственный контракт от 14.12.2012 № 54-ГК/12 (Соглашением от 14.07.2017 государственный контракт от 14.12.2012 № 54-ГК/12 расторгнут)
Дополнительное соглашение от 29.08.2013 № 1
Дополнительное соглашение от 18.10.2013 № 2
Дополнительное соглашение от 18.11.2013 № 3
Дополнительное соглашение от 06.12.2013 № 4
Дополнительное соглашение от 21.05.2014 № 5
Дополнительное соглашение от 27.05.2014 № 6
Дополнительное соглашение от 25.07.2014 № 7
Дополнительное соглашение от 18.12.2014 № 8
Дополнительное соглашение от 28.12.2015 № 9
Дополнительное соглашение от 24.03.2015 № 10
Дополнительное соглашение от 10.08.2015 № 11
Дополнительное соглашение от 22.12.2015 № 12
Дополнительное соглашение от 17.08.2016 № 13
Договор от 21.12.2023 № 23-394ОКСиР (Уведомлением от 14.05.2025 № Ф1030-14/2964-ИС договор от 21.12.2023 № 23-394ОКСиР расторгнут в одностороннем порядке)
Проектирование в целях восстановления и завершения строительства объекта:
Договор от 20.08.2019 № 19-321ОКСИР/У
- завершены работы по устройству проездов на площадке, устройству строительного городка, проведено временное электроснабжение;
- завершены работы по погружению анкерного шпунта на причалах.
- выполнялись работы по погружению лицевого шпунта на причалах № 1, 2, 3, 4;
- выполнялись работы по погружению свай и монтажу анкерного пояса на причалах № 1, 3;
- выполнялись работы по устройству дренажной призмы.
- завершен монтаж анкерного пояса на причалах 1, 2, 3;
- выполнялись работы по устройству дренажной призмы.
- закончено устройство дренажной призмы на причалах № 1, 3, 4 и участке берегоукрепления от точки 3 до точки 2 (102,35 м);
- завершено погружение свай-оболочек на причалах № 1, 2, 3;
- смонтированы лицевой и анкерный распределительные пояса на причалах № 1, 2, 3;
- смонтированы анкерный распределительный пояс на причале № 4;
- осуществлялся монтаж анкерных тяг на причале № 1, 2, 3.
- закончен монтаж распределительных поясов;
- закончены работы по устройству водовыпуска на причале № 2.
- проводились работы по устройству верхнего строения причалов и берегоукрепления.
- проводились работы по погружению шпунта оградительного мола.
Площадка № 1:
- по причалу № 1 выполнялись работы по обустройству;
- по причалу № 2 выполнялись работы по обустройству;
- по причалу № 3 выполнялись работы по устройству верхнего строения и обустройству причала;
- по причалу № 4 выполнялись работы по устройству верхнего строения;
- по берегоукреплению: работы не проводились в соответствии с графиком производства строительных работ;
- по оградительному молу с причалом № 5 выполнялись работы по устройству свайного основания.
Площадка № 2:
- выполнялись подготовительные работы (разработка грунта, выторфовка).
Площадка № 1:
- по причалу № 1: работы не проводились в соответствии с графиком производства строительных работ;
- по причалу № 2: выполнялись работы по обустройству;
- по причалу № 3: выполнялись работы по обустройству;
- по причалу № 4: выполнялись работы по обустройству;
- по берегоукреплению: работы не проводились в соответствии с графиком производства строительных работ;
- по оградительному молу с причалом № 5: выполнялись работы по устройству свайного основания и верхнего строения;
- по мачте поста мониторинга розливов нефти: выполнялись работы по устройству фундамента объекта;
- по наружным сетям электроснабжения и наружного освещения: выполнялись работы по устройству фундамента осветительных мачт;
Площадка № 2:
- выполнялись подготовительные работы (разработка грунта, выторфовка).
Площадка № 1:
- по причалу № 1:
а) завершены работы по устройству верхнего строения;
б) выполнялись работы по обустройству;
- по причалу № 2: выполнялись работы по обустройству;
- по причалу № 3:
а) завершены работы по устройству верхнего строения;
б) выполнялись работы по обустройству;
- по причалу № 4:
а) завершены работы по устройству верхнего строения;
б) выполнялись работы по обустройству;
- по берегоукреплению: выполнялись работы по обустройству объекта;
- по оградительному молу с причалом № 5: выполнялись работы по устройству верхнего строения;
- по мачте поста мониторинга розливов нефти: работы не проводились в соответствии с графиком производства строительных работ;
- по наружным сетям электроснабжения и наружного освещения: работы не проводились в соответствии с графиком производства строительных работ;
- по площадке для мойки бонов: проводились работы по устройству площадки для строительства;
- по блочной комплексной трансформаторной подстанции БКТП-1: выполнялись земляные работы и работы по устройству фундамента.
Площадка № 2:
- выполнялись подготовительные работы (разработка грунта, выторфовка).
Площадка № 1:
- по причалу № 1: завершены работы по обустройству объекта;
- по причалу № 2: завершены работы по обустройству объекта;
- по причалу № 3: завершены работы по обустройству объекта;
- по причалу № 4: завершены работы по обустройству объекта;
- по берегоукреплению: завершены работы по обустройству, ввод в эксплуатацию объекта будет осуществлен по завершении строительства всех зданий и сооружений на площадках № 1 и № 2;
- по оградительному молу с причалом № 5:
а) выполнялись работы по устройству свайного основания;
б) выполнялись работы по устройству верхнего строения;
- по мачте поста мониторинга розливов нефти: работы не проводились в соответствии с графиком производства строительных работ;
- по наружным сетям электроснабжения и наружного освещения:
а) выполнялись земляные работы;
б) выполнялись работы по устройству фундаментов осветительных мачт;
в) выполнялись работы по устройству кабельной канализации;
- по площадке для мойки бонов: завершены работы по обустройству, ввод в эксплуатацию объекта будет осуществлен по завершении строительства всех зданий и сооружений на площадках № 1 и № 2.
- по блочной комплексной трансформаторной подстанции БКТП-1: работы не проводились в соответствии с графиком производства строительных работ;
- по блочной комплексной трансформаторной подстанции БКТП-2: выполнялись земляные работы и работы по устройству фундамента объекта;
- по хранилищу средств морспецподразделения: выполнялась земляные работы и работы по устройству фундамента объекта;
- по наружным сетям водопровода и канализации:
а) выполнялась земляные работы;
б) выполнялись работы по устройству производственной канализации, хозяйственно-бытовой и дождевой канализации;
- по наружным сетям связи и сигнализации:
а) выполнялась земляные работы;
б) выполнялись работы по устройству фундаментов осветительных мачт.
Площадка № 2:
- подготовительные работы приостановлены по требованию надзорных органов.
Площадка № 1:
- по причалам № 1, 2, 3, 4: работы не проводились в соответствии с графиком производства строительных работ;
- по оградительному молу с причалом № 5:
а) завершены работы по устройству свайного основания;
б) выполнялись работы по устройству верхнего строения;
- по мачте поста мониторинга розливов нефти: работы не проводились в соответствии с графиком производства строительных работ;
- по наружным сетям электроснабжения и наружного освещения:
а) выполнялись земляные работы;
б) выполнялись работы по устройству фундаментов осветительных мачт;
- по блочным комплексным трансформаторным подстанциям БКТП-1 и БКТП-2: работы не проводились в соответствии с графиком производства строительных работ;
- по хранилищу средств морспецподразделения:
а) завершены работы по устройству фундамента;
б) выполнялись работы по устройству пола;
- по наружным сетям водопровода и канализации:
а) выполнялась земляные работы;
б) выполнялись работы по устройству производственной канализации, хозяйственно-бытовой и дождевой канализации;
в) выполнялись работы по устройству хозяйственно-питьевого водопровода, противопожарного водопровода;
- по наружным сетям связи и сигнализации:
а) выполнялась земляные работы;
б) выполнялись работы по устройству и монтажу сетей;
- по мачте антенны УКВ радиосвязи: выполнялись работы по устройству фундамента объекта;
- по комплексной насосной станции перекачки нефтесодержащих сточных вод от обмыва бонов: завершены работы по устройству фундамента;
- по комплексной насосной станции дождевых стоков: завершены работы по устройству фундамента;
Площадка № 2:
- подготовительные работы не выполнялись по требованию надзорных органов.
Площадка № 1:
- по причалам № 1, 2, 3, 4: работы не проводились в соответствии с графиком производства строительных работ;
- по оградительному молу с причалом № 5: выполнялись работы по устройству верхнего строения;
- по мачте поста мониторинга розливов нефти: работы не проводились в соответствии с графиком производства строительных работ;
- по наружным сетям электроснабжения и наружного освещения: выполнялись работы по устройству фундаментов осветительных мачт;
- по блочным комплексным трансформаторным подстанциям БКТП-1 и БКТП-2: работы не проводились в соответствии с графиком производства строительных работ;
- по хранилищу средств морспецподразделения: выполнялись работы по устройству металлического каркаса объекта;
- по наружным сетям водопровода и канализации, а также наружным сетям связи и сигнализации: работы не проводились в соответствии с графиком производства строительных работ;
- по мачте антенны УКВ радиосвязи: работы не проводились в соответствии с графиком производства строительных работ;
- по бытовому корпусу: выполнялись земляные работы;
- по комплексной насосной станции перекачки нефтесодержащих сточных вод от обмыва бонов: работы не проводились в соответствии с графиком производства строительных работ;
- по комплексной насосной станции дождевых стоков: работы не проводились в соответствии с графиком производства строительных работ.
Площадка № 2:
- подготовительные работы не выполнялись по требованию надзорных органов.
Площадка № 1:
- по причалам № 1, 2, 3, 4: работы не проводились в соответствии с графиком производства строительных работ;
- по оградительному молу с причалом № 5:
а) завершены работы по устройству верхнего строения;
б) объект готов к вводу в эксплуатацию, которая будет осуществлена после завершения второго этапа работ по проекту;
- по мачте поста мониторинга разливов нефти: работы не проводились в соответствии с графиком производства строительных работ;
- по наружным сетям электроснабжения и наружного освещения: работы не проводились в соответствии с графиком производства строительных работ;
- по блочным комплексным трансформаторным подстанциям БКТП-1 и БКТП-2: работы не проводились в соответствии с графиком производства строительных работ;
- по хранилищу средств морспецподразделения: завершены работы по устройству металлического каркаса объекта;
- по наружным сетям водопровода и канализации, а также наружным сетям связи и сигнализации: работы не проводились в соответствии с графиком производства строительных работ;
- по мачте антенны УКВ радиосвязи: работы не проводились в соответствии с графиком производства строительных работ;
- по бытовому корпусу:
а) завершены земляные работы;
б) завершены работы по устройству фундамента;
в) завершены работы по устройству железобетонных колонн;
г) завершены работы по устройству стен технического подполья;
- по комплексной насосной станции перекачки нефтесодержащих сточных вод от обмыва бонов: работы не проводились в соответствии с графиком производства строительных работ;
- по комплексной насосной станции дождевых стоков: работы не проводились в соответствии с графиком производства строительных работ;
- по административному корпусу:
а) завершены земляные работы;
б) завершены работы по устройству фундамента;
- по ремонтной мастерской:
а) завершены земляные работы;
б) завершены работы по устройству фундамента;
- по зданию мареографа: завершены работы по устройству фундамента;
Площадка № 2:
- подготовительные работы не выполнялись по требованию надзорных органов.
- по причалам № 1, 2, 3, 4: работы не проводились в соответствии с графиком производства строительных работ;
- по мачте поста мониторинга разливов нефти: работы не проводились в соответствии с графиком производства строительных работ;
- по наружным сетям электроснабжения и наружного освещения: выполнялись работы по монтажу металлоконструкций осветительных мачт;
- по блочным комплексным трансформаторным подстанциям БКТП-1 и БКТП-2: работы не проводились в соответствии с графиком производства строительных работ;
- по хранилищу средств морспецподразделения: завершены работы по устройству наружных стен объекта;
- по наружным сетям водопровода и канализации: проводились работы по устройству противопожарного водопровода хранилища средств морспецподразделения;
- по наружным сетям связи и сигнализации: работы не проводились в соответствии с графиком производства строительных работ;
- по мачте антенны УКВ радиосвязи: выполнялись работы по установке мачты;
- по бытовому корпусу:
а) завершены работы по устройству монолитных стен 1 этажа;
б) завершены работы по устройству вводов инженерных сетей;
- по комплексной насосной станции перекачки нефтесодержащих сточных вод от обмыва бонов: выполнялись работы по приобретению и монтажу оборудования канализационной насосной станции;
- по комплексной насосной станции дождевых стоков: выполнялись работы по приобретению и монтажу канализационной насосной станции;
- по административному корпусу:
а) завершены работы по устройству железобетонных колонн;
б) завершены работы по устройству стен технического подполья;
в) завершены работы по устройству вводов инженерных сетей;
- по ремонтной мастерской: завершены работы по устройству фундаментных балок;
- по зданию мареографа: завершены работы по устройству стен;
- по караульному помещению: завершены работы по устройству фундамента;
- по гаражу: завершены работы по устройству фундамента;
- по очистным сооружениям дождевых и нефтесодержащих сточных вод: выполнялись работы по приобретению и монтажу оборудования.
Площадка № 2:
- подготовительные работы не выполнялись по требованию надзорных органов.
- по причалам № 1, 2, 3, 4: работы не проводились в соответствии с графиком производства строительных работ;
- по мачте поста мониторинга разливов нефти: работы не проводились в соответствии с графиком производства строительных работ;
- по наружным сетям электроснабжения и наружного освещения: работы не проводились в соответствии с графиком производства строительных работ;
- по блочным комплексным трансформаторным подстанциям БКТП-1 и БКТП-2: работы не проводились в соответствии с графиком производства строительных работ;
- по хранилищу средств морспецподразделения: завершены работы по устройству системы вентиляции и отопления;
- по наружным сетям водопровода и канализации: проводились работы по устройству хозяйственно-питьевого водопровода и дождевой канализации;
- по наружным сетям связи и сигнализации: работы не проводились в соответствии с графиком производства строительных работ;
- по мачте антенны УКВ радиосвязи: работы не проводились в соответствии с графиком производства строительных работ;
- по бытовому корпусу: завершены работы по устройству монолитных стен 2 этажа;
- по комплексной насосной станции перекачки нефтесодержащих сточных вод от обмыва бонов: работы не проводились в соответствии с графиком производства строительных работ;
- по комплексной насосной станции дождевых стоков: работы не проводились в соответствии с графиком производства строительных работ;
- по административному корпусу: завершены работы по устройству стен 1 этажа;
- по ремонтной мастерской: завершены работы по устройству фундаментных плит;
- по зданию мареографа: работы не проводились в соответствии с графиком производства строительных работ;
- по караульному помещению: работы не проводились в соответствии с графиком производства строительных работ;
- по гаражу: работы не проводились в соответствии с графиком производства строительных работ;
- по очистным сооружениям дождевых и нефтесодержащих сточных вод: выполнялись работы по приобретению и монтажу оборудования;
- по очистным сооружениям бытовых сточных вод: выкопан котлован, установлен армокаркас, вбит шпунт под резервуар усреднителя, начато бетонирование резервуара;
- по производственному зданию очистных сооружений нефтесодержащих сточных вод: завершены работы по устройству фундаментов;
- по насосной станции очистных сооружений нефтесодержащих сточных вод: завершены работы по устройству фундамента объекта;
- по комплексной насосной станции бытовых стоков: выполнялись работы по приобретению и монтажу оборудования канализационной насосной станции.
Площадка № 2:
- подготовительные работы не выполнялись по требованию надзорных органов.
- по причалам № 1, 2, 3, 4: работы не проводились в соответствии с графиком производства строительных работ;
- по мачте поста мониторинга разливов нефти: работы не проводились в соответствии с графиком производства строительных работ;
- по наружным сетям электроснабжения и наружного освещения:
а) выполнялся монтаж металлоконструкций осветительных мачт и электрооборудования для их подключения;
б) выполнялся монтаж электрооборудования на причалах № 2-5;
в) выполнялся монтаж электрооборудования для подключения к сетям электроснабжения: ремонтной мастерской, мачты поста мониторинга разливов нефти, комплексной насосной станции перекачки нефтесодержащих сточных вод, комплексной насосной станции дождевых стоков, хранилища средств морспецподразделения;
- по блочным комплексным трансформаторным подстанциям БКТП-1 и БКТП-2: работы не проводились в соответствии с графиком производства строительных работ;
- по хранилищу средств морспецподразделения:
а) завершены работы по устройству внутренних стен, кровли, пола, цоколя, пандуса, отмостки и противопожарного водопровода;
б) завершены работы по установке оконных блоков, технологического оборудования и подъемно-секционных ворот;
- по наружным сетям водопровода и канализации,:
а) выполнялись работы по устройству водоснабжения и водоотведения зоны сооружений ремонтная мастерская - склад баллонов;
- по наружным сетям связи и сигнализации: работы не проводились в соответствии с графиком производства строительных работ;
- по мачте антенны УКВ радиосвязи: работы не проводились в соответствии с графиком производства строительных работ;
- по бытовому корпусу:
а) выполнялись работу по устройству перекрытий;
- по комплексной насосной станции перекачки нефтесодержащих сточных вод от обмыва бонов:
а) выполнялись работы по установке технологического оборудования;
- по комплексной насосной станции дождевых стоков:
а) выполнялись работы по установке технологического оборудования;
- по административному корпусу:
а) выполнялись работы по устройству стен и перекрытий 2 и 3 этажа;
- по ремонтной мастерской:
а) завершено строительство фундамента здания;
б) выполнялись работы по устройству щебёночной подготовки под плиту пола;
в) выполнялись работы по армированию и бетонированию плиты;
г) завершены работы по выпуску канализационных сетей из здания;
- по зданию мареографа:
а) выполнялись работы по установке оконных блоков;
б) выполнялись работы по устройству пола, крыльца, отмостки и кровли;
в) выполнялись работы по внутренней и наружной отделке сооружения;
г) выполнялись работы по установке технологического оборудования;
- по караульному помещению: работы не проводились в соответствии с графиком производства строительных работ;
- по гаражу:
а) выполнялись работы по устройству стен;
- по очистным сооружениям дождевых и нефтесодержащих сточных вод:
а) выполнялись земляные работы;
б) выполнялись работы по устройству фундамента;
в) выполнялись работы по установке технологического оборудования;
- по очистным сооружениям бытовых сточных вод:
а) завершены работы по бетонированию фундаментной плиты под основное здание очистных сооружений и резервуара-усреднителя.
- по производственному зданию очистных сооружений нефтесодержащих сточных вод:
а) завершены работы по устройству фундаментов под оборудование;
- по насосной станции очистных сооружений нефтесодержащих сточных вод: работы не проводились в соответствии с графиком производства строительных работ;
- по комплексной насосной станции бытовых стоков:
а) выполнялись земляные работы;
б) выполнялись работы по устройству фундамента;
- по комплексной насосной станции перекачки нефтесодержащих сточных вод с судна-сборщика:
а) выполнялись земляные работы;
б) выполнялись работы по устройству фундамента;
в) выполнялись работы по установке оборудования;
- по производственному зданию:
а) завершены работы по устройству фундамента;
б) выполнялись работы по устройству наружных и внутренних стен;
- по станции биологической очистки:
а) выполнялись работы по устройству фундамента;
б) выполнялись работы по установке оборудования;
- по метеостанции:
а) завершены работы по установке ограждения площадки;
- по навигационному портовому знаку на южной оконечности оградительного мола:
а) завершены работы по установке знака;
б) завершены работы по установке оборудования;
в) ввод в эксплуатацию объекта будет осуществлен по завершении строительства всех зданий и сооружений на площадках № 1 и № 2;
- по котельной с резервуаром дизельного топлива:
а) выполнялись земляные работы;
б) выполнялись работы по устройству фундамента;
- по установке обезвоживания осадков:
а) выполнялись земляные работы;
б) выполнялись работы по устройству фундамента;
в) выполнялись работы по установке технологического оборудования;
Площадка № 2:
- выполнялась выторфовка территории в объеме более 3,7 тыс. м3.
- по причалам № 1, 2, 3, 4: работы не проводились в соответствии с графиком производства строительных работ;
- по мачте поста мониторинга разливов нефти: работы не проводились в соответствии с графиком производства строительных работ;
- по наружным сетям электроснабжения и наружного освещения: работы не проводились в соответствии с графиком производства строительных работ;
- по блочным комплексным трансформаторным подстанциям БКТП-1 и БКТП-2: работы не проводились в соответствии с графиком производства строительных работ;
- по хранилищу средств морспецподразделения: работы не проводились в соответствии с графиком производства строительных работ;
- по наружным сетям водопровода и канализации: работы не проводились в соответствии с графиком производства строительных работ;
- по наружным сетям связи и сигнализации: работы не проводились в соответствии с графиком производства строительных работ;
- по мачте антенны УКВ радиосвязи: работы не проводились в соответствии с графиком производства строительных работ;
- по бытовому корпусу: работы не проводились в соответствии с графиком производства строительных работ;
- по комплексной насосной станции перекачки нефтесодержащих сточных вод от обмыва бонов: работы не проводились в соответствии с графиком производства строительных работ;
- по комплексной насосной станции дождевых стоков: работы не проводились в соответствии с графиком производства строительных работ;
- по административному корпусу:
а) выполнялись работы по устройству лестничных пролетов;
- по ремонтной мастерской: работы не проводились в соответствии с графиком производства строительных работ;
- по зданию мареографа: работы не проводились в соответствии с графиком производства строительных работ;
- по караульному помещению:
а) выполнялись работы по устройству наружных стен;
- по гаражу:
а) выполнялись работы по устройству наружных стен и внутренних перегородок;
- по очистным сооружениям дождевых и нефтесодержащих сточных вод: работы не проводились в соответствии с графиком производства строительных работ;
- по очистным сооружениям бытовых сточных вод: работы не проводились в соответствии с графиком производства строительных работ;
- по производственному зданию очистных сооружений нефтесодержащих сточных вод:
а) выполнялись работы по установке железобетонных колонн;
- по насосной станции очистных сооружений нефтесодержащих сточных вод: работы не проводились в соответствии с графиком производства строительных работ;
- по комплексной насосной станции бытовых стоков: работы не проводились в соответствии с графиком производства строительных работ;
- по комплексной насосной станции перекачки нефтесодержащих сточных вод с судна-сборщика: работы не проводились в соответствии с графиком производства строительных работ;
- по производственному зданию: работы не проводились в соответствии с графиком производства строительных работ;
- по станции биологической очистки: работы не проводились в соответствии с графиком производства строительных работ;
- по метеостанции: работы не проводились в соответствии с графиком производства строительных работ;
- по котельной с резервуаром дизельного топлива: работы не проводились в соответствии с графиком производства строительных работ;
- по установке обезвоживания осадков: работы не проводились в соответствии с графиком производства строительных работ;
Площадка № 2:
- выполнялась выторфовка территории в объеме почти 6,3 тыс. м3.
- по причалам № 1, 2, 3, 4: работы не проводились в соответствии с графиком производства строительных работ;
- по мачте поста мониторинга разливов нефти: работы не проводились в соответствии с графиком производства строительных работ;
- по наружным сетям электроснабжения и наружного освещения: работы не проводились в соответствии с графиком производства строительных работ;
- по блочным комплексным трансформаторным подстанциям БКТП-1 и БКТП-2: работы не проводились в соответствии с графиком производства строительных работ;
- по хранилищу средств морспецподразделения: работы не проводились в соответствии с графиком производства строительных работ;
- по наружным сетям водопровода и канализации: работы не проводились в соответствии с графиком производства строительных работ;
- по наружным сетям связи и сигнализации: работы не проводились в соответствии с графиком производства строительных работ;
- по мачте антенны УКВ радиосвязи: работы не проводились в соответствии с графиком производства строительных работ;
- по бытовому корпусу:
а) выполнялись работы по устройству наружных стен;
- по комплексной насосной станции перекачки нефтесодержащих сточных вод от обмыва бонов: работы не проводились в соответствии с графиком производства строительных работ;
- по комплексной насосной станции дождевых стоков: работы не проводились в соответствии с графиком производства строительных работ;
- по административному корпусу:
а) выполнялись работы по устройству наружных стен;
- по ремонтной мастерской: работы не проводились в соответствии с графиком производства строительных работ;
- по зданию мареографа: работы не проводились в соответствии с графиком производства строительных работ;
- по караульному помещению:
а) выполнялись работы по устройству наружных стен;
- по гаражу:
а) выполнялись работы по устройству перекрытий;
- по очистным сооружениям дождевых и нефтесодержащих сточных вод: работы не проводились в соответствии с графиком производства строительных работ;
- по очистным сооружениям бытовых сточных вод: работы не проводились в соответствии с графиком производства строительных работ;
- по производственному зданию очистных сооружений нефтесодержащих сточных вод:
а) выполнялись работы по установке железобетонных колонн;
- по насосной станции очистных сооружений нефтесодержащих сточных вод: работы не проводились в соответствии с графиком производства строительных работ;
- по комплексной насосной станции бытовых стоков: работы не проводились в соответствии с графиком производства строительных работ;
- по комплексной насосной станции перекачки нефтесодержащих сточных вод с судна-сборщика: работы не проводились в соответствии с графиком производства строительных работ;
- по производственному зданию: работы не проводились в соответствии с графиком производства строительных работ;
- по станции биологической очистки: работы не проводились в соответствии с графиком производства строительных работ;
- по метеостанции: работы не проводились в соответствии с графиком производства строительных работ;
- по котельной с резервуаром дизельного топлива: работы не проводились в соответствии с графиком производства строительных работ;
- по установке обезвоживания осадков: работы не проводились в соответствии с графиком производства строительных работ;
Площадка № 2:
а) завершены работы по выторфовке грунта суммарным объемом 10 тыс. м3.
- работы приостановлены в связи с отсутствием финансирования.
Площадка № 2:
- работы приостановлены в связи с отсутствием финансирования.
Площадка № 1:
- по причалам № 1, 2, 3, 4:
а) выполнялись работы по прокладке инженерных сетей в прикордонной зоне причалов № 1-3;
- по мачте поста мониторинга разливов нефти:
а) изготовлено 4 сваи-оболочки для фундамента мачты;
- по наружным сетям электроснабжения и наружного освещения:
а) завершены работы по устройству фундаментов осветительных мачт;
б) выполнялись работы по прокладке кабелей электроснабжения в северной зоне;
- по блочным комплексным трансформаторным подстанциям БКТП-1 и БКТП-2:
а) завершены работы по бетонированию фундаментной плиты;
- по хранилищу средств морспецподразделения:
а) завершены работы по бетонированию фундаментной плиты;
б) завершены работы по установке колонн металлокаркаса здания;
в) завершен монтаж стеновых сэндвич-панелей;
г) завершен монтаж противопожарного трубопровода и воздуховодов;
д) завершены работы по кладке стен встройки;
е) завершены работы по устройству кровли встройки;
ж) завершены работы по устройству отмосток, пандусов и крыльца;
з) завершен монтаж окон, дверей и ворот;
- по наружным сетям водопровода и канализации: работы не проводились в соответствии с графиком производства строительных работ;
- по наружным сетям связи и сигнализации: работы не проводились в соответствии с графиком производства строительных работ;
- по мачте высотой 28 метров для размещения антенны УКВ связи:
а) завершены работы по бетонированию фундамента;
б) завершены работы по установке мачты;
- по бытовому корпусу:
а) завершены работы по устройству железобетонного каркаса;
б) завершены работы по кладке наружных стен;
в) завершены работы по устройству кровли;
- по комплексной насосной станции перекачки нефтесодержащих сточных вод от обмыва бонов: работы не проводились в соответствии с графиком производства строительных работ;
- по комплексной насосной станции дождевых стоков: работы не проводились в соответствии с графиком производства строительных работ;
- по административному корпусу:
а) завершены работы по монтажу железобетонного каркаса;
б) завершены работы по кладке наружных стен из газобетона;
в) завершены работы по монтажу межэтажных лестниц;
г) завершены работы по строительству фундамента и пандуса крыльца;
- по ремонтной мастерской:
а) завершены работы по бетонированию плиты пола;
- по зданию мареографа: работы не проводились в соответствии с графиком производства строительных работ;
- по караульному помещению:
а) завершены работы по устройству наружных стен;
б) завершены работы по устройству кровли;
в) завершены работы по укреплению и облицовке наружных стен;
- по гаражу:
а) завершены работы по устройству фундаментов;
б) завершены работы по бетонированию плиты пола в гаражной части объекта;
в) завершены работы по монтажу железобетонной колонны;
г) завершены работы по монтажу фермы;
д) завершены работы по монтажу металлоконструкций в осях 5-15;
е) завершены работы по монтажу плит перекрытия 1-го этажа;
ж) завершены работы по устройству монолитных участков перекрытия;
з) выполнялись работы по кладке стен 2-го этажа;
- по очистным сооружениям дождевых и нефтесодержащих сточных вод:
а) завершены работы по засыпке пазух фундамента;
б) завершены работы по бетонированию канализационных лотков, фундаментов под перегородки внутри здания;
в) завершены работы по выпуску из объекта сетей бытовой канализации;
г) завершены работы по установке железобетонной колонны;
д) завершены работы по песчаной и щебеночной подготовке под полы;
е) выполнено бетонирование плиты пола в осях А-Б/1-6;
- по очистным сооружениям бытовых сточных вод:
а) завершены работы по бетонированию фундаментной плиты;
б) завершены работы по гидроизоляции внутренней поверхности стен резервуаров сооружения;
в) завершены работы по монтажу блочно-модульных корпусов производственного здания очистных и цеха механического обезвоживания осадков на фундаментные плиты;
- по производственному зданию очистных сооружений нефтесодержащих сточных вод:
а) завершены работы по монтажу металлокаркаса сооружения;
б) завершены работы по монтажу кровли здания;
в) выполнялись работы по монтажу оборудования;
- по насосной станции очистных сооружений нефтесодержащих сточных вод:
а) завершены работы по выпуску из здания сетей производственной канализации;
б) завершены работы по песчаной и щебеночной подготовке под полы и фундаменты перегородок и последующему бетонированию плиты пола;
- по комплексной насосной станции бытовых стоков: работы не проводились в соответствии с графиком производства строительных работ;
- по комплексной насосной станции перекачки нефтесодержащих сточных вод с судна-сборщика: работы не проводились в соответствии с графиком производства строительных работ;
- по производственному зданию:
а) завершены работы по бетонированию и утеплению фундаментной плиты;
- по станции биологической очистки: работы не проводились в соответствии с графиком производства строительных работ;
- по метеостанции:
а) осуществлялась поставка технологического оборудования;
- по котельной с резервуаром дизельного топлива:
а) завершены работы по бетонированию фундаментов под дымовые трубы, плиты под здание котельной, под железобетонной емкостью под топливо;
б) завершены работы по монтажу металлокаркаса здания котельной;
в) выполнялась поставка основного оборудования котельной;
- по установке обезвоживания осадков: работы не проводились в соответствии с графиком производства строительных работ;
- по зданию столовой:
а) завершены работы по устройству фундамента и обратной засыпке;
- по противорадиационному укрытию:
а) завершены работы по песчаной и бетонной подготовке под фундаментную плиту;
Площадка № 2:
- работы не проводились в соответствии с графиком производства строительных работ;
- по причалам № 1, 2, 3, 4:
а) выполнялись работы по прокладке инженерных сетей в прикордонной зоне причалов № 1-3;
- по мачте поста мониторинга разливов нефти:
а) изготовлено 4 сваи-оболочки для фундамента мачты;
- по наружным сетям электроснабжения и наружного освещения: работы не проводились в соответствии с графиком производства строительных работ;
- по блочным комплексным трансформаторным подстанциям БКТП-1 и БКТП-2: работы не проводились в соответствии с графиком производства строительных работ;
- по хранилищу средств морспецподразделения: работы не проводились в соответствии с графиком производства строительных работ;
- по наружным сетям водопровода и канализации: работы не проводились в соответствии с графиком производства строительных работ;
- по наружным сетям связи и сигнализации: работы не проводились в соответствии с графиком производства строительных работ;
- по мачте высотой 28 метров для размещения антенны УКВ связи: работы не проводились в соответствии с графиком производства строительных работ;
- по бытовому корпусу:
а) завершены работы по формированию стяжки под полы;
б) выполнялись работы по оштукатуриванию стен;
- по комплексной насосной станции перекачки нефтесодержащих сточных вод от обмыва бонов: работы не проводились в соответствии с графиком производства строительных работ;
- по комплексной насосной станции дождевых стоков: работы не проводились в соответствии с графиком производства строительных работ;
- по административному корпусу:
а) завершены работы по устройству входов в техническое подполье;
б) завершены работы по утеплению стен технического подполья;
- по ремонтной мастерской: работы не проводились в соответствии с графиком производства строительных работ;
- по зданию мареографа: работы не проводились в соответствии с графиком производства строительных работ;
- по караульному помещению:
а) завершены работы по бетонированию плиты пола;
б) завершены работы по установке окон и дверей в здании;
в) завершены работы по монтажу внутренних перегородок;
- по гаражу:
а) выполнялись работы по кладке кирпичных стен 2-го этажа;
- по очистным сооружениям дождевых и нефтесодержащих сточных вод: работы не проводились в соответствии с графиком производства строительных работ;
- по очистным сооружениям бытовых сточных вод: работы не проводились в соответствии с графиком производства строительных работ;
- по производственному зданию очистных сооружений нефтесодержащих сточных вод:
а) завершены работы по монтажу внутренних кирпичных перегородок в здании;
б) завершены работы по утеплению цокольного этажа здания;
- по насосной станции очистных сооружений нефтесодержащих сточных вод:
а) выполнялись работы по кладке наружных стен;
- по комплексной насосной станции бытовых стоков: работы не проводились в соответствии с графиком производства строительных работ;
- по комплексной насосной станции перекачки нефтесодержащих сточных вод с судна-сборщика: работы не проводились в соответствии с графиком производства строительных работ;
- по производственному зданию:
а) выполнялись отделочные работы;
б) выполнялись работы по монтажу оборудования;
в) выполнялись работы по монтажу кровли;
- по станции биологической очистки: работы не проводились в соответствии с графиком производства строительных работ;
- по метеостанции: работы не проводились в соответствии с графиком производства строительных работ;
- по котельной с резервуаром дизельного топлива:
а) осуществлялась поставка оборудования для котельной;
- по установке обезвоживания осадков: работы не проводились в соответствии с графиком производства строительных работ;
- по зданию столовой: работы не проводились в соответствии с графиком производства строительных работ;
- по противорадиационному укрытию:
а) завершены работы по бетонированию фундаментной платы и монтажу железобетонных плит покрытия;
Площадка № 2:
- работы не проводились в соответствии с графиком производства строительных работ;
- по причалам № 1, 2, 3, 4: работы не проводились в соответствии с графиком производства строительных работ;
- по мачте поста мониторинга разливов нефти: работы не проводились в соответствии с графиком производства строительных работ;
- по наружным сетям электроснабжения и наружного освещения: работы не проводились в соответствии с графиком производства строительных работ;
- по блочным комплексным трансформаторным подстанциям БКТП-1 и БКТП-2:
а) завершены работы по монтажу блок-модулей БКТП;
- по хранилищу средств морспецподразделения: работы не проводились в соответствии с графиком производства строительных работ;
- по наружным сетям водопровода и канализации: работы не проводились в соответствии с графиком производства строительных работ;
- по наружным сетям связи и сигнализации: работы не проводились в соответствии с графиком производства строительных работ;
- по мачте высотой 28 метров для размещения антенны УКВ связи: работы не проводились в соответствии с графиком производства строительных работ;
- по бытовому корпусу:
а) завершены работы по монтажу окон в здании;
б) завершены работы по бетонированию стяжки пола в здании;
- по комплексной насосной станции перекачки нефтесодержащих сточных вод от обмыва бонов: работы не проводились в соответствии с графиком производства строительных работ;
- по комплексной насосной станции дождевых стоков: работы не проводились в соответствии с графиком производства строительных работ;
- по административному корпусу:
а) завершены работы по устройству кровли;
б) завершены работы по монтажу окон и остекленных перегородок;
в) завершены работы по устройству вентилируемых фасадов здания;
г) завершены работы по монтажу внутренних перегородок;
д) завершены работы по устройству пола в техническом подполье;
- по ремонтной мастерской:
а) выполнялись работы по поставке элементов металлокаркаса здания.
- по зданию мареографа: работы не проводились в соответствии с графиком производства строительных работ;
- по караульному помещению:
а) завершены работы по устройству стяжки под чистовые полы;
- по гаражу:
а) завершены работы по кладке наружных стен;
б) завершены работы по монтажу железобетонных перекрытий 1 и 2 этажей;
- по очистным сооружениям дождевых и нефтесодержащих сточных вод: работы не проводились в соответствии с графиком производства строительных работ;
- по очистным сооружениям бытовых сточных вод: работы не проводились в соответствии с графиком производства строительных работ;
- по производственному зданию очистных сооружений нефтесодержащих сточных вод:
а) завершены работы по окраске металлоконструкций;
- по насосной станции очистных сооружений нефтесодержащих сточных вод:
а) завершены работы по кладке наружных стен;
- по комплексной насосной станции бытовых стоков: работы не проводились в соответствии с графиком производства строительных работ;
- по комплексной насосной станции перекачки нефтесодержащих сточных вод с судна-сборщика: работы не проводились в соответствии с графиком производства строительных работ;
- по производственному зданию: работы не проводились в соответствии с графиком производства строительных работ;
- по станции биологической очистки: работы не проводились в соответствии с графиком производства строительных работ;
- по метеостанции: работы не проводились в соответствии с графиком производства строительных работ;
- по котельной с резервуаром дизельного топлива: работы не проводились в соответствии с графиком производства строительных работ;
- по установке обезвоживания осадков: работы не проводились в соответствии с графиком производства строительных работ;
- по зданию столовой: работы не проводились в соответствии с графиком производства строительных работ;
- по противорадиационному укрытию:
а) завершены работы по устройству вентиляционных шахт;
б) завершены работы по гидроизоляции наружных стен и покрытия;
в) завершены работы по устройству покрытия входов;
Площадка № 2:
- работы не проводились в соответствии с графиком производства строительных работ;
- по причалам № 1, 2, 3, 4: работы не проводились в соответствии с графиком производства строительных работ;
- по мачте поста мониторинга разливов нефти:
а) завершены работы по погружению 4 свай-оболочек;
б) установлены армокаркасы фундамента объекта;
в) установлена опалубка для бетонирования фундамента;
- по наружным сетям электроснабжения и наружного освещения: работы не проводились в соответствии с графиком производства строительных работ;
- по блочным комплексным трансформаторным подстанциям БКТП-1 и БКТП-2:
а) выполнялись электромонтажные работы;
- по хранилищу средств морспецподразделения: работы не проводились в соответствии с графиком производства строительных работ;
- по наружным сетям водопровода и канализации: работы не проводились в соответствии с графиком производства строительных работ;
- по наружным сетям связи и сигнализации: работы не проводились в соответствии с графиком производства строительных работ;
- по мачте высотой 28 метров для размещения антенны УКВ связи: работы не проводились в соответствии с графиком производства строительных работ;
- по бытовому корпусу:
а) выполнялись работы по устройству крылец;
- по комплексной насосной станции перекачки нефтесодержащих сточных вод от обмыва бонов: работы не проводились в соответствии с графиком производства строительных работ;
- по комплексной насосной станции дождевых стоков: работы не проводились в соответствии с графиком производства строительных работ;
- по административному корпусу:
а) выполнялись работы по прокладке кабелей системы связи и сигнализации, электрокабелей освещения;
б) выполнялись внутренние отделочные работы;
- по ремонтной мастерской:
а) выполнялись работы по устройству фундаментов перегородок и монтажу колонн металлокаркаса.
- по зданию мареографа: работы не проводились в соответствии с графиком производства строительных работ;
- по караульному помещению:
а) выполнялись внутренние отделочные работы;
- по гаражу:
а) выполнялись работы по монтажу окон и наружных дверей;
- по очистным сооружениям дождевых и нефтесодержащих сточных вод: работы не проводились в соответствии с графиком производства строительных работ;
- по очистным сооружениям бытовых сточных вод: работы не проводились в соответствии с графиком производства строительных работ;
- по производственному зданию очистных сооружений нефтесодержащих сточных вод:
а) выполнялись работы по монтажу окон в здании;
- по насосной станции очистных сооружений нефтесодержащих сточных вод:
а) выполнялись работы по кладке внутренних перегородок в здании;
- по комплексной насосной станции бытовых стоков: работы не проводились в соответствии с графиком производства строительных работ;
- по комплексной насосной станции перекачки нефтесодержащих сточных вод с судна-сборщика: работы не проводились в соответствии с графиком производства строительных работ;
- по производственному зданию: работы не проводились в соответствии с графиком производства строительных работ;
- по станции биологической очистки: работы не проводились в соответствии с графиком производства строительных работ;
- по метеостанции: работы не проводились в соответствии с графиком производства строительных работ;
- по котельной с резервуаром дизельного топлива:
а) завершены работы по монтажу лотков для прокладки электрокабелей;
б) выполнялись работы по прокладке электрокабелей и установке светильников;
- по установке обезвоживания осадков: работы не проводились в соответствии с графиком производства строительных работ;
- по зданию столовой:
а) завершены работы по установке цокольных блоков;
б) завершены работы по щебеночной подготовке под плиту пола;
в) завершены работы по армированию приямков для ввода инженерных сетей и каналов для ввода кабелей электроснабжения и сигнализации;
- по противорадиационному укрытию:
а) завершены работы по обваловке сооружения грунтом и отсыпке растительного слоя;
б) завершены работы по установке лестниц на входе объект;
Площадка № 2:
- работы не проводились в соответствии с графиком производства строительных работ.
- по причалам № 1, 2, 3, 4:
а) выполнялись работы по прокладке инженерных сетей в прикордонной зоне причалов №№1-3.
- по мачте поста мониторинга разливов нефти:
а) завершено устройство фундамента мачты.
- по наружным сетям электроснабжения и наружного освещения:
а) завершена установка 9 мачт наружного освещения.
- по блочным комплексным трансформаторным подстанциям БКТП-1 и БКТП-2:
а) выполнялись работы по разводке электрического кабеля.
- по хранилищу средств морспецподразделения:
а) выполнялись электромонтажные и наружные отделочные работы.
- по наружным сетям водопровода и канализации: работы не проводились в соответствии с графиком производства строительных работ.
- по наружным сетям связи и сигнализации: работы не проводились в соответствии с графиком производства строительных работ.
- по мачте высотой 28 метров для размещения антенны УКВ связи: работы не проводились в соответствии с графиком производства строительных работ.
- по бытовому корпусу:
а) завершены работы по устройству внутренних перегородок.
- по комплексной насосной станции перекачки нефтесодержащих сточных вод от обмыва бонов: работы не проводились в соответствии с графиком производства строительных работ.
- по комплексной насосной станции дождевых стоков: работы не проводились в соответствии с графиком производства строительных работ.
- по административному корпусу:
а) выполнялись работы монтажу противопожарного трубопровода, трубопроводов и радиаторов системы отопления здания.
- по ремонтной мастерской:
а) завершены работы по подготовке фундаментов для установки перегородок.
- по зданию мареографа:
а) выполнялись электромонтажные работы и по внутренней отделке здания.
- по караульному помещению:
а) выполнялись работы по прокладке кабелей системы связи и сигнализации, а также электрокабелей;
б) выполнялся монтаж воздуховодов системы вентиляции.
- по гаражу:
а) выполнялись работы по бетонированию плиты пола.
б) выполнялся монтаж окон и наружных дверей.
- по очистным сооружениям дождевых и нефтесодержащих сточных вод работы не проводились в соответствии с графиком производства строительных работ.
- по очистным сооружениям бытовых сточных вод работы не проводились в соответствии с графиком производства строительных работ.
- по производственному зданию очистных сооружений нефтесодержащих сточных вод работы не проводились в соответствии с графиком производства строительных работ.
- по насосной станции очистных сооружений нефтесодержащих сточных вод:
а) выполнялись работы по монтажу железобетонных плит перекрытия;
б) выполнялись работы по устройству кровли здания;
в) выполнялись внутренние отделочные работы.
- по комплексной насосной станции бытовых стоков: работы не проводились в соответствии с графиком производства строительных работ.
- по комплексной насосной станции перекачки нефтесодержащих сточных вод с судна-сборщика: работы не проводились в соответствии с графиком производства строительных работ.
- по производственному зданию:
а) выполнялись электромонтажные работы.
- по станции биологической очистки: работы не проводились в соответствии с графиком производства строительных работ.
- по метеостанции работы не производились в соответствии с графиком производства строительных работ.
- по котельной с резервуаром дизельного топлива:
а) окрашены противопожарным составом стальные колонны корпуса;
б) завершены работы по монтажу электрокабелей и осветительного оборудования;
в) завершены работы по установке наружных дверей;
г) завершены работы по монтажу контура заземления внутри здания.
- по установке обезвоживания осадков: работы не проводились в соответствии с графиком производства строительных работ.
- по зданию столовой:
а) выполнялись работы по устройству фундаментов для установки внутренних перегородок.
- по противорадиационному укрытию:
а) выполнялись внутренние отделочные работы.
Площадка № 2:
- работы не проводились в соответствии с графиком производства строительных работ.
- по причалам № 1, 2, 3, 4:
а) завершены работы по прокладке инженерных сетей в прикордонной зоне причалов №№ 1-3.
- по мачте поста мониторинга разливов нефти: работы не проводились в соответствии с графиком производства строительных работ.
- по наружным сетям электроснабжения и наружного освещения:
а) выполнялись подготовительные работы для монтажа 3 мачт наружного освещения.
- по блочным комплексным трансформаторным подстанциям БКТП-1 и БКТП-2:
а) завершены работы по разводке силового электрического кабеля.
- по хранилищу средств морспецподразделения:
а) выполнялись электромонтажные работы;
б) выполнялись наружные отделочные работы.
- по наружным сетям водопровода и канализации: работы не проводились в соответствии с графиком производства строительных работ.
- по наружным сетям связи и сигнализации: работы не проводились в соответствии с графиком производства строительных работ.
- по мачте высотой 28 метров для размещения антенны УКВ связи: работы не проводились в соответствии с графиком производства строительных работ.
- по бытовому корпусу:
а) выполнялись работы по устройству крылец входов в здание.
- по комплексной насосной станции перекачки нефтесодержащих сточных вод от обмыва бонов: работы не проводились в соответствии с графиком производства строительных работ.
- по комплексной насосной станции дождевых стоков: работы не проводились в соответствии с графиком производства строительных работ.
- по административному корпусу:
а) выполнялись работы по монтажу воздуховодов системы вентиляции.
- по ремонтной мастерской:
а) выполнялись работы по монтажу металлоконструкций;
б) выполнялись электромонтажные работы.
- по зданию мареографа:
а) выполнялись электромонтажные работы;
б) выполнялись работы по внутренней отделке.
- по караульному помещению:
а) выполнялись электромонтажные работы.
- по гаражу:
а) выполнялись работы по установке каркаса ворот;
б) выполнялись электромонтажные работы.
- по очистным сооружениям дождевых и нефтесодержащих сточных вод: работы не проводились в соответствии с графиком производства строительных работ.
- по очистным сооружениям бытовых сточных вод: работы не проводились в соответствии с графиком производства строительных работ.
- по производственному зданию очистных сооружений нефтесодержащих сточных вод:
а) выполнялись отделочные работы;
б) выполнялись работы по монтажу оборудования;
в) выполнялись электромонтажные работы.
- по насосной станции очистных сооружений нефтесодержащих сточных вод:
а) завершены работы по устройству кровли;
б) завершены работы по установке окон;
в) выполнялись внутренние отделочные работы;
г) выполнялись работы по утеплению и облицовке наружных стен здания.
- по комплексной насосной станции бытовых стоков: работы не проводились в соответствии с графиком производства строительных работ.
- по комплексной насосной станции перекачки нефтесодержащих сточных вод с судна-сборщика: работы не проводились в соответствии с графиком производства строительных работ.
- по производственному зданию:
а) выполнялись работы по устройству контура заземления.
- по станции биологической очистки: работы не проводились в соответствии с графиком производства строительных работ.
- по метеостанции: работы не проводились в соответствии с графиком производства строительных работ.
- по котельной с резервуаром дизельного топлива:
а) выполнялись работы по прокладке кабелей освещения и монтажу светового оборудования.
- по установке обезвоживания осадков: работы не проводились в соответствии с графиком производства строительных работ.
- по зданию столовой:
а) завершены работы по устройству фундаментов для установки перегородок;
б) завершены работы по устройству приямок для инженерных сетей и каналов кабелей электроснабжения и сигнализации;
в) выполнялись работы по устройству металлокаркаса здания.
- по противорадиационному укрытию:
а) выполнялись электромонтажные работы;
б) выполнялись работы по прокладке сетей сигнализации и связи;
в) выполнялись работы по монтажу системы вентиляции.
Площадка № 2:
- работы не проводились в соответствии с графиком производства строительных работ.
- по причалам № 1, 2, 3, 4:
а) завершены работы по прокладке инженерных сетей в северной зоне причалов.
- по мачте поста мониторинга разливов нефти: работы не проводились в соответствии с графиком производства строительных работ.
- по наружным сетям электроснабжения и наружного освещения:
а) установлены две мачты наружного освещения.
- по блочным комплексным трансформаторным подстанциям БКТП-1 и БКТП-2: работы не проводились в соответствии с графиком производства строительных работ.
- по хранилищу средств морспецподразделения:
а) выполнялись электромонтажные работы;
б) выполнялись наружные отделочные работы.
- по наружным сетям водопровода и канализации: работы не проводились в соответствии с графиком производства строительных работ.
- по наружным сетям связи и сигнализации: работы не проводились в соответствии с графиком производства строительных работ.
- по мачте высотой 28 метров для размещения антенны УКВ связи: работы не проводились в соответствии с графиком производства строительных работ.
- по бытовому корпусу:
а) выполнялись внутренние отделочные работы.
- по комплексной насосной станции перекачки нефтесодержащих сточных вод от обмыва бонов: работы не проводились в соответствии с графиком производства строительных работ.
- по комплексной насосной станции дождевых стоков: работы не проводились в соответствии с графиком производства строительных работ.
- по административному корпусу:
а) выполнялись работы по монтажу труб системы канализации.
- по ремонтной мастерской:
а) выполнялись работы по монтажу стеновых панелей.
- по зданию мареографа: работы не проводились в соответствии с графиком производства строительных работ.
- по караульному помещению:
а) завершены работы по установке контура заземления.
- по гаражу:
а) завершены работы по установке наружных стен в административной части;
б) завершены работы по бетонированию плиты пола в гаражной части;
в) завершены работы по установке металлокаркаса;
г) завершены работы по монтажу кровли.
- по очистным сооружениям дождевых и нефтесодержащих сточных вод: работы не проводились в соответствии с графиком производства строительных работ.
- по очистным сооружениям бытовых сточных вод: работы не проводились в соответствии с графиком производства строительных работ.
- по производственному зданию очистных сооружений нефтесодержащих сточных вод:
а) выполнялись работы по монтажу технологического оборудования.
- по насосной станции очистных сооружений нефтесодержащих сточных вод:
а) завершены работы по утеплению наружных стен.
- по комплексной насосной станции бытовых стоков: работы не проводились в соответствии с графиком производства строительных работ.
- по комплексной насосной станции перекачки нефтесодержащих сточных вод с судна-сборщика: работы не проводились в соответствии с графиком производства строительных работ.
- по производственному зданию:
а) завершены работы по формированию контура заземления.
- по станции биологической очистки: работы не проводились в соответствии с графиком производства строительных работ.
- по метеостанции: работы не проводились в соответствии с графиком производства строительных работ.
- по котельной с резервуаром дизельного топлива:
а) выполнялся монтаж внутренних технологических трубопроводов и оборудования.
- по установке обезвоживания осадков: работы не проводились в соответствии с графиком производства строительных работ.
- по зданию столовой:
а) завершены работы по устройству металлокаркаса здания;
б) завершены работы по обустройству кровли здания.
- по противорадиационному укрытию:
а) выполнялись электромонтажные работы;
б) выполнялись работы по прокладке сетей сигнализации и связи;
в) выполнялись работы по монтажу системы вентиляции.
Площадка № 2:
- работы не проводились в соответствии с графиком производства строительных работ.
- по причалам № 1, 2, 3, 4:
а) выполнялась укладка трубопроводов дождевой канализации;
б) выполнялась укладка трубопроводов хозяйственно-бытовой канализации;
в) завершена укладка трубопроводов хозяйственно-питьевой канализации;
г) завершена укладка трубопроводов противопожарного водопровода;
д) завершена укладка труб производственной канализации нефтесодержащих сточных вод.
- по мачте поста мониторинга разливов нефти:
а) выполнялись работы по заливке бетонного фундамента.
- по наружным сетям электроснабжения и наружного освещения: работы не проводились в соответствии с графиком производства строительных работ.
- по блочным комплексным трансформаторным подстанциям БКТП-1 и БКТП-2: работы не проводились в соответствии с графиком производства строительных работ.
- по хранилищу средств морспецподразделения: работы не проводились в соответствии с графиком производства строительных работ.
- по наружным сетям водопровода и канализации:
а) выполнялись работы по прокладке сетей;
- по наружным сетям связи и сигнализации: работы не проводились в соответствии с графиком производства строительных работ.
- по мачте высотой 28 метров для размещения антенны УКВ связи: работы не проводились в соответствии с графиком производства строительных работ.
- по бытовому корпусу: работы не проводились в соответствии с графиком производства строительных работ.
- по комплексной насосной станции перекачки нефтесодержащих сточных вод от обмыва бонов: работы не проводились в соответствии с графиком производства строительных работ.
- по комплексной насосной станции дождевых стоков: работы не проводились в соответствии с графиком производства строительных работ.
- по административному корпусу: работы не проводились в соответствии с графиком производства строительных работ.
- по ремонтной мастерской:
а) выполнялись работы по устройству кровли.
- по зданию мареографа: работы не проводились в соответствии с графиком производства строительных работ.
- по караульному помещению: работы не проводились в соответствии с графиком производства строительных работ.
- по гаражу:
а) завершены работы по устройству несущих конструкций под кровлю.
б) завершены работы по монтажу сендвич-панелей;
в) выполнялись работы по установке окон.
- по очистным сооружениям дождевых и нефтесодержащих сточных вод: работы не проводились в соответствии с графиком производства строительных работ.
- по очистным сооружениям бытовых сточных вод: работы не проводились в соответствии с графиком производства строительных работ.
- по производственному зданию очистных сооружений нефтесодержащих сточных вод: работы не проводились в соответствии с графиком производства строительных работ.
- по насосной станции очистных сооружений нефтесодержащих сточных вод: работы не проводились в соответствии с графиком производства строительных работ.
- по комплексной насосной станции бытовых стоков:
а) выполнялись наружные облицовочные работы;
б) выполнялись работы по установке окон.
- по комплексной насосной станции перекачки нефтесодержащих сточных вод с судна-сборщика: работы не проводились в соответствии с графиком производства строительных работ.
- по производственному зданию: работы не проводились в соответствии с графиком производства строительных работ.
- по станции биологической очистки: работы не проводились в соответствии с графиком производства строительных работ.
- по метеостанции: работы не проводились в соответствии с графиком производства строительных работ.
- по котельной с резервуаром дизельного топлива: работы не проводились в соответствии с графиком производства строительных работ.
- по установке обезвоживания осадков: работы не проводились в соответствии с графиком производства строительных работ.
- по зданию столовой:
а) выполнялись работы по устройству кровли.
- по противорадиационному укрытию:
а) выполнялись работы по устройству внутренней системы электроснабжения связи, вентиляции, сигнализации.
Площадка № 2:
- работы не проводились в соответствии с графиком производства строительных работ.
- по причалам № 1, 2, 3, 4:
а) завершена укладка трубопроводов дождевой канализации;
б) завершена укладка трубопроводов хозяйственно-бытовой канализации.
- по мачте поста мониторинга разливов нефти:
а) завершены работы по окраске металлических поверхностей мачты.
- по наружным сетям электроснабжения и наружного освещения: работы не проводились в соответствии с графиком производства строительных работ.
- по блочным комплексным трансформаторным подстанциям БКТП-1 и БКТП-2: работы не проводились в соответствии с графиком производства строительных работ.
- по хранилищу средств морспецподразделения: работы не проводились в соответствии с графиком производства строительных работ.
- по наружным сетям водопровода и канализации:
а) выполнялись работы по прокладке сетей водоснабжения и канализации.
- по наружным сетям связи и сигнализации: работы не проводились в соответствии с графиком производства строительных работ.
- по мачте высотой 28 метров для размещения антенны УКВ связи: работы не проводились в соответствии с графиком производства строительных работ.
- по бытовому корпусу: работы не проводились в соответствии с графиком производства строительных работ.
- по комплексной насосной станции перекачки нефтесодержащих сточных вод от обмыва бонов: работы не проводились в соответствии с графиком производства строительных работ.
- по комплексной насосной станции дождевых стоков: работы не проводились в соответствии с графиком производства строительных работ.
- по административному корпусу:
а) выполнялась прокладка воздуховодов вентиляции.
- по ремонтной мастерской:
а) выполнялись работы по устройству кровли.
б) выполнялась прокладка трубопроводов хозяйственно-бытовой канализации.
- по зданию мареографа: работы не проводились в соответствии с графиком производства строительных работ.
- по караульному помещению: работы не проводились в соответствии с графиком производства строительных работ.
- по гаражу:
а) завершены работы по кладке наружных стен;
б) завершены работы по устройству подстилающих слоев под полы;
в) завершены работы по устройству кровли;
г) завершены работы по установке окон;
д) завершены работы по установке ворот гаража;
е) завершены работы по устройству балочных перекрытий лестниц.
- по очистным сооружениям дождевых и нефтесодержащих сточных вод: работы не проводились в соответствии с графиком производства строительных работ.
- по очистным сооружениям бытовых сточных вод: работы не проводились в соответствии с графиком производства строительных работ.
- по производственному зданию очистных сооружений нефтесодержащих сточных вод:
а) выполнялись работы по внутренней отделке помещений.
- по насосной станции очистных сооружений нефтесодержащих сточных вод:
а) завершены работы по устройству пандусов;
б) завершены работы по устройству основания под плиту крыльца;
в) завершены работы по устройству подстилающих слоев под полы;
г) завершены работы по монтажу дверей;
д) выполнялись внутренние отделочные работы (отделка бетонных поверхностей под покраску или оклейку);
е) выполнялись работы по устройству мелких покрытий кровли (парапеты, свесы и т.п.);
- по комплексной насосной станции бытовых стоков: работы не проводились в соответствии с графиком производства строительных работ.
- по комплексной насосной станции перекачки нефтесодержащих сточных вод с судна-сборщика: работы не проводились в соответствии с графиком производства строительных работ.
- по производственному зданию: работы не проводились в соответствии с графиком производства строительных работ.
- по станции биологической очистки: работы не проводились в соответствии с графиком производства строительных работ.
- по метеостанции: работы не проводились в соответствии с графиком производства строительных работ.
- по котельной с резервуаром дизельного топлива: работы не проводились в соответствии с графиком производства строительных работ.
- по установке обезвоживания осадков: работы не проводились в соответствии с графиком производства строительных работ.
- по зданию столовой:
а) выполнена гидроизоляция стен, фундаментов;
б) выполнен монтаж ограждающих конструкций наружных стен;
- по противорадиационному укрытию:
а) завершены работы по укладке труб хозяйственно-питьевого трубопровода;
б) завершены работы по укладке труб бытовой канализации;
в) завершены работы по установке вентиляторных агрегатов;
г) завершены работы по установке конвекторов отопления;
д) завершены работы по устройству покрытий полов.
Площадка № 2:
- работы не проводились в соответствии с графиком производства строительных работ.
- по причалам № 1, 2, 3, 4: работы не проводились в соответствии с графиком производства строительных работ.
- по мачте поста мониторинга разливов нефти: работы не проводились в соответствии с графиком производства строительных работ.
- по наружным сетям электроснабжения и наружного освещения: работы не проводились в соответствии с графиком производства строительных работ.
- по блочным комплексным трансформаторным подстанциям БКТП-1 и БКТП-2: работы не проводились в соответствии с графиком производства строительных работ.
- по хранилищу средств морспецподразделения: работы не проводились в соответствии с графиком производства строительных работ.
- по наружным сетям водопровода и канализации: работы не проводились в соответствии с графиком производства строительных работ.
- по наружным сетям связи и сигнализации: работы не проводились в соответствии с графиком производства строительных работ.
- по мачте высотой 28 метров для размещения антенны УКВ связи: работы не проводились в соответствии с графиком производства строительных работ.
- по бытовому корпусу: работы не проводились в соответствии с графиком производства строительных работ.
- по комплексной насосной станции перекачки нефтесодержащих сточных вод от обмыва бонов: работы не проводились в соответствии с графиком производства строительных работ.
- по комплексной насосной станции дождевых стоков: работы не проводились в соответствии с графиком производства строительных работ.
- по административному корпусу: работы не проводились в соответствии с графиком производства строительных работ.
- по ремонтной мастерской:
а) завершены работы по монтажу кровельного покрытия;
б) завершены работы по установке окон;
в) завершены работы по устройству теплоизоляционного слоя пола.
- по зданию мареографа: работы не проводились в соответствии с графиком производства строительных работ.
- по караульному помещению: работы не проводились в соответствии с графиком производства строительных работ.
- по гаражу:
а) завершены работы по монтажу ограждающих конструкций стен;
б) завершены работы по устройству примыканий кровли к стенам;
в) завершены работы по обшивке каркасных стен вентиляционных шахт.
- по очистным сооружениям дождевых и нефтесодержащих сточных вод: работы не проводились в соответствии с графиком производства строительных работ.
- по очистным сооружениям бытовых сточных вод: работы не проводились в соответствии с графиком производства строительных работ.
- по производственному зданию очистных сооружений нефтесодержащих сточных вод: работы не проводились в соответствии с графиком производства строительных работ.
- по насосной станции очистных сооружений нефтесодержащих сточных вод:
а) завершены работы по очистке металлоконструкций резервуаров;
б) завершены работы по теплоизоляции резервуаров;
в) завершены работы по монтажу металлических конструкций переходных площадок;
г) выполнялись отделочные работы.
- по комплексной насосной станции бытовых стоков: работы не проводились в соответствии с графиком производства строительных работ.
- по комплексной насосной станции перекачки нефтесодержащих сточных вод с судна-сборщика: работы не проводились в соответствии с графиком производства строительных работ.
- по производственному зданию:
а) выполнено устройство основания под фундаменты.
- по станции биологической очистки: работы не проводились в соответствии с графиком производства строительных работ.
- по метеостанции: работы не проводились в соответствии с графиком производства строительных работ.
- по котельной с резервуаром дизельного топлива:
а) выполнен монтаж труб дымовых и вентиляционных.
- по установке обезвоживания осадков: работы не проводились в соответствии с графиком производства строительных работ.
- по зданию столовой:
а) завершены работы по устройству кровли;
б) завершены работы по созданию перегородок;
в) завершены работы по устройству теплоизоляционного слоя пола;
г) завершены работы по монтажу каркаса вентиляционных шахт.
- по противорадиационному укрытию:
а) завершены электромонтажные работы (кабель, кабельный короб, кабель-канал);
б) завершены работы по монтажу системы оповещения.
- по тепловым сетям:
а) завершены работы по разработке грунта под строительные конструкции тепловых сетей;
б) завершены работы по бетонной подготовке наземных фундаментов;
в) завершены работы по бетонированию теплокамеры.
Площадка № 2:
- работы не проводились в соответствии с графиком производства строительных работ.
- по причалам № 1, 2, 3, 4: работы не проводились в соответствии с графиком производства строительных работ.
- по мачте поста мониторинга разливов нефти: работы не проводились в соответствии с графиком производства строительных работ.
- по наружным сетям электроснабжения и наружного освещения: работы не проводились в соответствии с графиком производства строительных работ.
- по блочным комплексным трансформаторным подстанциям БКТП-1 и БКТП-2: работы не проводились в соответствии с графиком производства строительных работ.
- по хранилищу средств морспецподразделения: работы не проводились в соответствии с графиком производства строительных работ.
- по наружным сетям водопровода и канализации:
а) выполнялись работы по прокладке сетей.
- по наружным сетям связи и сигнализации: работы не проводились в соответствии с графиком производства строительных работ.
- по мачте высотой 28 метров для размещения антенны УКВ связи: работы не проводились в соответствии с графиком производства строительных работ.
- по бытовому корпусу: работы не проводились в соответствии с графиком производства строительных работ.
- по комплексной насосной станции перекачки нефтесодержащих сточных вод от обмыва бонов: работы не проводились в соответствии с графиком производства строительных работ.
- по комплексной насосной станции дождевых стоков: работы не проводились в соответствии с графиком производства строительных работ.
- по административному корпусу:
а) выполнена установка радиаторов отопления;
б) выполнены работы по прокладке трубопровода отопления.
- по ремонтной мастерской:
а) завершены работы по установке дверей.
- по зданию мареографа:
а) выполнен монтаж электрооборудования и электроосвещения.
- по караульному помещению:
а) выполнена установка радиаторов отопления.
- по гаражу:
а) завершены работы по укладке питьевого, противопожарного и канализационного трубопроводов;
- по очистным сооружениям дождевых и нефтесодержащих сточных вод: работы не проводились в соответствии с графиком производства строительных работ.
- по очистным сооружениям бытовых сточных вод: работы не проводились в соответствии с графиком производства строительных работ.
- по производственному зданию очистных сооружений нефтесодержащих сточных вод: работы не проводились в соответствии с графиком производства строительных работ.
- по насосной станции очистных сооружений нефтесодержащих сточных вод:
а) завершены работы по устройству трубопроводов внутри буферного резервуара;
б) завершены работы по прокладке инженерных сетей внутри здания;
в) завершены работы по прокладке сетей электроснабжения и освещения.
- по комплексной насосной станции бытовых стоков: работы не проводились в соответствии с графиком производства строительных работ.
- по комплексной насосной станции перекачки нефтесодержащих сточных вод с судна-сборщика: работы не проводились в соответствии с графиком производства строительных работ.
- по производственному зданию:
а) выполнен монтаж электрооборудования и электроосвещения.
- по станции биологической очистки: работы не проводились в соответствии с графиком производства строительных работ.
- по метеостанции: работы не проводились в соответствии с графиком производства строительных работ.
- по котельной с резервуаром дизельного топлива:
а) завершены работы по монтажу оборудования на складе топлива;
б) завершены работы по установке насоса для подачи топлива в котельную;
в) завершен монтаж дымовых и вентиляционных труб.
- по установке обезвоживания осадков: работы не проводились в соответствии с графиком производства строительных работ.
- по зданию столовой:
а) завершено устройство бетонного фундамента под крыльцо;
б) завершены работы по изоляции покрытий кровли;
в) завершены работы по монтажу дверных конструкций.
- по противорадиационному укрытию:
а) завершены работы по монтажу системы охранной сигнализации.
-по насосной станции II подъема питьевого водоснабжения:
а) выполнена укладка трубопровода наружных сетей канализации.
- по тепловым сетям: работы не проводились в соответствии с графиком производства строительных работ.
- по наружным сетям водопровода и канализации: работы не проводились в соответствии с графиком производства строительных работ.
Площадка № 2:
- работы не проводились в соответствии с графиком производства строительных работ.
Площадка № 1:
- по причалам № 1, 2, 3, 4: работы не проводились в соответствии с графиком производства строительных работ.
- по мачте поста мониторинга разливов нефти:
а) выполнен монтаж мачты.
- по наружным сетям электроснабжения и наружного освещения: работы не проводились в соответствии с графиком производства строительных работ.
- по блочным комплексным трансформаторным подстанциям БКТП-1 и БКТП-2: работы не проводились в соответствии с графиком производства строительных работ.
- по хранилищу средств морспецподразделения: работы не проводились в соответствии с графиком производства строительных работ.
- по наружным сетям водопровода и канализации:
а) выполнялись работы по прокладке наружных сетей;
- по наружным сетям связи и сигнализации:
а) выполнялись работы по прокладке сетей;
- по мачте высотой 28 метров для размещения антенны УКВ связи: работы не проводились в соответствии с графиком производства строительных работ.
- по бытовому корпусу: работы не проводились в соответствии с графиком производства строительных работ.
- по комплексной насосной станции перекачки нефтесодержащих сточных вод от обмыва бонов: работы не проводились в соответствии с графиком производства строительных работ.
- по комплексной насосной станции дождевых стоков: работы не проводились в соответствии с графиком производства строительных работ.
- по административному корпусу: работы не проводились в соответствии с графиком производства строительных работ.
- по ремонтной мастерской:
а) выполнялись работы по устройству кровли и ливневой канализации.
- по зданию мареографа:
а) завершены работы по монтажу электропроводки, установки светильников и розеток.
- по караульному помещению: работы не проводились в соответствии с графиком производства строительных работ.
- по гаражу:
а) завершены внутренние отделочные (штукатурные) работы.
- по очистным сооружениям дождевых и нефтесодержащих сточных вод: работы не проводились в соответствии с графиком производства строительных работ.
- по очистным сооружениям бытовых сточных вод: работы не проводились в соответствии с графиком производства строительных работ.
- по производственному зданию очистных сооружений нефтесодержащих сточных вод: работы не проводились в соответствии с графиком производства строительных работ.
- по насосной станции очистных сооружений нефтесодержащих сточных вод:
а) завершены работы по устройству трубопроводов внутри буферного резервуара.
- по комплексной насосной станции бытовых стоков: работы не проводились в соответствии с графиком производства строительных работ.
- по комплексной насосной станции перекачки нефтесодержащих сточных вод с судна-сборщика: работы не проводились в соответствии с графиком производства строительных работ.
- по производственному зданию: работы не проводились в соответствии с графиком производства строительных работ.
- по станции биологической очистки: работы не проводились в соответствии с графиком производства строительных работ.
- по метеостанции: работы не проводились в соответствии с графиком производства строительных работ.
- по котельной с резервуаром дизельного топлива:
а) завершены работы по монтажу оборудования на складе топлива и установке насоса для подачи топлива в котельную.
- по установке обезвоживания осадков: работы не проводились в соответствии с графиком производства строительных работ.
- по зданию столовой:
а) завершено выравнивание внутренних поверхностей перегородок;
б) выполнялась внутренние отделочные (штукатурные) работы;
в) завершены работы по установке зонтов над вентиляционными шахтами.
- по противорадиационному укрытию: работы не проводились в соответствии с графиком производства строительных работ.
-по насосной станции II подъема питьевого водоснабжения:
а) выполнена укладка трубопровода внешних сетей водоснабжения и канализации.
- по тепловым сетям:
а) выполнялись работы по прокладке турбопровода от теплокамер к административному и бытовому корпусам, к столовой, гаражу и контрольно-пропускному пункту.
Площадка № 2:
- по зданию инсинератора:
а) завершены работы по вынесению в натуру оси здания инсинератора.
- по причалам № 1, 2, 3, 4:
А) выполнялась укладка трубопроводов хозяйственно-бытовой канализации.
- по мачте поста мониторинга разливов нефти: работы не проводились в соответствии с графиком производства строительных работ.
- по наружным сетям электроснабжения и наружного освещения: работы не проводились в соответствии с графиком производства строительных работ.
- по блочным комплексным трансформаторным подстанциям БКТП-1 и БКТП-2: работы не проводились в соответствии с графиком производства строительных работ.
- по хранилищу средств морспецподразделения: работы не проводились в соответствии с графиком производства строительных работ.
- по наружным сетям водопровода и канализации: работы не проводились в соответствии с графиком производства строительных работ.
- по наружным сетям связи и сигнализации:
А) выполнялись работы по разработке грунта;
Б) выполнялись работы по устройству железобетонных колодцев.
- по мачте высотой 28 метров для размещения антенны УКВ связи: работы не проводились в соответствии с графиком производства строительных работ.
- по бытовому корпусу: работы не проводились в соответствии с графиком производства строительных работ.
- по комплексной насосной станции перекачки нефтесодержащих сточных вод от обмыва бонов: работы не проводились в соответствии с графиком производства строительных работ.
- по комплексной насосной станции дождевых стоков: работы не проводились в соответствии с графиком производства строительных работ.
- по административному корпусу:
А) выполнялась прокладка трубопроводов горячего водоснабжения;
Б) завершены работы по монтажу внутренних перегородок.
- по ремонтной мастерской:
А) выполнялись работы по устройству водосточных желобов кровли.
- по зданию мареографа: работы не проводились в соответствии с графиком производства строительных работ.
- по караульному помещению: работы не проводились в соответствии с графиком производства строительных работ.
- по гаражу:
А) выполнялись работы по монтажу лотков для электрооборудования и электроосвещения;
Б) выполнялись штукатурные работы поверхностей внутри здания;
В) выполнялись работы по устройству бетонных стяжек полов.
Г) выполнялись работы по окраске металлических поверхностей утепленной двери.
- по очистным сооружениям дождевых и нефтесодержащих сточных вод: работы не проводились в соответствии с графиком производства строительных работ.
- по очистным сооружениям бытовых сточных вод: работы не проводились в соответствии с графиком производства строительных работ.
- по производственному зданию очистных сооружений нефтесодержащих сточных вод:
А) выполнялись внутренние отделочные работы (окраска стен);
Б) выполнялся монтаж электрооборудования (щит силовой, щит освещения, щит аварийного освещения).
- по насосной станции очистных сооружений нефтесодержащих сточных вод:
А) выполнялся монтаж электрооборудования (щит распределительный);
Б) завершены работы по монтажу пожарных лестниц с ограждением;
В) завершены работы по монтажу металлических конструкций эстакады;
Г) выполнялись внутренние отделочные работы (окраска потолков, стен).
- по комплексной насосной станции бытовых стоков: работы не проводились в соответствии с графиком производства строительных работ.
- по комплексной насосной станции перекачки нефтесодержащих сточных вод с судна-сборщика: работы не проводились в соответствии с графиком производства строительных работ.
- по производственному зданию: работы не проводились в соответствии с графиком производства строительных работ.
- по станции биологической очистки: работы не проводились в соответствии с графиком производства строительных работ.
- по метеостанции: работы не проводились в соответствии с графиком производства строительных работ.
- по котельной с резервуаром дизельного топлива:
А) выполнялся монтаж тепломеханического оборудования;
Б) выполнялась установка счетчиков топлива.
- по установке обезвоживания осадков: работы не проводились в соответствии с графиком производства строительных работ.
- по зданию столовой:
А) выполнялась окраска металлических конструкций крылец;
Б) завершены работы по уплотнению стыков наружных стен;
В) завершены работы по устройству водосточных желобов кровли;
Г) выполнялись работы по монтажу витражей;
Д) завершены работы по штукатурке поверхностей внутри здания.
- по противорадиационному укрытию: работы не проводились в соответствии с графиком производства строительных работ.
-по насосной станции II подъема питьевого водоснабжения:
А) выполнена укладка трубопровода внешних сетей водоснабжения и канализации.
- по тепловым сетям:
А) выполнялось устройство футляров для прокладки трубопроводов.
- по насосной станции пожаротушения с морским водозабором:
А) выполнялись работы по рытью котлована и креплению шпунтового ряда;
Площадка № 2:
- по зданию инсинератора: работы не проводились в соответствии с графиком производства строительных работ.
- по причалам № 1, 2, 3, 4:
А) выполнялась укладка трубопроводов хозяйственно-бытовой канализации.
- по мачте поста мониторинга разливов нефти: работы не проводились в соответствии с графиком производства строительных работ.
- по наружным сетям электроснабжения и наружного освещения:
А) выполнялись работы по прокладке кабеля.
- по блочным комплексным трансформаторным подстанциям БКТП-1 и БКТП-2: работы не проводились в соответствии с графиком производства строительных работ.
- по хранилищу средств морспецподразделения: работы не проводились в соответствии с графиком производства строительных работ.
- по наружным сетям водопровода и канализации:
А) выполнялось работы по устройству переходов в грунтах для прокладки труб.
- по наружным сетям связи и сигнализации: работы не проводились в соответствии с графиком производства строительных работ.
- по мачте высотой 28 метров для размещения антенны УКВ связи: работы не проводились в соответствии с графиком производства строительных работ.
- по бытовому корпусу: работы не проводились в соответствии с графиком производства строительных работ.
- по комплексной насосной станции перекачки нефтесодержащих сточных вод от обмыва бонов: работы не проводились в соответствии с графиком производства строительных работ.
- по комплексной насосной станции дождевых стоков: работы не проводились в соответствии с графиком производства строительных работ.
- по административному корпусу: работы не проводились в соответствии с графиком производства строительных работ.
- по ремонтной мастерской: работы не проводились в соответствии с графиком производства строительных работ.
- по зданию мареографа: работы не проводились в соответствии с графиком производства строительных работ.
- по караульному помещению: работы не проводились в соответствии с графиком производства строительных работ.
- по гаражу:
А) выполнялись работы по монтажу ограждающих конструкций стен из сендвич-панелей;
Б) выполнялись работы по устройству подстилающих слоев полов;
В) выполнялись работы по изоляции покрытий и перекрытий кровли;
Г) выполнялись работы по монтажу металлических дверей;
Д) выполнялись работы по монтажу конструкций козырька.
- по очистным сооружениям дождевых и нефтесодержащих сточных вод: работы не проводились в соответствии с графиком производства строительных работ.
- по очистным сооружениям бытовых сточных вод: работы не проводились в соответствии с графиком производства строительных работ.
- по производственному зданию очистных сооружений нефтесодержащих сточных вод: работы не проводились в соответствии с графиком производства строительных работ.
- по насосной станции очистных сооружений нефтесодержащих сточных вод:
А) выполнялись работы по бетонной подготовке фундаментов;
Б) выполнялись работы по монтажу площадок обслуживания;
Г) выполнялись работы по теплоизоляции резервуаров.
- по комплексной насосной станции бытовых стоков: работы не проводились в соответствии с графиком производства строительных работ.
- по комплексной насосной станции перекачки нефтесодержащих сточных вод с судна-сборщика: работы не проводились в соответствии с графиком производства строительных работ.
- по производственному зданию:
А) выполнялись покрасочные работы;
Б) выполнялись работы по монтажу окон и дверей;
В) выполнялись внутренние и наружные отделочные работы;
Г) выполнялись работы по утеплению кровли.
- по станции биологической очистки: работы не проводились в соответствии с графиком производства строительных работ.
- по метеостанции: работы не проводились в соответствии с графиком производства строительных работ.
- по котельной с резервуаром дизельного топлива:
А) выполнялись работы по заделке стыков при проходе труб через фундаменты или стены;
Б) выполнялись электромонтажные работы.
- по установке обезвоживания осадков: работы не проводились в соответствии с графиком производства строительных работ.
- по зданию столовой:
А) выполнялась внутренняя отделка стен, столбов, откосов и т.д.
- по противорадиационному укрытию:
А) выполнялись работы по устройству заземления.
-по насосной станции II подъема питьевого водоснабжения: работы не проводились в соответствии с графиком производства строительных работ.
- по тепловым сетям: работы не проводились в соответствии с графиком производства строительных работ.
- по насосной станции пожаротушения с морским водозабором: работы не проводились в соответствии с графиком производства строительных работ.
Площадка № 2:
- по зданию инсинератора:
А) выполнялись работы по устройству бетонной плиты фундаментов;
Б) выполнялись работы по установке оборудования.
- по причалам № 1, 2, 3, 4:
А) выполнялись работы по устройству подстилающих слоев дорожного покрытия.
- по мачте поста мониторинга разливов нефти: работы не проводились в соответствии с графиком производства строительных работ.
- по наружным сетям электроснабжения и наружного освещения: работы не проводились в соответствии с графиком производства строительных работ.
- по блочным комплексным трансформаторным подстанциям БКТП-1 и БКТП-2: работы не проводились в соответствии с графиком производства строительных работ.
- по хранилищу средств морспецподразделения: работы не проводились в соответствии с графиком производства строительных работ.
- по наружным сетям водопровода и канализации: работы не проводились в соответствии с графиком производства строительных работ.
- по наружным сетям связи и сигнализации:
А) выполнялись работы по устройству основания под трубопроводы кабельной канализации.
- по мачте высотой 28 метров для размещения антенны УКВ связи: работы не проводились в соответствии с графиком производства строительных работ.
- по бытовому корпусу:
А) выполнялось устройство фундаментов под плиту крыльца.
- по комплексной насосной станции перекачки нефтесодержащих сточных вод от обмыва бонов: работы не проводились в соответствии с графиком производства строительных работ.
- по комплексной насосной станции дождевых стоков: работы не проводились в соответствии с графиком производства строительных работ.
- по административному корпусу:
А) выполнялась прокладка воздуховодов вентиляции.
- по ремонтной мастерской: работы не проводились в соответствии с графиком производства строительных работ.
- по зданию мареографа: работы не проводились в соответствии с графиком производства строительных работ.
- по караульному помещению: работы не проводились в соответствии с графиком производства строительных работ.
- по гаражу:
А) выполнялись работы по устройству бетонных покрытий полов.
- по очистным сооружениям дождевых и нефтесодержащих сточных вод: работы не проводились в соответствии с графиком производства строительных работ.
- по очистным сооружениям бытовых сточных вод: работы не проводились в соответствии с графиком производства строительных работ.
- по производственному зданию очистных сооружений нефтесодержащих сточных вод: работы не проводились в соответствии с графиком производства строительных работ.
- по насосной станции очистных сооружений нефтесодержащих сточных вод:
А) выполнялись работы по устройству бетонной подготовки фундаментов;
Б) выполнялись работы по монтажу опорных конструкций.
- по комплексной насосной станции бытовых стоков: работы не проводились в соответствии с графиком производства строительных работ.
- по комплексной насосной станции перекачки нефтесодержащих сточных вод с судна-сборщика: работы не проводились в соответствии с графиком производства строительных работ.
- по производственному зданию: работы не проводились в соответствии с графиком производства строительных работ.
- по станции биологической очистки: работы не проводились в соответствии с графиком производства строительных работ.
- по метеостанции: работы не проводились в соответствии с графиком производства строительных работ.
- по котельной с резервуаром дизельного топлива:
А) выполнялись работы по установке оборудования.
- по установке обезвоживания осадков: работы не проводились в соответствии с графиком производства строительных работ.
- по зданию столовой:
А) завершены работы по монтажу элементов фахверка;
Б) выполнялись работы по прокладке трубопроводов водоснабжения;
В) выполнялись работы по прокладке трубопроводов канализации;
Г) выполнялись работы по прокладке воздуховодов вентиляции;
Д) выполнялась работы по прокладке трубопроводов отопления;
Е) завершены работы по монтажу металлических лотков под электрооборудование и электроосвещение.
- по противорадиационному укрытию: работы не проводились в соответствии с графиком производства строительных работ.
-по насосной станции II подъема питьевого водоснабжения: работы не проводились в соответствии с графиком производства строительных работ.
- по тепловым сетям: работы не проводились в соответствии с графиком производства строительных работ.
- по насосной станции пожаротушения с морским водозабором: работы не проводились в соответствии с графиком производства строительных работ.
Площадка № 2:
- по зданию инсинератора:
А) выполнялись работы по устройству бетонной плиты фундаментов;
Б) выполнялись работы по установке оборудования.
- по причалам № 1, 2, 3, 4: работы не проводились в соответствии с графиком производства строительных работ.
- по мачте поста мониторинга разливов нефти: работы не проводились в соответствии с графиком производства строительных работ.
- по наружным сетям электроснабжения и наружного освещения: работы не проводились в соответствии с графиком производства строительных работ.
- по блочным комплексным трансформаторным подстанциям БКТП-1 и БКТП-2: работы не проводились в соответствии с графиком производства строительных работ.
- по хранилищу средств морспецподразделения: работы не проводились в соответствии с графиком производства строительных работ.
- по наружным сетям водопровода и канализации: работы не проводились в соответствии с графиком производства строительных работ.
- по наружным сетям связи и сигнализации: работы не проводились в соответствии с графиком производства строительных работ.
- по мачте высотой 28 метров для размещения антенны УКВ связи: работы не проводились в соответствии с графиком производства строительных работ.
- по бытовому корпусу: работы не проводились в соответствии с графиком производства строительных работ.
- по комплексной насосной станции перекачки нефтесодержащих сточных вод от обмыва бонов: работы не проводились в соответствии с графиком производства строительных работ.
- по комплексной насосной станции дождевых стоков: работы не проводились в соответствии с графиком производства строительных работ.
- по административному корпусу: работы не проводились в соответствии с графиком производства строительных работ.
- по ремонтной мастерской: работы не проводились в соответствии с графиком производства строительных работ.
- по зданию мареографа: работы не проводились в соответствии с графиком производства строительных работ.
- по караульному помещению: работы не проводились в соответствии с графиком производства строительных работ.
- по гаражу: работы не проводились в соответствии с графиком производства строительных работ.
- по очистным сооружениям дождевых и нефтесодержащих сточных вод: работы не проводились в соответствии с графиком производства строительных работ.
- по очистным сооружениям бытовых сточных вод: работы не проводились в соответствии с графиком производства строительных работ.
- по производственному зданию очистных сооружений нефтесодержащих сточных вод: работы не проводились в соответствии с графиком производства строительных работ.
- по насосной станции очистных сооружений нефтесодержащих сточных вод: работы не проводились в соответствии с графиком производства строительных работ.
- по комплексной насосной станции бытовых стоков: работы не проводились в соответствии с графиком производства строительных работ.
- по комплексной насосной станции перекачки нефтесодержащих сточных вод с судна-сборщика: работы не проводились в соответствии с графиком производства строительных работ.
- по производственному зданию: работы не проводились в соответствии с графиком производства строительных работ.
- по станции биологической очистки: работы не проводились в соответствии с графиком производства строительных работ.
- по метеостанции: работы не проводились в соответствии с графиком производства строительных работ.
- по котельной с резервуаром дизельного топлива: работы не проводились в соответствии с графиком производства строительных работ.
- по установке обезвоживания осадков: работы не проводились в соответствии с графиком производства строительных работ.
- по зданию столовой:
А) выполнялись работы по прокладке трубопроводов водоснабжения;
Б) выполнялись работы по прокладке трубопроводов канализации;
В) выполнялись работы по прокладке воздуховодов вентиляции;
Г) выполнялись работы по прокладке трубопроводов отопления.
- по противорадиационному укрытию: работы не проводились в соответствии с графиком производства строительных работ.
-по насосной станции II подъема питьевого водоснабжения: работы не проводились в соответствии с графиком производства строительных работ.
- по тепловым сетям: работы не проводились в соответствии с графиком производства строительных работ.
- по насосной станции пожаротушения с морским водозабором: работы не проводились в соответствии с графиком производства строительных работ.
Площадка № 2:
- по зданию инсинератора:
А) завершены работы по устройству бетонной плиты фундаментов;
Б) завершены работы по установке инсинератора для сжигания твердых бытовых отходов;
- по причалам № 1, 2, 3, 4: работы не проводились в соответствии с графиком производства строительных работ.
- по мачте поста мониторинга разливов нефти: работы не проводились в соответствии с графиком производства строительных работ.
- по наружным сетям электроснабжения и наружного освещения:
А) выполнялись электромонтажные работы на сетях напряжением 0,4 кВ и 10 кВ.
- по блочным комплексным трансформаторным подстанциям БКТП-1 и БКТП-2: работы не проводились в соответствии с графиком производства строительных работ.
- по хранилищу средств морспецподразделения:
А) выполнялись работы по монтажу дверных доводчиков.
- по наружным сетям водопровода и канализации:
А) завершены работы по устройству хозяйственно-бытовой канализации (К1) южной зоны;
Б) завершены работы по устройству канализации поверхностных сточных вод (К2) южной зоны;
В) завершены земляные работы по устройству хозяйственно-питьевого трубопровода (В0).
- по наружным сетям связи и сигнализации: работы не проводились в соответствии с графиком производства строительных работ.
- по мачте высотой 28 метров для размещения антенны УКВ связи: работы не проводились в соответствии с графиком производства строительных работ.
- по бытовому корпусу: работы не проводились в соответствии с графиком производства строительных работ.
- по комплексной насосной станции перекачки нефтесодержащих сточных вод от обмыва бонов: работы не проводились в соответствии с графиком производства строительных работ.
- по комплексной насосной станции дождевых стоков: работы не проводились в соответствии с графиком производства строительных работ.
- по административному корпусу:
А) завершены работы по уплотнению грунта под отмостку вокруг здания.
- по ремонтной мастерской:
А) завершены работы по прокладке трубопроводов поверхностных сточных вод (К2);
Б) завершены работы по монтажу 126 метров лотков под электрооборудование;
В) завершены работы по прокладке 12,5 трубопроводов отопления и 48 метров трубопровода теплоснабжения;
Г) завершены работы по устройству стен и перегородок;
Д) завершены работы по монтажу конька кровли;
Е) завершены работы по установке 23 металлических дверей.
- по зданию мареографа: работы не проводились в соответствии с графиком производства строительных работ.
- по караульному помещению: работы не проводились в соответствии с графиком производства строительных работ.
- по гаражу: работы не проводились в соответствии с графиком производства строительных работ.
- по очистным сооружениям дождевых и нефтесодержащих сточных вод: работы не проводились в соответствии с графиком производства строительных работ.
- по очистным сооружениям бытовых сточных вод: работы не проводились в соответствии с графиком производства строительных работ.
- по производственному зданию очистных сооружений нефтесодержащих сточных вод:
А) завершены работы по монтажу 4 ящиков с понижающим трансформатором, 4 светодиодных светильников, 11 розеток и 5 двухполюсных выключателей.
- по насосной станции очистных сооружений нефтесодержащих сточных вод:
А) завершены работы по монтажу 20 штук держателей проводов, 55 кровельных держателей проволоки и 15 штук соединителей быстрого монтажа;
Б) завершены покрасочные работы металлических опорных конструкций резервуаров;
В) завершены работы по монтажу опорных конструкций под трубопроводы резервуаров.
- по комплексной насосной станции бытовых стоков: работы не проводились в соответствии с графиком производства строительных работ.
- по комплексной насосной станции перекачки нефтесодержащих сточных вод с судна-сборщика: работы не проводились в соответствии с графиком производства строительных работ.
- по производственному зданию:
А) завершены работы по устройству стяжки под полы в двух помещениях.
- по станции биологической очистки: работы не проводились в соответствии с графиком производства строительных работ.
- по метеостанции: работы не проводились в соответствии с графиком производства строительных работ.
- по котельной с резервуаром дизельного топлива:
А) завершены работы по монтажу щита управления сетевыми насосами, щита управления и регулирования котла;
Б) завершены работы по монтажу 3 прожекторов и одного уличного светильника в помещении склада топлива.
- по установке обезвоживания осадков: работы не проводились в соответствии с графиком производства строительных работ.
- по зданию столовой:
А) завершены работы по устройству стяжек под полы в 23 помещениях;
Б) завершены работы по изоляции воздуховодов системы вентиляции и кондиционирования систем П1, П2В2 и П3;
В) завершены работы по прокладке 242 метров труб отопления диаметром 15 мм и 46 метров труб диаметром 50 мм;
Г) завершены работы по монтажу 7 щитов электрооборудования и электроосвещения и 50 светильников.
- по противорадиационному укрытию: работы не проводились в соответствии с графиком производства строительных работ.
-по насосной станции II подъема питьевого водоснабжения: работы не проводились в соответствии с графиком производства строительных работ.
- по тепловым сетям: работы не проводились в соответствии с графиком производства строительных работ.
- по насосной станции пожаротушения с морским водозабором: работы не проводились в соответствии с графиком производства строительных работ.
Площадка № 2:
- по зданию инсинератора:
А) выполнялись работы по устройству бетонной подготовки под фундамент дымовых труб.
- по причалам № 1, 2, 3, 4: работы не проводились в соответствии с графиком производства строительных работ.
- по мачте поста мониторинга разливов нефти: работы не проводились в соответствии с графиком производства строительных работ.
- по наружным сетям электроснабжения и наружного освещения:
А) завершены электромонтажные работы на сетях напряжением 0,4 кВ и 10 кВ.
- по блочным комплексным трансформаторным подстанциям БКТП-1 и БКТП-2: работы не проводились в соответствии с графиком производства строительных работ.
- по хранилищу средств морспецподразделения: работы не проводились в соответствии с графиком производства строительных работ.
- по наружным сетям водопровода и канализации:
Б) завершены работы по укладке трубопровода для очищенных сточных вод (К0).
- по наружным сетям связи и сигнализации: работы не проводились в соответствии с графиком производства строительных работ.
- по мачте высотой 28 метров для размещения антенны УКВ связи: работы не проводились в соответствии с графиком производства строительных работ.
- по бытовому корпусу: работы не проводились в соответствии с графиком производства строительных работ.
- по комплексной насосной станции перекачки нефтесодержащих сточных вод от обмыва бонов: работы не проводились в соответствии с графиком производства строительных работ.
- по комплексной насосной станции дождевых стоков: работы не проводились в соответствии с графиком производства строительных работ.
- по административному корпусу: работы не проводились в соответствии с графиком производства строительных работ.
- по ремонтной мастерской:
А) завершены работы по устройству кровли.
- по зданию мареографа: работы не проводились в соответствии с графиком производства строительных работ.
- по караульному помещению:
А) завершены работы по устройству перегородок;
Б) завершены работы по установке дверей;
В) завершены работы по устройству плиты пола и чернового пола;
Г) завершены работы по устройству кровли;
Д) завершены наружные отделочные работы.
- по гаражу: работы не проводились в соответствии с графиком производства строительных работ.
- по очистным сооружениям дождевых и нефтесодержащих сточных вод:
А) выполнялись работы по монтажу технологического оборудования и трубопроводов.
- по очистным сооружениям бытовых сточных вод: работы не проводились в соответствии с графиком производства строительных работ.
- по производственному зданию очистных сооружений нефтесодержащих сточных вод: работы не проводились в соответствии с графиком производства строительных работ.
- по насосной станции очистных сооружений нефтесодержащих сточных вод: работы не проводились в соответствии с графиком производства строительных работ.
- по комплексной насосной станции бытовых стоков: работы не проводились в соответствии с графиком производства строительных работ.
- по комплексной насосной станции перекачки нефтесодержащих сточных вод с судна-сборщика: работы не проводились в соответствии с графиком производства строительных работ.
- по производственному зданию: работы не проводились в соответствии с графиком производства строительных работ.
- по станции биологической очистки: работы не проводились в соответствии с графиком производства строительных работ.
- по метеостанции: работы не проводились в соответствии с графиком производства строительных работ.
- по котельной с резервуаром дизельного топлива:
А) завершены работы по устройству цоколя котельной.
- по установке обезвоживания осадков: работы не проводились в соответствии с графиком производства строительных работ.
- по зданию столовой:
А) завешены работы по облицовке стен колонн.
- по противорадиационному укрытию: работы не проводились в соответствии с графиком производства строительных работ.
-по насосной станции II подъема питьевого водоснабжения: работы не проводились в соответствии с графиком производства строительных работ.
- по тепловым сетям: работы не проводились в соответствии с графиком производства строительных работ.
- по насосной станции пожаротушения с морским водозабором: работы не проводились в соответствии с графиком производства строительных работ.
Площадка № 2:
- по зданию инсинератора:
А) выполнялись работы по монтажу технологического оборудования;
В) завершены работы по устройству колонн фахверков.
- по причалам № 1, 2, 3, 4: работы не проводились в соответствии с графиком производства строительных работ.
- по мачте поста мониторинга разливов нефти: работы не проводились в соответствии с графиком производства строительных работ.
- по наружным сетям электроснабжения и наружного освещения: работы не проводились в соответствии с графиком производства строительных работ.
- по блочным комплексным трансформаторным подстанциям БКТП-1 и БКТП-2: работы не проводились в соответствии с графиком производства строительных работ.
- по хранилищу средств морспецподразделения: работы не проводились в соответствии с графиком производства строительных работ.
- по наружным сетям водопровода и канализации:
А) завершены работы по устройству хозяйственно-питьевого водопровода (В1) и противопожарного водопровода (В2) зоны очистных сооружений дождевых и нефтесодержащих сточных вод;
Б) завершены работы по устройству канализации поверхностных сточных вод (К2) центральной зоны.
- по наружным сетям связи и сигнализации: работы не проводились в соответствии с графиком производства строительных работ.
- по мачте высотой 28 метров для размещения антенны УКВ связи: работы не проводились в соответствии с графиком производства строительных работ.
- по бытовому корпусу: работы не проводились в соответствии с графиком производства строительных работ.
- по комплексной насосной станции перекачки нефтесодержащих сточных вод от обмыва бонов: работы не проводились в соответствии с графиком производства строительных работ.
- по комплексной насосной станции дождевых стоков: работы не проводились в соответствии с графиком производства строительных работ.
- по административному корпусу:
А) завершены работы по устройству 4 вентиляционных шахт.
- по ремонтной мастерской:
А) завершены работы по монтажу 16 потолочных светильников и 66 метров лотка для электрооборудования, а также прокладке 500 м электрокабеля;
Б) завершены работы по прокладке 55 метров воздуховодов системы вентиляции П1, П3 и В8.
- по зданию мареографа: работы не проводились в соответствии с графиком производства строительных работ.
- по караульному помещению: работы не проводились в соответствии с графиком производства строительных работ.
- по гаражу: работы не проводились в соответствии с графиком производства строительных работ.
- по очистным сооружениям дождевых и нефтесодержащих сточных вод:
А) выполнялись работы по монтажу технологического оборудования и трубопроводов.
- по очистным сооружениям бытовых сточных вод:
А) завершены работы по устройству хозяйственно-питьевого водопровода (В1);
Б) завершены работы по устройству хозяйственно-бытовой канализации (НК1).
- по производственному зданию очистных сооружений нефтесодержащих сточных вод:
А) завершены работы по устройству полов;
Б) завершены работы по облицовке стен.
- по насосной станции очистных сооружений нефтесодержащих сточных вод:
А) завершены работы по установке опорных конструкций эстакады.
- по комплексной насосной станции бытовых стоков: работы не проводились в соответствии с графиком производства строительных работ.
- по комплексной насосной станции перекачки нефтесодержащих сточных вод с судна-сборщика: работы не проводились в соответствии с графиком производства строительных работ.
- по производственному зданию: работы не проводились в соответствии с графиком производства строительных работ.
- по станции биологической очистки: работы не проводились в соответствии с графиком производства строительных работ.
- по метеостанции: работы не проводились в соответствии с графиком производства строительных работ.
- по котельной с резервуаром дизельного топлива:
А) завершены работы по монтажу трех регуляторов давления, 13 дисковых повторных затворов и 18 шаровых приварных кранов;
Б) завершены работы по монтажу газо-воздухоотделителя;
В) завершены работы по устройству молниезащиты котельной.
- по установке обезвоживания осадков: работы не проводились в соответствии с графиком производства строительных работ.
- по зданию столовой:
А) завершены работы по монтажу подвесных потолков на площади 100 м2;
В) завершены работы по устройству отмостки.
- по противорадиационному укрытию: работы не проводились в соответствии с графиком производства строительных работ.
-по насосной станции II подъема питьевого водоснабжения:
А) завершены работы по устройству траншей для трубопровода насосной станции;
- по тепловым сетям: работы не проводились в соответствии с графиком производства строительных работ.
- по насосной станции пожаротушения с морским водозабором: работы не проводились в соответствии с графиком производства строительных работ.
- по резервуарам запаса воды:
А) завершены земляные работы под резервуары запасов воды;
Б) завершены работы по устройству резервуара под питьевую воду;
В) завершены работы по устройству камеры фильтров.
Площадка № 2:
- по зданию инсинератора:
А) завершены работы по монтажу части технологического оборудования.
- по причалам № 1, 2, 3, 4: работы не проводились в соответствии с графиком производства строительных работ.
- по мачте поста мониторинга разливов нефти: работы не проводились в соответствии с графиком производства строительных работ.
- по наружным сетям электроснабжения и наружного освещения: работы не проводились в соответствии с графиком производства строительных работ.
- по блочным комплексным трансформаторным подстанциям БКТП-1 и БКТП-2: работы не проводились в соответствии с графиком производства строительных работ.
- по хранилищу средств морспецподразделения: работы не проводились в соответствии с графиком производства строительных работ.
- по наружным сетям водопровода и канализации: работы не проводились в соответствии с графиком производства строительных работ.
- по наружным сетям связи и сигнализации:
А) завершены работы по подготовке траншей для кабельной канализации;
Б) завершены работы по устройству колодцев и прокладке трубопроводов под кабель.
- по мачте высотой 28 метров для размещения антенны УКВ связи: работы не проводились в соответствии с графиком производства строительных работ.
- по бытовому корпусу:
А) завершены работы по устройству 124 м2 стяжки пола.
- по комплексной насосной станции перекачки нефтесодержащих сточных вод от обмыва бонов: работы не проводились в соответствии с графиком производства строительных работ.
- по комплексной насосной станции дождевых стоков: работы не проводились в соответствии с графиком производства строительных работ.
- по административному корпусу:
А) завершены работы по устройству 4 вентиляционных шахт.
- по ремонтной мастерской: работы не проводились в соответствии с графиком производства строительных работ.
- по зданию мареографа: работы не проводились в соответствии с графиком производства строительных работ.
- по караульному помещению: работы не проводились в соответствии с графиком производства строительных работ.
- по гаражу: работы не проводились в соответствии с графиком производства строительных работ.
- по очистным сооружениям дождевых и нефтесодержащих сточных вод:
А) завершены работы по устройству трубопровода нефтесодержащих сточных вод, трубопровода шламосодержащих сточных вод и канализации поверхностных сточных вод.
- по очистным сооружениям бытовых сточных вод: работы не проводились в соответствии с графиком производства строительных работ.
- по производственному зданию очистных сооружений нефтесодержащих сточных вод:
А) завершены работы по изоляции стен тамбура и стен воздухозабора в помещении № 110;
Б) завершены работы по устройству чистового пола в 10 помещениях.
- по насосной станции очистных сооружений нефтесодержащих сточных вод: работы не проводились в соответствии с графиком производства строительных работ.
- по комплексной насосной станции бытовых стоков: работы не проводились в соответствии с графиком производства строительных работ.
- по комплексной насосной станции перекачки нефтесодержащих сточных вод с судна-сборщика: работы не проводились в соответствии с графиком производства строительных работ.
- по производственному зданию: работы не проводились в соответствии с графиком производства строительных работ.
- по станции биологической очистки: работы не проводились в соответствии с графиком производства строительных работ.
- по метеостанции: работы не проводились в соответствии с графиком производства строительных работ.
- по котельной с резервуаром дизельного топлива:
А) выполнялись работы по монтажу тепломеханического оборудования.
Б) выполнялись работы по монтажу оборудования и вентиляции.
- по установке обезвоживания осадков: работы не проводились в соответствии с графиком производства строительных работ.
- по зданию столовой: работы не проводились в соответствии с графиком производства строительных работ.
- по противорадиационному укрытию: работы не проводились в соответствии с графиком производства строительных работ.
-по насосной станции II подъема питьевого водоснабжения:
А) завершены работы по устройству железобетонного основания под трубопроводы насосной станции;
Б) завершены работы по прокладке трубопроводов резервуара питьевого водоснабжения.
- по тепловым сетям: работы не проводились в соответствии с графиком производства строительных работ.
- по насосной станции пожаротушения с морским водозабором:
А) завершены работы по отсыпке подготовки из щебня под плиту основания;
Б) завершены работы по армированию плиты основания.
- по резервуарам запаса воды: работы не проводились в соответствии с графиком производства строительных работ.
Площадка № 2:
- по зданию инсинератора: работы не проводились в соответствии с графиком производства строительных работ.
Площадка № 1:
- по причалам № 1, 2, 3, 4: работы не проводились в соответствии с графиком производства строительных работ.
- по мачте поста мониторинга разливов нефти: работы не проводились в соответствии с графиком производства строительных работ.
- по наружным сетям электроснабжения и наружного освещения: работы не проводились в соответствии с графиком производства строительных работ.
- по блочным комплексным трансформаторным подстанциям БКТП-1 и БКТП-2: работы не проводились в соответствии с графиком производства строительных работ.
- по хранилищу средств морспецподразделения: работы не проводились в соответствии с графиком производства строительных работ.
- по наружным сетям водопровода и канализации: работы не проводились в соответствии с графиком производства строительных работ.
- по наружным сетям связи и сигнализации:
а) выполнялись работы по устройству кабельной канализации в зоне очистных сооружений дождевых и нефтесодержащих сточных вод;
- по мачте высотой 28 метров для размещения антенны УКВ связи: работы не проводились в соответствии с графиком производства строительных работ.
- по бытовому корпусу:
а) завершены работы по монтажу 2 лестничных пролетов на 2 этаж и лестницы в подвал;
б) выполнялись работы по монтажу электрооборудования и электроосвещения.
- по комплексной насосной станции перекачки нефтесодержащих сточных вод от обмыва бонов: работы не проводились в соответствии с графиком производства строительных работ.
- по комплексной насосной станции дождевых стоков: работы не проводились в соответствии с графиком производства строительных работ.
- по административному корпусу: работы не проводились в соответствии с графиком производства строительных работ.
- по ремонтной мастерской:
а) выполнялись работы по монтажу вентиляции и отопления;
б) выполнялись по монтажу электрооборудования и электроосвещения.
- по зданию мареографа: работы не проводились в соответствии с графиком производства строительных работ.
- по караульному помещению: работы не проводились в соответствии с графиком производства строительных работ.
- по гаражу:
а) выполнялись работы по устройству полов;
б) выполнялись работы по монтажу индивидуального теплового пункта.
- по очистным сооружениям дождевых и нефтесодержащих сточных вод: работы не проводились в соответствии с графиком производства строительных работ.
- по очистным сооружениям бытовых сточных вод: работы не проводились в соответствии с графиком производства строительных работ.
- по производственному зданию очистных сооружений нефтесодержащих сточных вод:
а) завершены работы по монтажу силового щита.
- по насосной станции очистных сооружений нефтесодержащих сточных вод:
а) выполнялись работы по монтажу электрооборудования и электроосвещения;
б) завершены работы по антикоррозийному покрытию железобетонных конструкций эстакады резервуарного парка.
- по комплексной насосной станции бытовых стоков: работы не проводились в соответствии с графиком производства строительных работ.
- по комплексной насосной станции перекачки нефтесодержащих сточных вод с судна-сборщика: работы не проводились в соответствии с графиком производства строительных работ.
- по производственному зданию: работы не проводились в соответствии с графиком производства строительных работ.
- по станции биологической очистки: работы не проводились в соответствии с графиком производства строительных работ.
- по метеостанции: работы не проводились в соответствии с графиком производства строительных работ.
- по котельной с резервуаром дизельного топлива:
а) работы по монтажу тепломеханического оборудования приостановлены в соответствии с графиком производства строительных работ;
б) работы по монтажу отопления и вентиляции приостановлены в соответствии с графиком производства строительных работ.
- по установке обезвоживания осадков: работы не проводились в соответствии с графиком производства строительных работ.
- по зданию столовой:
а) завершены работы по устройству чистового пола в помещениях 102-120 и 131-139.
- по противорадиационному укрытию: работы не проводились в соответствии с графиком производства строительных работ.
-по насосной станции II подъема питьевого водоснабжения: работы не проводились в соответствии с графиком производства строительных работ.
- по тепловым сетям: работы не проводились в соответствии с графиком производства строительных работ.
- по насосной станции пожаротушения с морским водозабором: работы не проводились в соответствии с графиком производства строительных работ.
- по резервуарам запаса воды: работы не проводились в соответствии с графиком производства строительных работ.
Площадка № 2:
- по зданию инсинератора:
а) выполнялись работы по монтажу несущих конструкций дымовой трубы.
Площадка № 1:
- по причалам № 1, 2, 3, 4: работы не проводились в соответствии с графиком производства строительных работ.
- по мачте поста мониторинга разливов нефти: работы не проводились в соответствии с графиком производства строительных работ.
- по наружным сетям электроснабжения и наружного освещения: работы не проводились в соответствии с графиком производства строительных работ.
- по блочным комплексным трансформаторным подстанциям БКТП-1 и БКТП-2: работы не проводились в соответствии с графиком производства строительных работ.
- по хранилищу средств морспецподразделения: работы не проводились в соответствии с графиком производства строительных работ.
- по наружным сетям водопровода и канализации: работы не проводились в соответствии с графиком производства строительных работ.
- по наружным сетям связи и сигнализации: работы не проводились в соответствии с графиком производства строительных работ.
- по мачте высотой 28 метров для размещения антенны УКВ связи: работы не проводились в соответствии с графиком производства строительных работ.
- по бытовому корпусу:
а) работы по монтажу электрооборудования и электроосвещения приостановлены в соответствии с графиком производства строительных работ;
б) завершены работы по установке оконных блоков;
в) выполнялись работы по устройству водоснабжения и канализации здания;
г) выполнялись работы по монтажу индивидуального теплового пункта.
- по комплексной насосной станции перекачки нефтесодержащих сточных вод от обмыва бонов: работы не проводились в соответствии с графиком производства строительных работ.
- по комплексной насосной станции дождевых стоков: работы не проводились в соответствии с графиком производства строительных работ.
- по административному корпусу: работы не проводились в соответствии с графиком производства строительных работ.
- по ремонтной мастерской:
а) выполнялись работы по монтажу вентиляции и отопления;
б) работы по монтажу электрооборудования и электроосвещения приостановлены в соответствии с графиком производства строительных работ.
в) выполнялись работы по монтажу структурированной кабельной системы.
- по зданию мареографа: работы не проводились в соответствии с графиком производства строительных работ.
- по караульному помещению: работы не проводились в соответствии с графиком производства строительных работ.
- по гаражу:
а) работы по устройству полов приостановлены в соответствии с графиком производства строительных работ;
б) выполнялись работы по монтажу индивидуального теплового пункта;
в) выполнялись работы по устройству водоснабжения и канализации гаража.
- по очистным сооружениям дождевых и нефтесодержащих сточных вод: работы не проводились в соответствии с графиком производства строительных работ.
- по очистным сооружениям бытовых сточных вод: работы не проводились в соответствии с графиком производства строительных работ.
- по производственному зданию очистных сооружений нефтесодержащих сточных вод: работы не проводились в соответствии с графиком производства строительных работ.
- по насосной станции очистных сооружений нефтесодержащих сточных вод:
а) работы по монтажу электрооборудования и электроосвещения приостановлены в соответствии с графиком производства строительных работ.
- по комплексной насосной станции бытовых стоков: работы не проводились в соответствии с графиком производства строительных работ.
- по комплексной насосной станции перекачки нефтесодержащих сточных вод с судна-сборщика: работы не проводились в соответствии с графиком производства строительных работ.
- по производственному зданию: работы не проводились в соответствии с графиком производства строительных работ.
- по станции биологической очистки: работы не проводились в соответствии с графиком производства строительных работ.
- по метеостанции: работы не проводились в соответствии с графиком производства строительных работ.
- по котельной с резервуаром дизельного топлива: работы не проводились в соответствии с графиком производства строительных работ.
- по установке обезвоживания осадков: работы не проводились в соответствии с графиком производства строительных работ.
- по зданию столовой:
а) выполнялись работы по устройству отопления и вентиляции.
- по противорадиационному укрытию: работы не проводились в соответствии с графиком производства строительных работ.
- по насосной станции II подъема питьевого водоснабжения: работы не проводились в соответствии с графиком производства строительных работ.
- по тепловым сетям: работы не проводились в соответствии с графиком производства строительных работ.
- по насосной станции пожаротушения с морским водозабором: работы не проводились в соответствии с графиком производства строительных работ.
- по резервуарам запаса воды: работы не проводились в соответствии с графиком производства строительных работ.
Площадка № 2:
- по зданию инсинератора:
а) завершены работы по монтажу несущих конструкций дымовой трубы;
б) выполнялись работы по монтажу ограждающих конструкций стен;
в) выполнялись работы по сборке площадок для обслуживания оборудования и трубопроводов.
Площадка № 1:
- по причалам №№1, 2, 3, 4: работы не проводились в соответствии с графиком производства строительных работ.
- по мачте поста мониторинга разливов нефти: работы не проводились в соответствии с графиком производства строительных работ.
- по наружным сетям электроснабжения и наружного освещения: работы не проводились в соответствии с графиком производства строительных работ.
- по блочным комплексным трансформаторным подстанциям БКТП-1 и БКТП-2: работы не проводились в соответствии с графиком производства строительных работ.
- по хранилищу средств морспецподразделения: работы не проводились в соответствии с графиком производства строительных работ.
- по наружным сетям водопровода и канализации: работы не проводились в соответствии с графиком производства строительных работ.
- по наружным сетям связи и сигнализации: работы не проводились в соответствии с графиком производства строительных работ.
- по мачте высотой 28 метров для размещения антенны УКВ связи: работы не проводились в соответствии с графиком производства строительных работ.
- по бытовому корпусу:
А) выполнялись работы по устройству водоснабжения и канализации здания;
Б) выполнялись работы по монтажу индивидуального теплового пункта.
- по комплексной насосной станции перекачки нефтесодержащих сточных вод от обмыва бонов: работы не проводились в соответствии с графиком производства строительных работ.
- по комплексной насосной станции дождевых стоков: работы не проводились в соответствии с графиком производства строительных работ.
- по административному корпусу: работы не проводились в соответствии с графиком производства строительных работ.
- по ремонтной мастерской:
А) работы по монтажу вентиляции и отопления приостановлены в соответствии с графиком производства строительных работ;
Б) работы по монтажу структурированной кабельной системы приостановлены в соответствии с графиком производства строительных работ.
- по зданию мареографа: работы не проводились в соответствии с графиком производства строительных работ.
- по караульному помещению: работы не проводились в соответствии с графиком производства строительных работ.
- по гаражу:
А) выполнялись работы по монтажу индивидуального теплового пункта;
Б) выполнялись работы по устройству водоснабжения и канализации гаража;
В) завершены работы по установке дверных блоков.
- по очистным сооружениям дождевых и нефтесодержащих сточных вод: работы не проводились в соответствии с графиком производства строительных работ.
- по очистным сооружениям бытовых сточных вод: работы не проводились в соответствии с графиком производства строительных работ.
- по производственному зданию очистных сооружений нефтесодержащих сточных вод: работы не проводились в соответствии с графиком производства строительных работ.
- по насосной станции очистных сооружений нефтесодержащих сточных вод: работы не проводились в соответствии с графиком производства строительных работ.
- по комплексной насосной станции бытовых стоков: работы не проводились в соответствии с графиком производства строительных работ.
- по комплексной насосной станции перекачки нефтесодержащих сточных вод с судна-сборщика: работы не проводились в соответствии с графиком производства строительных работ.
- по производственному зданию: работы не проводились в соответствии с графиком производства строительных работ.
- по станции биологической очистки: работы не проводились в соответствии с графиком производства строительных работ.
- по метеостанции: работы не проводились в соответствии с графиком производства строительных работ.
- по котельной с резервуаром дизельного топлива: работы не проводились в соответствии с графиком производства строительных работ.
- по установке обезвоживания осадков: работы не проводились в соответствии с графиком производства строительных работ.
- по зданию столовой:
А) работы по устройству отопления и вентиляции приостановлены в соответствии с графиком производства строительных работ.
- по противорадиационному укрытию: работы не проводились в соответствии с графиком производства строительных работ.
-по насосной станции II подъема питьевого водоснабжения: работы не проводились в соответствии с графиком производства строительных работ.
- по тепловым сетям: работы не проводились в соответствии с графиком производства строительных работ.
- по насосной станции пожаротушения с морским водозабором: работы не проводились в соответствии с графиком производства строительных работ.
- по резервуарам запаса воды: работы не проводились в соответствии с графиком производства строительных работ.
Площадка № 2:
- по зданию инсинератора:
А) выполнялись работы по монтажу ограждающих конструкций стен;
Б) завершены работы по сборке площадок для обслуживания оборудования и трубопроводов;
В) выполнялись работы по установке дверных и оконных блоков в проемах;
Г) выполнялись работы по устройству кровли;
Д) выполнялись работы по отделке помещения;
Е) выполнялись работы по монтажу технологического оборудования.
Площадка № 1:
- по причалам № 1, 2, 3, 4: работы не проводились в соответствии с графиком производства строительных работ.
- по мачте поста мониторинга разливов нефти: работы не проводились в соответствии с графиком производства строительных работ.
- по наружным сетям электроснабжения и наружного освещения: работы не проводились в соответствии с графиком производства строительных работ.
- по блочным комплексным трансформаторным подстанциям БКТП-1 и БКТП-2: работы не проводились в соответствии с графиком производства строительных работ.
- по хранилищу средств морспецподразделения: работы не проводились в соответствии с графиком производства строительных работ.
- по наружным сетям водопровода и канализации: работы не проводились в соответствии с графиком производства строительных работ.
- по наружным сетям связи и сигнализации работы не проводились в соответствии с графиком производства строительных работ.
- по мачте высотой 28 метров для размещения антенны УКВ связи: работы не проводились в соответствии с графиком производства строительных работ.
- по бытовому корпусу: работы не проводились в соответствии с графиком производства строительных работ
- по комплексной насосной станции перекачки нефтесодержащих сточных вод от обмыва бонов: работы не проводились в соответствии с графиком производства строительных работ.
- по комплексной насосной станции дождевых стоков: работы не проводились в соответствии с графиком производства строительных работ.
- по административному корпусу: работы не проводились в соответствии с графиком производства строительных работ.
- по ремонтной мастерской: работы не проводились в соответствии с графиком производства строительных работ
- по зданию мареографа: работы не проводились в соответствии с графиком производства строительных работ.
- по караульному помещению: работы не проводились в соответствии с графиком производства строительных работ.
- по гаражу: работы не проводились в соответствии с графиком производства строительных работ;
- по очистным сооружениям дождевых и нефтесодержащих сточных вод: работы не проводились в соответствии с графиком производства строительных работ.
- по очистным сооружениям бытовых сточных вод: работы не проводились в соответствии с графиком производства строительных работ.
- по производственному зданию очистных сооружений нефтесодержащих сточных вод: работы не проводились в соответствии с графиком производства строительных работ.
- по насосной станции очистных сооружений нефтесодержащих сточных вод: работы не проводились в соответствии с графиком производства строительных работ.
- по комплексной насосной станции бытовых стоков: работы не проводились в соответствии с графиком производства строительных работ.
- по комплексной насосной станции перекачки нефтесодержащих сточных вод с судна-сборщика: работы не проводились в соответствии с графиком производства строительных работ.
- по производственному зданию: работы не проводились в соответствии с графиком производства строительных работ.
- по станции биологической очистки: работы не проводились в соответствии с графиком производства строительных работ.
- по метеостанции: работы не проводились в соответствии с графиком производства строительных работ.
- по котельной с резервуаром дизельного топлива: работы не проводились в соответствии с графиком производства строительных работ.
- по установке обезвоживания осадков: работы не проводились в соответствии с графиком производства строительных работ.
- по зданию столовой: работы не проводились в соответствии с графиком производства строительных работ.
- по противорадиационному укрытию: работы не проводились в соответствии с графиком производства строительных работ.
- по насосной станции II подъема питьевого водоснабжения: работы не проводились в соответствии с графиком производства строительных работ.
- по тепловым сетям: работы не проводились в соответствии с графиком производства строительных работ.
- по насосной станции пожаротушения с морским водозабором: работы не проводились в соответствии с графиком производства строительных работ.
- по резервуарам запаса воды: работы не проводились в соответствии с графиком производства строительных работ.
Площадка № 2:
- по зданию инсинератора:
А) завершены работы по монтажу ограждающих конструкций стен;
Б) работы по установке дверных и оконных блоков в проемах приостановлены в соответствии с графиком производства строительных работ;
В) выполнялись работы по устройству кровли;
Г) работы по отделке помещения приостановлены в соответствии с графиком производства строительных работ;
Д) выполнялись работы по монтажу технологического оборудования.
Площадка № 1:
- по причалам № 1, 2, 3, 4: работы не проводились в соответствии с графиком производства строительных работ.
- по мачте поста мониторинга разливов нефти: работы не проводились в соответствии с графиком производства строительных работ.
- по наружным сетям электроснабжения и наружного освещения: работы не проводились в соответствии с графиком производства строительных работ.
- по блочным комплексным трансформаторным подстанциям БКТП-1 и БКТП-2: работы не проводились в соответствии с графиком производства строительных работ.
- по хранилищу средств морспецподразделения: работы не проводились в соответствии с графиком производства строительных работ.
- по наружным сетям водопровода и канализации: работы не проводились в соответствии с графиком производства строительных работ.
- по наружным сетям связи и сигнализации: работы не проводились в соответствии с графиком производства строительных работ.
- по мачте высотой 28 метров для размещения антенны УКВ связи: работы не проводились в соответствии с графиком производства строительных работ.
- по бытовому корпусу: работы не проводились в соответствии с графиком производства строительных работ.
- по комплексной насосной станции перекачки нефтесодержащих сточных вод от обмыва бонов: работы не проводились в соответствии с графиком производства строительных работ.
- по комплексной насосной станции дождевых стоков: работы не проводились в соответствии с графиком производства строительных работ.
- по административному корпусу:
А) выполнялись работы по устройству индивидуального теплового пункта.
- по ремонтной мастерской: работы не проводились в соответствии с графиком производства строительных работ.
- по зданию мареографа: работы не проводились в соответствии с графиком производства строительных работ.
- по караульному помещению:
А) выполнялись работы по устройству индивидуального теплового пункта.
- по гаражу: работы не проводились в соответствии с графиком производства строительных работ.
- по очистным сооружениям дождевых и нефтесодержащих сточных вод: работы не проводились в соответствии с графиком производства строительных работ.
- по очистным сооружениям бытовых сточных вод: работы не проводились в соответствии с графиком производства строительных работ.
- по производственному зданию очистных сооружений нефтесодержащих сточных вод: работы не проводились в соответствии с графиком производства строительных работ.
- по насосной станции очистных сооружений нефтесодержащих сточных вод:
А) выполнялись работы по устройству металлоконструкций площадок обслуживания.
- по комплексной насосной станции бытовых стоков: работы не проводились в соответствии с графиком производства строительных работ.
- по комплексной насосной станции перекачки нефтесодержащих сточных вод с судна-сборщика: работы не проводились в соответствии с графиком производства строительных работ.
- по производственному зданию: работы не проводились в соответствии с графиком производства строительных работ.
- по станции биологической очистки: работы не проводились в соответствии с графиком производства строительных работ.
- по метеостанции: работы не проводились в соответствии с графиком производства строительных работ.
- по котельной с резервуаром дизельного топлива:
А) возобновлены работы по устройству электроснабжения, освещения и автоматизации склада топлива;
Б) возобновлены работы по монтажу тепломеханического оборудования;
В) возобновлены работы по устройству отопления и вентиляции.
- по установке обезвоживания осадков: работы не проводились в соответствии с графиком производства строительных работ.
- по зданию столовой:
А) выполнялись работы по устройству индивидуального теплового пункта.
- по противорадиационному укрытию: работы не проводились в соответствии с графиком производства строительных работ.
-по насосной станции II подъема питьевого водоснабжения: работы не проводились в соответствии с графиком производства строительных работ.
- по тепловым сетям: работы не проводились в соответствии с графиком производства строительных работ.
- по насосной станции пожаротушения с морским водозабором: работы не проводились в соответствии с графиком производства строительных работ.
- по резервуарам запаса воды: работы не проводились в соответствии с графиком производства строительных работ.
Площадка № 2:
- по зданию инсинератора:
А) выполнялись работы по устройству кровли;
Б) выполнялись работы по монтажу технологического оборудования;
В) выполнялись работы по устройству водопровода и канализации;
Г) выполнялись работы по устройству электроосвещения;
Д) выполнялись работы по монтажу электрооборудования.
Площадка № 1:
- по причалам № 1, 2, 3, 4: работы не проводились в соответствии с графиком производства строительных работ.
- по мачте поста мониторинга разливов нефти: работы не проводились в соответствии с графиком производства строительных работ.
- по наружным сетям электроснабжения и наружного освещения: работы не проводились в соответствии с графиком производства строительных работ.
- по блочным комплексным трансформаторным подстанциям БКТП-1 и БКТП-2: работы не проводились в соответствии с графиком производства строительных работ.
- по хранилищу средств морспецподразделения: работы не проводились в соответствии с графиком производства строительных работ.
- по наружным сетям водопровода и канализации: работы не проводились в соответствии с графиком производства строительных работ.
- по наружным сетям связи и сигнализации: работы не проводились в соответствии с графиком производства строительных работ.
- по мачте высотой 28 метров для размещения антенны УКВ связи: работы не проводились в соответствии с графиком производства строительных работ.
- по бытовому корпусу: работы не проводились в соответствии с графиком производства строительных работ.
- по комплексной насосной станции перекачки нефтесодержащих сточных вод от обмыва бонов: работы не проводились в соответствии с графиком производства строительных работ.
- по комплексной насосной станции дождевых стоков: работы не проводились в соответствии с графиком производства строительных работ.
- по административному корпусу:
А) приостановлены работы по устройству индивидуального теплового пункта в соответствии с графиком производства строительных работ.
- по ремонтной мастерской: работы не проводились в соответствии с графиком производства строительных работ.
- по зданию мареографа: работы не проводились в соответствии с графиком производства строительных работ.
- по караульному помещению:
А) приостановлены работы по устройству индивидуального теплового пункта в соответствии с графиком производства строительных работ.
- по гаражу: работы не проводились в соответствии с графиком производства строительных работ.
- по очистным сооружениям дождевых и нефтесодержащих сточных вод: работы не проводились в соответствии с графиком производства строительных работ.
- по очистным сооружениям бытовых сточных вод: работы не проводились в соответствии с графиком производства строительных работ.
- по производственному зданию очистных сооружений нефтесодержащих сточных вод: работы не проводились в соответствии с графиком производства строительных работ.
- по насосной станции очистных сооружений нефтесодержащих сточных вод:
А) приостановлены работы по устройству металлоконструкций площадок обслуживания в соответствии с графиком производства строительных работ.
- по комплексной насосной станции бытовых стоков: работы не проводились в соответствии с графиком производства строительных работ.
- по комплексной насосной станции перекачки нефтесодержащих сточных вод с судна-сборщика: работы не проводились в соответствии с графиком производства строительных работ.
- по производственному зданию: работы не проводились в соответствии с графиком производства строительных работ.
- по станции биологической очистки: работы не проводились в соответствии с графиком производства строительных работ.
- по метеостанции: работы не проводились в соответствии с графиком производства строительных работ.
- по котельной с резервуаром дизельного топлива:
А) приостановлены работы по устройству электроснабжения, освещения и автоматизации склада топлива в соответствии с графиком производства строительных работ;
Б) приостановлены работы по монтажу тепломеханического оборудования в соответствии с графиком производства строительных работ;
В) приостановлены работы по устройству отопления и вентиляции в соответствии с графиком производства строительных работ.
- по установке обезвоживания осадков: работы не проводились в соответствии с графиком производства строительных работ.
- по зданию столовой:
А) приостановлены работы по устройству индивидуального теплового пункта в соответствии с графиком производства строительных работ.
- по противорадиационному укрытию: работы не проводились в соответствии с графиком производства строительных работ.
-по насосной станции II подъема питьевого водоснабжения: работы не проводились в соответствии с графиком производства строительных работ.
- по тепловым сетям: работы не проводились в соответствии с графиком производства строительных работ.
- по насосной станции пожаротушения с морским водозабором: работы не проводились в соответствии с графиком производства строительных работ.
- по резервуарам запаса воды: работы не проводились в соответствии с графиком производства строительных работ.
Площадка № 2:
- по зданию инсинератора:
А) завершены работы по устройству кровли;
Б) приостановлены работы по монтажу технологического оборудования в соответствии с графиком производства строительных работ;
В) приостановлены работы по устройству водопровода и канализации в соответствии с графиком производства строительных работ;
Г) приостановлены работы по устройству электроосвещения в соответствии с графиком производства строительных работ;
Д) выполнялись работы по монтажу электрооборудования.
Площадка № 1:
- по причалам № 1, 2, 3, 4: работы не проводились в соответствии с графиком производства строительных работ.
- по мачте поста мониторинга разливов нефти: работы не проводились в соответствии с графиком производства строительных работ.
- по наружным сетям электроснабжения и наружного освещения: работы не проводились в соответствии с графиком производства строительных работ.
- по блочным комплексным трансформаторным подстанциям БКТП-1 и БКТП-2:
А) получены разрешения Северо-Западного управления Ростехнадзора от 26.08.2016 № 30-3817/РД на допуск в эксплуатацию объекта БКТП-2 и от 26.08.2016 № 30-3732/РД на допуск в эксплуатацию объекта БКТП-1.
- по хранилищу средств морспецподразделения: работы не проводились в соответствии с графиком производства строительных работ.
- по наружным сетям водопровода и канализации: работы не проводились в соответствии с графиком производства строительных работ.
- по наружным сетям связи и сигнализации: работы не проводились в соответствии с графиком производства строительных работ.
- по мачте высотой 28 метров для размещения антенны УКВ связи: работы не проводились в соответствии с графиком производства строительных работ.
- по бытовому корпусу: работы не проводились в соответствии с графиком производства строительных работ.
- по комплексной насосной станции перекачки нефтесодержащих сточных вод от обмыва бонов: работы не проводились в соответствии с графиком производства строительных работ.
- по комплексной насосной станции дождевых стоков: работы не проводились в соответствии с графиком производства строительных работ.
- по административному корпусу:
А) выполнялись работы по устройству индивидуального теплового пункта в соответствии с графиком производства строительных работ;
Б) выполнялись работы по устройству водоснабжения и канализации здания;
В) выполнялись работы по устройству отопления и вентиляции;
Г) выполнялись работы по устройству электрооборудования и электроосвещения;
Д) выполнялись работы по устройству систем радиофикации, электрочасофикации, телевидения.
- по ремонтной мастерской: работы не проводились в соответствии с графиком производства строительных работ.
- по зданию мареографа: работы не проводились в соответствии с графиком производства строительных работ.
- по караульному помещению:
А) выполнялись работы по устройству водоснабжения и канализации;
Б) выполнялись работы по устройству полов и внутренние отделочные работы;
В) выполнялись работы по устройству систем сигнализации, оповещения, электрочасофикации.
- по гаражу: работы не проводились в соответствии с графиком производства строительных работ.
- по очистным сооружениям дождевых и нефтесодержащих сточных вод: работы не проводились в соответствии с графиком производства строительных работ.
- по очистным сооружениям бытовых сточных вод: работы не проводились в соответствии с графиком производства строительных работ.
- по производственному зданию очистных сооружений нефтесодержащих сточных вод: работы не проводились в соответствии с графиком производства строительных работ.
- по насосной станции очистных сооружений нефтесодержащих сточных вод: работы не проводились в соответствии с графиком производства строительных работ.
- по комплексной насосной станции бытовых стоков: работы не проводились в соответствии с графиком производства строительных работ.
- по комплексной насосной станции перекачки нефтесодержащих сточных вод с судна-сборщика: работы не проводились в соответствии с графиком производства строительных работ.
- по производственному зданию: работы не проводились в соответствии с графиком производства строительных работ.
- по станции биологической очистки: работы не проводились в соответствии с графиком производства строительных работ.
- по метеостанции: работы не проводились в соответствии с графиком производства строительных работ.
- по котельной с резервуаром дизельного топлива:
А) выполнялись работы по монтажу тепломеханического оборудования.
- по установке обезвоживания осадков: работы не проводились в соответствии с графиком производства строительных работ.
- по зданию столовой:
А) выполнялись работы по устройству индивидуального теплового пункта (ИТП);
Б) выполнялись работы по устройству отопления и вентиляции;
В) выполнялись работы по устройству автоматизации ИТП.
- по противорадиационному укрытию: работы не проводились в соответствии с графиком производства строительных работ.
-по насосной станции II подъема питьевого водоснабжения: работы не проводились в соответствии с графиком производства строительных работ.
- по тепловым сетям: работы не проводились в соответствии с графиком производства строительных работ.
- по насосной станции пожаротушения с морским водозабором: работы не проводились в соответствии с графиком производства строительных работ.
- по резервуарам запаса воды: работы не проводились в соответствии с графиком производства строительных работ.
Площадка № 2:
- по зданию инсинератора:
А) выполнялись работы по монтажу электрооборудования;
Б) завершены работы по футеровке;
В) выполнялись работы по устройству технологических трубопроводов.
- по расходному складу топлива при инсинераторе:
А) выполнялись работы по устройству плиты пола и опор под резервуары;
Б) выполнялись работы по устройству фундаментов трассы технологических трубопроводов.
- по наружным сетям водопровода и канализации:
А) выполнялись работы по устройству хозяйственно-питьевого водопровода.
Площадка № 1:
- по причалам № 1, 2, 3, 4: работы не проводились в соответствии с графиком производства строительных работ.
- по мачте поста мониторинга разливов нефти: работы не проводились в соответствии с графиком производства строительных работ.
- по наружным сетям электроснабжения и наружного освещения:
а) выполнялись работы по молниезащите сооружений на площадке № 1.
- по блочным комплексным трансформаторным подстанциям БКТП-1 и БКТП-2: работы не проводились в соответствии с графиком производства строительных работ.
- по хранилищу средств морспецподразделения: работы не проводились в соответствии с графиком производства строительных работ.
- по наружным сетям водопровода и канализации: работы не проводились в соответствии с графиком производства строительных работ.
- по наружным сетям связи и сигнализации: работы не проводились в соответствии с графиком производства строительных работ.
- по мачте высотой 28 метров для размещения антенны УКВ связи: работы не проводились в соответствии с графиком производства строительных работ.
- по бытовому корпусу: работы не проводились в соответствии с графиком производства строительных работ.
- по комплексной насосной станции перекачки нефтесодержащих сточных вод от обмыва бонов: работы не проводились в соответствии с графиком производства строительных работ.
- по комплексной насосной станции дождевых стоков: работы не проводились в соответствии с графиком производства строительных работ.
- по административному корпусу:
А) выполнялись работы по устройству индивидуального теплового пункта;
Б) работы по устройству водоснабжения и канализации здания приостановлены в соответствии с графиком производства строительных работ;
В) выполнялись работы по устройству отопления и вентиляции;
Г) работы по устройству электрооборудования и электроосвещения приостановлены в соответствии с графиком производства строительных работ;
Д) работы по устройству систем радиофикации, электрочасофикации, телевидения приостановлены в соответствии с графиком производства строительных работ.
- по ремонтной мастерской: работы не проводились в соответствии с графиком производства строительных работ.
- по зданию мареографа: работы не проводились в соответствии с графиком производства строительных работ.
- по караульному помещению:
А) работы по устройству водоснабжения и канализации приостановлены в соответствии с графиком производства строительных работ;
Б) работы по устройству полов и внутренние отделочные работы приостановлены в соответствии с графиком производства строительных работ;
В) работы по устройству систем сигнализации, оповещения, электрочасофикации приостановлены в соответствии с графиком производства строительных работ;
Г) выполнялись работы по устройству отопления и вентиляции;
Б) выполнялись работы по устройству индивидуального теплового пункта.
- по гаражу: работы не проводились в соответствии с графиком производства строительных работ.
- по очистным сооружениям дождевых и нефтесодержащих сточных вод: работы не проводились в соответствии с графиком производства строительных работ.
- по очистным сооружениям бытовых сточных вод: работы не проводились в соответствии с графиком производства строительных работ.
- по производственному зданию очистных сооружений нефтесодержащих сточных вод: работы не проводились в соответствии с графиком производства строительных работ.
- по насосной станции очистных сооружений нефтесодержащих сточных вод: работы не проводились в соответствии с графиком производства строительных работ.
- по комплексной насосной станции бытовых стоков: работы не проводились в соответствии с графиком производства строительных работ.
- по комплексной насосной станции перекачки нефтесодержащих сточных вод с судна-сборщика: работы не проводились в соответствии с графиком производства строительных работ.
- по производственному зданию: работы не проводились в соответствии с графиком производства строительных работ.
- по станции биологической очистки: работы не проводились в соответствии с графиком производства строительных работ.
- по метеостанции: работы не проводились в соответствии с графиком производства строительных работ.
- по котельной с резервуаром дизельного топлива:
А) работы по монтажу тепломеханического оборудования приостановлены в соответствии с графиком производства строительных работ;
Б) завершены работы по устройству электроснабжения, освещения и автоматизации склада топлива.
- по установке обезвоживания осадков: работы не проводились в соответствии с графиком производства строительных работ.
- по зданию столовой:
А) работы по устройству индивидуального теплового пункта приостановлены в соответствии с графиком производства строительных работ;
Б) работы по устройству отопления и вентиляции приостановлены в соответствии с графиком производства строительных работ;
В) работы по устройству автоматизации ИТП приостановлены в соответствии с графиком производства строительных работ.
- по противорадиационному укрытию: работы не проводились в соответствии с графиком производства строительных работ.
-по насосной станции II подъема питьевого водоснабжения: работы не проводились в соответствии с графиком производства строительных работ.
- по тепловым сетям: работы не проводились в соответствии с графиком производства строительных работ.
- по насосной станции пожаротушения с морским водозабором: работы не проводились в соответствии с графиком производства строительных работ.
- по резервуарам запаса воды: работы не проводились в соответствии с графиком производства строительных работ.
Площадка № 2:
- по зданию инсинератора:
А) выполнялись работы по монтажу электрооборудования;
Б) выполнялись работы по устройству технологических трубопроводов;
В) выполнялись работы по устройству сетей связи;
Г) выполнялись работы по устройству электроосвещения;
Д) выполнялись работы по устройству водопровода и канализации.
- по расходному складу топлива при инсинераторе:
А) выполнялись работы по устройству плиты пола и опор под резервуары;
Б) работы по устройству фундаментов трассы технологических трубопроводов приостановлены в соответствии с графиком производства строительных работ;
В) выполнялись работы по монтажу металлоконструкций эстакады инженерных коммуникаций;
Г) выполнялись работы по устройству площадки сливоналивных устройств;
Д) выполнялись работы по монтажу технологического оборудования и трубопроводов.
- наружные сети водопровода и канализации:
А) работы по устройству хозяйственно-питьевого водопровода приостановлены в соответствии с графиком производства строительных работ.
Площадка № 1:
- по причалам №№1, 2, 3, 4: работы не проводились в соответствии с графиком производства строительных работ.
- по мачте поста мониторинга разливов нефти: работы не проводились в соответствии с графиком производства строительных работ.
- по наружным сетям электроснабжения и наружного освещения:
а) выполнялись работы по молниезащите сооружений на площадке №1.
- по блочным комплексным трансформаторным подстанциям БКТП-1 и БКТП-2: работы не проводились в соответствии с графиком производства строительных работ.
- по хранилищу средств морспецподразделения: работы не проводились в соответствии с графиком производства строительных работ.
- по наружным сетям водопровода и канализации: работы не проводились в соответствии с графиком производства строительных работ.
- по наружным сетям связи и сигнализации: работы не проводились в соответствии с графиком производства строительных работ.
- по мачте высотой 28 метров для размещения антенны УКВ связи: работы не проводились в соответствии с графиком производства строительных работ.
- по бытовому корпусу: работы не проводились в соответствии с графиком производства строительных работ.
- по комплексной насосной станции перекачки нефтесодержащих сточных вод от обмыва бонов: работы не проводились в соответствии с графиком производства строительных работ.
- по комплексной насосной станции дождевых стоков: работы не проводились в соответствии с графиком производства строительных работ.
- по административному корпусу:
А) выполнялись работы по устройству индивидуального теплового пункта;
Б) выполнялись работы по устройству водоснабжения и канализации здания;
В) выполнялись работы по устройству отопления и вентиляции;
Г) выполнялись работы по устройству электрооборудования и электроосвещения здания;
Д) работы по устройству систем радиофикации, электрочасофикации, телевидения приостановлены в соответствии с графиком производства строительных работ;
Е) выполнялись работы по устройству сетей связи и автоматики.
- по ремонтной мастерской: работы не проводились в соответствии с графиком производства строительных работ.
- по зданию мареографа: работы не проводились в соответствии с графиком производства строительных работ.
- по караульному помещению:
А) выполнялись работы по устройству водоснабжения и канализации;
Б) работы по устройству полов и внутренние отделочные работы приостановлены в соответствии с графиком производства строительных работ;
В) работы по устройству систем сигнализации, оповещения, электрочасофикации приостановлены в соответствии с графиком производства строительных работ;
Г) выполнялись работы по устройству отопления и вентиляции;
Д) выполнялись работы по устройству индивидуального теплового пункта;
- по гаражу: работы не проводились в соответствии с графиком производства строительных работ.
- по очистным сооружениям дождевых и нефтесодержащих сточных вод: работы не проводились в соответствии с графиком производства строительных работ.
- по очистным сооружениям бытовых сточных вод: работы не проводились в соответствии с графиком производства строительных работ.
- по производственному зданию очистных сооружений нефтесодержащих сточных вод: работы не проводились в соответствии с графиком производства строительных работ.
- по насосной станции очистных сооружений нефтесодержащих сточных вод: работы не проводились в соответствии с графиком производства строительных работ.
- по комплексной насосной станции бытовых стоков: работы не проводились в соответствии с графиком производства строительных работ.
- по комплексной насосной станции перекачки нефтесодержащих сточных вод с судна-сборщика: работы не проводились в соответствии с графиком производства строительных работ.
- по производственному зданию: работы не проводились в соответствии с графиком производства строительных работ.
- по станции биологической очистки: работы не проводились в соответствии с графиком производства строительных работ.
- по метеостанции: работы не проводились в соответствии с графиком производства строительных работ.
- по котельной с резервуаром дизельного топлива:
А) работы по монтажу тепломеханического оборудования приостановлены в соответствии с графиком производства строительных работ;
- по установке обезвоживания осадков: работы не проводились в соответствии с графиком производства строительных работ.
- по зданию столовой:
А) выполнялись работы по устройству индивидуального теплового пункта;
Б) выполнялись работы по устройству отопления и вентиляции;
В) выполнялись работы по устройству автоматизации ИТП;
Г) выполнялись работы по устройству водоснабжения и канализации;
Д) выполнялись работы по монтажу электрооборудования;
Е) выполнялись работы по устройству сетей связи и автоматики.
- по противорадиационному укрытию: работы не проводились в соответствии с графиком производства строительных работ.
-по насосной станции II подъема питьевого водоснабжения: работы не проводились в соответствии с графиком производства строительных работ.
- по тепловым сетям: работы не проводились в соответствии с графиком производства строительных работ.
- по насосной станции пожаротушения с морским водозабором: работы не проводились в соответствии с графиком производства строительных работ.
- по резервуарам запаса воды: работы не проводились в соответствии с графиком производства строительных работ.
Площадка № 2:
- по зданию инсинератора:
А) выполнялись работы по монтажу электрооборудования;
Б) выполнялись работы по устройству технологических трубопроводов;
В) выполнялись работы по устройству сетей связи;
Г) выполнялись работы по устройству электроосвещения;
Д) работы по устройству водопровода и канализации приостановлены в соответствии с графиком производства строительных работ.
- по расходному складу топлива при инсинераторе:
А) работы по устройству плиты пола и опор под резервуары приостановлены в соответствии с графиком производства строительных работ;
Б) выполнялись работы по устройству фундаментов трассы технологических трубопроводов;
В) выполнялись работы по монтажу металлоконструкций эстакады инженерных коммуникаций;
Г) выполнялись работы по устройству площадки сливоналивных устройств;
Д) выполнялись работы по монтажу технологического оборудования и трубопроводов.
- наружные сети водопровода и канализации:
А) работы по устройству хозяйственно-питьевого водопровода приостановлены в соответствии с графиком производства строительных работ.Площадка № 1:
- по причалам № 1, 2, 3, 4: работы не проводились в соответствии с графиком производства строительных работ.
- по мачте поста мониторинга разливов нефти: работы не проводились в соответствии с графиком производства строительных работ.
- по наружным сетям электроснабжения и наружного освещения работы приостановлены в соответствии с графиком производства строительных работ.
- по блочным комплексным трансформаторным подстанциям БКТП-1 и БКТП-2:
А) завершены работы по устройству отмостки.
Б) все строительно-монтажные работы по объекту завершены.
В) объекты готовы к приемке приемочной комиссией в составе единого имущественного комплекса.
- по хранилищу средств морспецподразделения:
А) завершены работы по устройству отопления и вентиляции.
Б) все строительно-монтажные работы по объекту завершены.
В) объект готов к приемке приемочной комиссией в составе единого имущественного комплекса.
- по наружным сетям водопровода и канализации: работы не проводились в соответствии с графиком производства строительных работ.
- по наружным сетям связи и сигнализации: работы не проводились в соответствии с графиком производства строительных работ.
- по мачте высотой 28 метров для размещения антенны УКВ связи: работы не проводились в соответствии с графиком производства строительных работ.
- по бытовому корпусу: работы не проводились в соответствии с графиком производства строительных работ.
- по комплексной насосной станции перекачки нефтесодержащих сточных вод от обмыва бонов: работы не проводились в соответствии с графиком производства строительных работ.
- по комплексной насосной станции дождевых стоков: работы не проводились в соответствии с графиком производства строительных работ.
- по административному корпусу:
А) выполнялись работы по устройству индивидуального теплового пункта;
Б) работы по устройству отопления и вентиляции приостановлены в соответствии с графиком производства строительных работ;
В) выполнялись работы по устройству электрооборудования и электроосвещения здания;
Г) выполнялись работы по устройству сетей связи и автоматики.
- по ремонтной мастерской: работы не проводились в соответствии с графиком производства строительных работ.
- по зданию мареографа: работы не проводились в соответствии с графиком производства строительных работ.
- по караульному помещению:
А) выполнялись работы по устройству отопления и вентиляции;
Б) выполнялись работы по устройству индивидуального теплового пункта.
- по гаражу: работы не проводились в соответствии с графиком производства строительных работ.
- по очистным сооружениям дождевых и нефтесодержащих сточных вод: работы не проводились в соответствии с графиком производства строительных работ.
- по очистным сооружениям бытовых сточных вод: работы не проводились в соответствии с графиком производства строительных работ.
- по производственному зданию очистных сооружений нефтесодержащих сточных вод: работы не проводились в соответствии с графиком производства строительных работ.
- по насосной станции очистных сооружений нефтесодержащих сточных вод: работы не проводились в соответствии с графиком производства строительных работ.
- по комплексной насосной станции бытовых стоков: работы не проводились в соответствии с графиком производства строительных работ.
- по комплексной насосной станции перекачки нефтесодержащих сточных вод с судна-сборщика: работы не проводились в соответствии с графиком производства строительных работ.
- по производственному зданию: работы не проводились в соответствии с графиком производства строительных работ.
- по станции биологической очистки: работы не проводились в соответствии с графиком производства строительных работ.
- по метеостанции: работы не проводились в соответствии с графиком производства строительных работ.
- по котельной с резервуаром дизельного топлива: работы не проводились в соответствии с графиком производства строительных работ.
- по установке обезвоживания осадков: работы не проводились в соответствии с графиком производства строительных работ.
- по зданию столовой:
А) выполнялись работы по устройству автоматизации ИТП.
- по противорадиационному укрытию: работы не проводились в соответствии с графиком производства строительных работ.
-по насосной станции II подъема питьевого водоснабжения: работы не проводились в соответствии с графиком производства строительных работ.
- по тепловым сетям: работы не проводились в соответствии с графиком производства строительных работ.
- по насосной станции пожаротушения с морским водозабором: работы не проводились в соответствии с графиком производства строительных работ.
- по резервуарам запаса воды: работы не проводились в соответствии с графиком производства строительных работ.
Площадка № 2:
- по зданию инсинератора:
А) работы по монтажу электрооборудования приостановлены в соответствии с графиком производства строительных работ;
Б) работы по устройству технологических трубопроводов приостановлены в соответствии с графиком производства строительных работ;
В) работы по устройству сетей связи приостановлены в соответствии с графиком производства строительных работ;
Г) работы по устройству электроосвещения приостановлены в соответствии с графиком производства строительных работ;
Д) работы по устройству водопровода и канализации приостановлены в соответствии с графиком производства строительных работ.
- по расходному складу топлива при инсинераторе:
А) завершены работы по монтажу металлоконструкций эстакады инженерных коммуникаций;
Б) выполнялись работы по устройству площадки сливоналивных устройств;
В) работы по монтажу технологического оборудования и трубопроводов приостановлены в соответствии с графиком производства строительных работ.
- наружные сети водопровода и канализации: работы не проводились в соответствии с графиком производства строительных работ.
- в связи с решением Арбитражного суда города Санкт-Петербурга и Ленинградской области от 31.10.2016 по делу № А56-77467/2015 о признании подрядной организации – АО «ПСТ» – несостоятельной (банкротом) и введении в отношении нее процедуры банкротства – конкурсного производства, все работы на площадках № 1 и № 2 приостановлены.
- в соответствии с заявлением от 23.01.2017 № 23/01-ПСТ конкурсного управляющего, представляющего интересы АО «ПСТ», об отказе от исполнения АО «ПСТ» государственного контракта от 14.12.2013 № 54-ГК/12 года и о его расторжении, все работы на площадках № 1 и № 2 прекращены.
- работы не выполнялись в связи с банкротством подрядной организации и прекращением действия государственного контракта.
- работы не выполнялись в связи с банкротством подрядной организации и прекращением действия государственного контракта.
- заключен договор от 20.08.2019 № 19-321 ОКСиР/У между ФГУП «Росморпорт» и ООО «НПК «МорТрансНИИПроект» на выполнение работ по разработке проектной документации в целях выделения в отдельный этап строительства гидротехнических сооружений и инженерных сетей площадки № 1 в объеме, необходимом для их эксплуатации, и приведения проектной документации, выполненной в 2008 году, в соответствие с действующей нормативно-правовой базой, а также в связи с внесениями изменений, необходимость которых возникла в процессе строительства объекта.
- работы не выполнялись в связи с банкротством подрядной организации и прекращением действия государственного контракта.
- проектной организацией выполнялись работы по обследованию зданий и сооружений, а также инженерные изыскания на площадке № 1 и площадке № 2.
- выполнялись работы по обследованию зданий и сооружений;
- завершены инженерные изыскания на площадке № 1 и площадке № 2.
- завершены работы по обследованию зданий и сооружений.
- выполнялись работы по разработке проектной документации.
- выполнялись работы по разработке проектной документации;
- проектно-сметная документация и результаты инженерных изысканий переданы на рассмотрение государственной экспертизы в ФАУ «Главгосэкспертиза России».
- выполнялись работы по разработке проектной документации;
- получено положительное заключение государственной экспертизы от 12.01.2022 № 47-1-1-3-000757-2022, утвержденное ФАУ «Главгосэкспертиза России», о соответствии результатов инженерных изысканий требованиям технических регламентов, соответствии проектной документации установленным требованиям, и достоверности определения сметной стоимости на строительство объекта.
- завершены работы по разработке проектной документации;
- выполнялись работы по получению разрешения на строительство;
- выполнялись работы по подготовке и проведению конкурсных процедур по отбору подрядной организации.
- выполнялись работы по получению разрешения на строительство;
- выполнялись работы по подготовке и проведению конкурсных процедур по отбору подрядной организации.
- получено разрешение Росморречфлота от 12.08.2022 № 47-RU47407202-ВC-39/60-2022 на строительство объекта;
- выполнялись работы по подготовке и проведению конкурсных процедур по отбору подрядной организации.
- выполнялись работы по подготовке и проведению конкурсных процедур по отбору подрядной организации.
- завершены работы по подготовке и проведению конкурентных процедур по отбору подрядной организации;
- заключен договор с подрядной организацией, отобранной по итогам проведения конкурентных процедур, на проведение работ по разработке рабочей документации и выполнению строительно-монтажных работ;
- завершены работы по передаче подрядной организации строительной площадки.
- выполнялись подготовительные работы.
- выполнялись работы по разработке рабочей документации;
- выполнялись подготовительные работы;
- выполнялись работы по устройству ограждения строительной площадки.
- выполнялись работы по разработке рабочей документации;
- завершены подготовительные работы;
- завершены работы по устройству ограждения строительной площадки;
- завершены работы по демонтажу опор временного электроснабжения на площадке № 1;
- выполнялись работы по отделке помещений в здании служб капитана порта.
- выполнялись работы по разработке рабочей документации;
- выполнялись работы по отделке помещений в здании служб капитана порта;
- выполнялись работы по отделке караульного помещения;
- выполнялись работы по промывке и дефектовке наружных сетей водопровода и канализации на площадке № 1;
- выполнялись работы по очистке лотков на причале № 3;
- выполнялись работы по очистке лотков на причале № 4;
- выполнялись работы по очистке лотков на оградительном моле с причалом № 5.
Площадка № 1
- выполнялись работы по разработке рабочей документации;
- завершены работы по отделке помещений в здании служб капитана порта;
- выполнялись работы по отделке караульного помещения;
- выполнялись работы по промывке и дефектовке сетей дождевой канализации;
- завершены работы по очистке лотков на причале № 3;
- завершены работы по очистке лотков на причале № 4;
- выполнялись работы по очистке лотков на оградительном моле с причалом № 5;
- выполнялись работы по гидроизоляции кровли очистных сооружений дождевых и нефтесодержащих сточных вод.
Площадка № 2
- выполнялись работы по подготовке основания фундамента под санитарно-бытовой корпус;
- выполнялись работы по снятию растительного слоя почвы для дальнейшей отсыпки территории песком.
Площадка № 1
- выполнялись работы по разработке рабочей документации;
- выполнялись работы по отделке караульного помещения;
- выполнялись работы по промывке и дефектовке сетей дождевой канализации;
- завершены работы по очистке лотков на оградительном моле с причалом № 5;
- завершены работы по гидроизоляции кровли очистных сооружений дождевых и нефтесодержащих сточных вод;
- завершен демонтаж 2-х паровых котлов в котельной с резервуарами дизельного топлива;
- завершен демонтаж колесоотбойного бруса на оградительном моле с причалом № 5 и причалом № 6;
- выполнялись подготовительные работы на причале № 6 оградительного мола по креплению отбойных устройств;
- выполнялись работы по гидроизоляции кровли гаража.
Площадка № 2
- завершены работы по подготовке основания фундамента под санитарно-бытовой корпус;
- завершены работы по снятию растительного слоя почвы для дальнейшей отсыпки территории песком;
- выполнялись работы по отсыпке территории объекта в объеме 6 тыс. куб. м песка.
Площадка № 1
- выполнялись работы по разработке рабочей документации;
- выполнялись работы по отделке караульного помещения;
- завершены работы по промывке и дефектовке сетей дождевой канализации;
- завершены подготовительные работы на причале № 6 оградительного мола по креплению отбойных устройств;
- завершены работы по гидроизоляции кровли гаража;
- выполнялись работы по ремонту железобетонного оголовка причала № 6;
- выполнялись работы по устранению просадки причала № 5;
- выполнялись работы по отделке административно-бытового корпуса;
- выполнялись работы по отделке здания служб капитана порта.
Площадка № 2
- выполнялись работы по отсыпке территории в объеме 1,5 тыс. куб. м песка;
- выполнялись работы по устройству фундамента насосной станции производственно-пожарного водоснабжения;
- выполнялись работы по устройству фундамента санитарно-бытового корпуса.
Площадка № 1
- выполнялись работы по разработке рабочей документации;
- выполнялись работы по отделке караульного помещения;
- выполнялись работы по ремонту железобетонных оголовков причалов № 6А и № 6Б;
- выполнялись работы по устранению просадки причала № 5;
- выполнялись работы по отделке административно-бытового корпуса;
- выполнялись работы по отделке здания служб капитана порта.
Площадка № 2
- выполнялись работы по отсыпке территории в объеме 0,3 тыс. куб. м песка;
- завершены работы по устройству фундамента насосной станции производственно-пожарного водоснабжения;
- завершены работы по устройству фундамента санитарно-бытового корпуса;
- выполнялись работы по кладке стен санитарно-бытового корпуса;
- выполнялись работы по устройству основания пожарного проезда.
Площадка № 1
- выполнялись работы по разработке рабочей документации;
- выполнялись работы по отделке караульного помещения;
- выполнялись работы по ремонту железобетонных оголовков причалов № 6А и № 6Б;
- выполнялись работы по устранению просадки причала № 5;
- выполнялись работы по отделке административно-бытового корпуса;
- выполнялись работы по отделке здания служб капитана порта;
- выполнялись работы по ремонту наружных сетей водопровода и канализации;
- завершены работы по монтажу 14 ед. навесных конусных отбойных устройств и 4 ед. цилиндрических отбойных устройств на причале № 6А;
- завершены работы по монтажу 16 ед. навесных конусных отбойных устройств на причале № 6Б;
- выполнялись работы по укладке асфальта на причалах № 6А и № 6Б и на проездах к площадке базы обеспечивающего флота.
Площадка № 2
- работы по отсыпке территории приостановлены в соответствии с графиком производства строительно-монтажных работ;
- завершены работы по кладке стен санитарно-бытового корпуса;
- завершены работы по устройству основания пожарного проезда;
- выполнялись работы по устройству полов в сооружении насосной станции производственно-противопожарного водоснабжения.
Площадка № 1
- выполнялись работы по разработке рабочей документации;
- выполнялись работы по отделке караульного помещения;
- завершены работы по ремонту железобетонных оголовков причалов № 6А и № 6Б;
- выполнялись работы по устранению просадки причала № 5;
- выполнялись работы по отделке административно-бытового корпуса;
- выполнялись работы по усилению фундамента административно-бытового корпуса;
- выполнялись работы по антикоррозийному покрытию металлических лестниц и поручней на причалах № 6А и № 6Б;
- выполнялись работы по антикоррозийному покрытию металлических элементов обустройства на берегоукреплении;
- выполнялись работы по отделке здания служб капитана порта;
- выполнялись работы по ремонту наружных сетей водопровода и канализации;
- выполнялись работы по укладке асфальта на причалах № 6А и № 6Б и на проездах к площадке базы обеспечивающего флота;
- выполнялись работы по устройству дренажных отверстий кабельного лотка причала № 5.
Площадка № 2
- выполнялись работы по отсыпке территории в объеме 200 куб. м;
- завершены работы по устройству полов в сооружении насосной станции производственно-противопожарного водоснабжения;
- выполнялись работы по заливке полов в сооружении насосной станции производственно-противопожарного водоснабжения.
Площадка № 1
- выполнялись работы по разработке рабочей документации;
- выполнялись работы по отделке караульного помещения;
- завершены работы по устранению просадки причала № 5;
- работы по отделке административно-бытового корпуса не выполнялись в соответствии с графиком производства строительно-монтажных работ;
- выполнялись работы по усилению фундамента административно-бытового корпуса;
- завершены работы по антикоррозийному покрытию металлических лестниц и поручней на причалах № 6А и № 6Б;
- завершены работы по антикоррозийному покрытию металлических элементов обустройства на берегоукреплении;
- выполнялись работы по отделке здания служб капитана порта;
- выполнялись работы по ремонту наружных сетей водопровода и канализации;
- выполнялись работы по укладке асфальта на причалах № 6А и № 6Б и на проездах к площадке базы обеспечивающего флота;
- выполнялись работы по устройству дренажных отверстий кабельного лотка причала № 5.
Площадка № 2
- работы по отсыпке территории не выполнялись в соответствии с графиком производства строительно-монтажных работ;
- работы по заливке полов в сооружении насосной станции производственно-противопожарного водоснабжения не выполнялись в соответствии с графиком производства строительно-монтажных работ.
Площадка № 1
- выполнялись работы по разработке рабочей документации;
- выполнялись работы по отделке караульного помещения;
- выполнялись работы по отделке административно-бытового корпуса;
- выполнялись работы по усилению фундамента административно-бытового корпуса;
- выполнялись работы по отделке здания служб капитана порта;
- работы по ремонту наружных сетей водопровода и канализации приостановлены в соответствии с графиком производства строительно-монтажных работ;
- завершены работы по укладке асфальта на причалах № 6А и № 6Б и на проездах к площадке базы обеспечивающего флота;
- завершены работы по устройству дренажных отверстий кабельного лотка причала № 5.
Площадка № 2
- работы на площадке № 2 не выполнялись в соответствии с графиком производства строительно-монтажных работ.
Площадка № 1
- выполнялись работы по разработке рабочей документации;
- работы по отделке караульного помещения приостановлены в соответствии с графиком производства строительно-монтажных работ;
- работы по отделке административно-бытового корпуса приостановлены в соответствии с графиком производства строительно-монтажных работ;
- выполнялись работы по усилению фундамента административно-бытового корпуса;
- выполнялись работы по отделке здания служб капитана порта;
- выполнялись работы по монтажу инженерных сетей здания служб капитана порта;
- выполнялись работы по устранению замечаний Ростехнадзора.
Площадка № 1
- выполнялись работы по разработке рабочей документации;
- работы по усилению фундамента административно-бытового корпуса приостановлены в соответствии с графиком производства строительно-монтажных работ;
- выполнялись работы по отделке здания служб капитана порта;
- выполнялись работы по монтажу инженерных сетей здания служб капитана порта;
- выполнялись работы по устранению замечаний Ростехнадзора.
Площадка № 1
- выполнялись работы по разработке рабочей документации;
- выполнялись работы по усилению фундамента административно-бытового корпуса;
- выполнялись работы по отделке здания служб капитана порта;
- выполнялись работы по монтажу инженерных сетей здания служб капитана порта;
- выполнялись работы по устранению замечаний Ростехнадзора;
- выполнялись работы по подготовке документов для ввода в эксплуатацию завершенных строительством объектов этапа 1.1.1.
Площадка № 2
- выполнялись работы по устройству ограждения строительной площадки.
Площадка № 1
- работы по разработке рабочей документации приостановлены в связи с планируемым расторжением договора подряда;
- работы по усилению фундамента административно-бытового корпуса приостановлены в связи с планируемым расторжением договора подряда;
- работы по отделке здания служб капитана порта приостановлены в связи с планируемым расторжением договора подряда;
- работы по монтажу инженерных сетей здания служб капитана порта приостановлены в связи с планируемым расторжением договора подряда;
- выполнялись работы по устранению замечаний Ростехнадзора;
- выполнялись работы по подготовке документов для ввода в эксплуатацию завершенных строительством объектов этапа 1.1.1.
Площадка № 2
- работы по устройству ограждения приостановлены в связи с планируемым расторжением договора подряда.
Площадка № 1
- уведомлением Северо-Западного бассейнового филиала ФГУП «Росморпорт» от 14.05.2025 № Ф1030-14/2964-ИС подрядная организация уведомлена 27.05.2025 об отказе от исполнения договора подряда от 21.12.2023 № 23-394ОКСиР в одностороннем порядке;
- все строительно-монтажные работы на площадке № 1 приостановлены в связи с расторжением договора подряда;
- завершены работы по устранению замечаний Ростехнадзора и получено заключение Ростехнадзора от 06.05.2025 № 16-21-15 о соответствии построенного объекта капитального строительства указанным в пункте 1 части 5 статьи 49 Градостроительного кодекса Российской Федерации требованиям проектной документации, в том числе с учетом изменений, внесенных в рабочую документацию и являющихся в соответствии с частью 1.3 статьи 52 Градостроительного кодекса Российской Федерации частью такой проектной документации;
- Росморречфлотом выдано разрешение от 23.05.2025 № 47-20-БТ-39/22-2025-ФАМРТ о вводе в эксплуатацию завершенных строительством объектов: причалов № 6А, № 6Б и берегоукрепления.
- строительно-монтажные работы на площадках № 1 и № 2 не осуществляются в связи с расторжением договора подряда.
Срок завершения строительных работ: июль 2025 года.
Срок ввода в эксплуатацию объекта: октябрь 2025 года.
1) операционной акватории комплекса наливных грузов (участок № 1) со следующими характеристиками:
- длина: 814 метров;
- ширина: 215 метров;
- отметка дна: -16 метров;
2) операционной акватории комплекса генеральных грузов (участок № 2) со следующими характеристиками:
- длина: 1 199 метров;
- ширина: 215 метров;
- отметка дна: -16 метров;
3) проходного канала (участок № 3) со следующими характеристиками:
- длина: 2 013 метров;
- ширина: 150 метров;
- отметка дна: -16 метров
Государственный контракт от 26.01.2009 № 65/ДО-09/7-ГК
Дополнительное соглашение от 28.05.2009 № 1;
Дополнительное соглашение от 20.06.2009 № 2;
Дополнительное соглашение от 15.12.2009 № 3;
Дополнительное соглашение от 25.02.2010 № 4;
Дополнительное соглашение от 23.11.2010 № 5;
Дополнительное соглашение от 21.03.2011 № 6;
Дополнительное соглашение от 04.06.2013 № 7;
Дополнительное соглашение от 06.08.2013 № 8;
Дополнительное соглашение от 17.12.2013 № 9;
Соглашение от 25.04.2016 о расторжении государственного контракта от 26.01.2009 № 65/ДО-09/7-ГК.
- выполнены дноуглубительные работы на участке № 3 в объеме более 175,5 тыс. м3 изъятого грунта.
- выполнены промеры в зоне проведения дноуглубительных работ на площади 0,73 км2.
- выполнены промеры в зоне проведения дноуглубительных работ на площади 0,73 км2.
- выполнены дноуглубительные работы на участке № 3 в объеме почти 234 тыс. м3 изъятого грунта;
- выполнены промеры в зоне проведения дноуглубительных работ на площади 0,73 км2.
- выполнены дноуглубительные работы на участке № 3 в объеме 759,4 тыс. м3 изъятого грунта;
- выполнены промеры в зоне проведения дноуглубительных работ на площади 0,73 км2.
- выполнены дноуглубительные работы на участке № 3 в объеме почти 857,1 тыс. м3 изъятого грунта;
- выполнены промеры в зоне проведения дноуглубительных работ на площади 0,73 км2.
- выполнены дноуглубительные работы на участке № 2 в объеме почти 833,1 тыс. м3 изъятого грунта;
- выполнены дноуглубительные работы на участке № 3 в объеме более 86,3 тыс. м3 изъятого грунта;
- выполнены промеры в зоне проведения дноуглубительных работ на площади 0,73 км2.
- выполнены дноуглубительные работы на участке № 2 в объеме более 195,5 тыс. м3 изъятого грунта;
- дноуглубительные работы на участке № 3 не осуществлялись в соответствии с графиком проведения дноуглубительных работ;
- выполнены промеры в зоне проведения дноуглубительных работ на площади 0,73 км2.
- дноуглубительные работы на участке № 2 не осуществлялись в соответствии с графиком проведения дноуглубительных работ;
- дноуглубительные работы на участке № 3 не осуществлялись в соответствии с графиком проведения дноуглубительных работ.
- выполнены дноуглубительные работы на участке № 2 в объеме почти 37,6 тыс. м3 изъятого грунта;
- дноуглубительные работы на участке № 3 не осуществлялись в соответствии с графиком проведения дноуглубительных работ.
- выполнены дноуглубительные работы на участке № 2 в объеме почти 37,6 тыс. м3 изъятого грунта;
- дноуглубительные работы на участке № 3 не осуществлялись в соответствии с графиком проведения дноуглубительных работ.
- дноуглубительные работы на участке № 2 не осуществлялись в соответствии с графиком проведения дноуглубительных работ;
- дноуглубительные работы на участке № 3 не осуществлялись в соответствии с графиком проведения дноуглубительных работ.
- выполнены дноуглубительные работы на участке № 2 в объеме почти 123,6 тыс. м3 изъятого грунта;
- выполнены дноуглубительные работы на участке № 3 в объеме почти 28 тыс. м3 изъятого грунта.
- завершена работа по модифицированию проектной документации в целях выделения завершенных строительных (дноуглубительных) работ в отдельный этап.
- распоряжением Северо-Западного управления Ростехнадзора от 25.07.2017 № 23-759-5313/А принято решение о проведении комиссией Северо-Западного управления Ростехнадзора выездной проверки Северо-Западного бассейнового филиала в рамках осуществления государственного строительного надзора в отношении завершенных строительством работ;
- выполнялась работа по модифицированию проектной документации в целях выделения завершенных строительных (дноуглубительных) работ в отдельный этап;
- выполнялись работы по оформлению документации по завершенным строительным работам для последующего предъявления государственной комиссии в целях приемки в эксплуатацию завершенного строительством объекта;
- завершена работа комиссии Северо-Западного управления Ростехнадзора выездной проверки Северо-Западного бассейнового филиала в рамках осуществления государственного строительного надзора в отношении завершенных строительством работ.
- по итогам работы комиссии Северо-Западного управления Ростехнадзора составлен акт от 17.10.2017 № 23-759-5313-7235/А-234 и выдано предписание от 17.10.2017 № 23-759-5313-3482/ПР-234 об устранении нарушений при строительстве объекта капитального строительства.
- выполнялись работы по оформлению документации по завершенным строительным работам для последующего предъявления государственной комиссии в целях приемки в эксплуатацию завершенного строительством объекта;
- замечания, выявленные по итогам работы комиссии Северо-Западного управления Ростехнадзора, устранены и в адрес Северо-Западного управления Ростехнадзора направлено извещение от 30.11.2017 № 9 об устранении нарушений при строительстве объектов капитального строительства.
- выполнялись работы по оформлению документации по завершенным строительным работам для последующего предъявления государственной комиссии в целях приемки в эксплуатацию завершенного строительством объекта;
- распоряжением Северо-Западного управления Ростехнадзора от 20.12.2017 № 23-759-9115/Рк принято решение о проведении комиссией Северо-Западного управления Ростехнадзора повторной выездной проверки в отношении завершенных строительством работ в рамках осуществления государственного строительного надзора.
- распоряжением Северо-Западного управления Ростехнадзора от 26.02.2018 № 65-р по результатам проверки утверждено положительное заключение от 26.02.2018 № 23-13-06 о соответствии построенного объекта капитального строительства требованиям технических регламентов и проектной документации, в том числе требованиям энергетической эффективности объекта капитального строительства, приборами учета используемых энергетических ресурсов.
- выполнялись работы по оформлению документации по завершенным строительным работам для последующего предъявления государственной комиссии в целях приемки в эксплуатацию завершенного строительством объекта.
- выполнялись работы по оформлению документации по завершенным строительным работам для последующего предъявления государственной комиссии в целях приемки в эксплуатацию завершенного строительством объекта
- получено положительное заключение повторной государственной экспертизы ФАУ «Главгосэкспертиза» от 02.06.2020 № 0019820/СПЭ-18764/701 (№ ЕГРЗ 47-1-1-3-02188820) о соответствии результатов инженерных изысканий и проектной документации требованиям технических регламентов и заданию на проектирование, а также соответствие расчетов сметной документации сметным нормативам, включенным в федеральный реестр сметных нормативов, физическим объемам работ, включенным в ведомость объемов работ.
- выполнялись работы по оформлению документации по завершенным строительным работам для последующего предъявления государственной комиссии в целях приемки в эксплуатацию завершенного строительством объекта.
- завершены работы по оформлению документации по завершенным строительным работам;
- оформлен акт приемки законченного строительством объекта приемочной комиссией от 07.08.2023 по форме КС-14;
- выполнялись работы по оформлению документов по вводу в эксплуатацию завершенного строительством объекта.
- выполнялись работы по оформлению документов по вводу в эксплуатацию завершенного строительством объекта.
Срок ввода в эксплуатацию: ноябрь 2018 года
- строительство судоходной акватории общей площадью дноуглубления 1 275,69 тыс. м2 с отметками дна -17,5 м в составе:
Первый этап (этап 1.2.) – площадь дноуглубления 594,2 тыс. м2:
а) операционной акватории причала № 1 площадью 343,5 тыс. м2 и проектными отметками дна: -17,5 м;
б) операционной акватории причала № 2 площадью 250,7 м2 и проектными отметками дна: -17,5 м.
Второй этап (этап 2.2.) – площадь дноуглубления 277,5 тыс. м2:
а) операционной акватории причала № 3 площадью 138,8 м2 и проектными отметками дна: -17,5 м;
б) операционной акватории причала № 4 площадью 138,8 м2 и проектными отметками дна: -17,5 м.
Третий этап (этап 3.2.) – площадь дноуглубления 394,2 тыс. м2:
операционной акватории причала № 5 площадью 394,2 тыс. м2 и проектными отметками дна: -16,4 м;
- строительство береговых средств навигационного оборудования в составе двух светящих навигационных знаков «УТТ Северный» и «УТТ Южный» типа «Колонна 5-П-Э» высотой 5 м;
- выполнить установку 8 предостерегающих знаков
Дополнительное соглашение от 03.02.2022 № 1
Дополнительное соглашение от 18.01.2023 № 2
Дополнительное соглашение от 06.02.2024 № 3
- выполнялись дноуглубительные работы на операционных акваториях причалов № 1 и № 2 на площади 455,8 тыс. м2 с доведением отметок дна до -8 м и объемом изъятого донного грунта в размере 23,4 тыс. м3.
- выполнялись дноуглубительные работы на операционных акваториях причалов № 1 и № 2 на площади 455,8 тыс. м2 с доведением отметок дна до -8 м и объемом изъятого донного грунта в размере 476,8 тыс. м3.
- выполнялись дноуглубительные работы на операционных акваториях причалов № 1 и № 2 на площади 455,8 тыс. кв. м с доведением отметок дна до -9 м и объемом изъятого донного грунта в размере 435,36 тыс. куб. м.
- выполнялись дноуглубительные работы на операционных акваториях причалов № 1 и № 2 на площади 455,8 тыс. кв. м с доведением отметок дна до -9,5 м и объемом изъятого донного грунта в размере 231,17 тыс. куб. м.
- выполнялись дноуглубительные работы на операционных акваториях причалов № 1 и № 2 на площади 455,8 тыс. м2 с доведением отметок дна до -10,7 м и объемом изъятого донного грунта в размере 363,5 тыс. м3.
- выполнялись дноуглубительные работы на операционных акваториях причалов № 1 и № 2 на площади 455,8 тыс. м2 с доведением отметок дна до -10,8 м и объемом изъятого донного грунта в размере 57 тыс. м3.
- дноуглубительные работы на операционных акваториях причалов № 1 и № 2 приостановлены в связи с неблагоприятными природно-климатическими условиями.
- дноуглубительные работы на операционных акваториях причалов № 1 и № 2 не выполнялись в связи с техническим обслуживанием дноуглубительной техники.
- дноуглубительные работы на операционных акваториях причалов № 1 и № 2 не выполнялись в соответствии с графиком производства дноуглубительных работ.
- выполнялись дноуглубительные работы на операционных акваториях причалов № 1 и № 2 на площади 455,8 тыс. кв. м с доведением отметок дна до -11,5 м и объемом изъятого донного грунта в размере 305,6 тыс. куб. м.
- выполнялись дноуглубительные работы на операционных акваториях причалов № 1 и № 2 на площади 455,8 тыс. кв. м с доведением отметок дна до -12 м и объемом изъятого донного грунта в размере 350,1 тыс. куб. м.
- выполнялись дноуглубительные работы на операционных акваториях причалов № 1 и № 2 на площади 455,8 тыс. кв. м с доведением отметок дна до -13 м и объемом изъятого донного грунта в размере 432,2 тыс. куб. м.
первый этап
- выполнялись дноуглубительные работы на операционных акваториях причалов № 1 и № 2 на площади 455,8 тыс. кв. м с доведением отметок дна до -13,5 м и объемом изъятого донного грунта в размере 239,1 тыс. куб. м.
второй этап
- выполнялись дноуглубительные работы на операционных акваториях причалов № 3 и № 4 на площади 267,2 тыс. кв. м с доведением отметок дна до -10,5 м и объемом изъятого донного грунта в размере 174,7 тыс. куб. м.
первый этап
- выполнялись дноуглубительные работы на операционных акваториях причалов № 1 и № 2 на площади 455,8 тыс. кв. м с доведением отметок дна до -14 м и объемом изъятого донного грунта в размере 230,9 тыс. куб. м.
второй этап
- выполнялись дноуглубительные работы на операционных акваториях причалов № 3 и № 4 на площади 267,2 тыс. кв. м с доведением отметок дна до -11 м и объемом изъятого донного грунта в размере 280,3 тыс. куб. м.
первый этап
- выполнялись дноуглубительные работы на операционных акваториях причалов № 1 и № 2 на площади 455,8 тыс. кв. м с доведением отметок дна до -14,5 м и объемом изъятого донного грунта в размере 142,9 тыс. куб. м.
второй этап
- выполнялись дноуглубительные работы на операционных акваториях причалов № 3 и № 4 на площади 267,2 тыс. кв. м с доведением отметок дна до -11,5 м и объемом изъятого донного грунта в размере 546,2 тыс. куб. м.
первый этап
- выполнялись дноуглубительные работы на операционных акваториях причалов № 1 и № 2 на площади 455,8 тыс. кв. м с доведением отметок дна до -15 м и объемом изъятого донного грунта в размере 294,2 тыс. куб. м.
второй этап
- выполнялись дноуглубительные работы на операционных акваториях причалов № 3 и № 4 на площади 267,2 тыс. кв. м с доведением отметок дна до -12 м и объемом изъятого донного грунта в размере 353,9 тыс. куб. м.
первый этап
- дноуглубительные работы на операционных акваториях причалов № 1 и № 2 приостановлены в связи с неблагоприятными природно-климатическими условиями.
второй этап
- дноуглубительные работы на операционных акваториях причалов № 3 и № 4 приостановлены в связи с неблагоприятными природно-климатическими условиями.
первый этап
- выполнялись дноуглубительные работы на операционных акваториях причалов № 1 и № 2 на площади 455,8 тыс. кв. м с доведением отметок дна до -15,3 м и объемом изъятого донного грунта в размере 9,3 тыс. куб. м.
второй этап
- дноуглубительные работы на операционных акваториях причалов № 3 и № 4 не выполнялись в соответствии с планом проведения дноуглубительных работ.
первый этап
- выполнялись дноуглубительные работы на операционных акваториях причалов № 1 и № 2 на площади 455,8 тыс. кв. м с доведением отметок дна до -16 м и объемом изъятого донного грунта в размере 148,2 тыс. куб. м.
второй этап
- выполнялись дноуглубительные работы на операционных акваториях причалов № 3 и № 4 на площади 267,2 тыс. кв. м с доведением отметок дна до -12,5 м и объемом изъятого донного грунта в размере 53,6 тыс. куб. м.
первый этап
- выполнялись дноуглубительные работы на операционных акваториях причалов № 1 и № 2 на площади 455,8 тыс. кв. м с доведением отметок дна до -16,15 м и объемом изъятого донного грунта в размере 288,8 тыс. куб. м.
второй этап
- выполнялись дноуглубительные работы на операционных акваториях причалов № 3 и №4 на площади 267,2 тыс. кв. м с доведением отметок дна до -12,65 м и объемом изъятого донного грунта в размере 134,4 тыс. куб. м.
первый этап
- выполнялись дноуглубительные работы на операционных акваториях причалов № 1 и № 2 на площади 455,8 тыс. кв. м с доведением отметок дна до -16,3 м и объемом изъятого донного грунта в размере 199,3 тыс. куб. м.
второй этап
- выполнялись дноуглубительные работы на операционных акваториях причалов № 3 и № 4 на площади 267,2 тыс. кв. м с доведением отметок дна до -12,8 м и объемом изъятого донного грунта в размере 126,8 тыс. куб. м.
первый этап
- выполнялись дноуглубительные работы на операционных акваториях причалов № 1 и № 2 на площади 455,8 тыс. кв. м с доведением отметок дна до -16,45 м и объемом изъятого донного грунта в размере 242,8 тыс. куб. м.
второй этап
- выполнялись дноуглубительные работы на операционных акваториях причалов № 3 и № 4 на площади 267,2 тыс. кв. м с доведением отметок дна до -12,95 м и объемом изъятого донного грунта в размере 140 тыс. куб. м.
первый этап
- выполнялись дноуглубительные работы на операционных акваториях причалов № 1 и № 2 на площади 455,8 тыс. кв. м с доведением отметок дна до -16,6 м и объемом изъятого донного грунта в размере 199,5 тыс. куб. м.
второй этап
- выполнялись дноуглубительные работы на операционных акваториях причалов № 3 и № 4 на площади 267,2 тыс. кв. м с доведением отметок дна до -13,1 м и объемом изъятого донного грунта в размере 92,7 тыс. куб. м.
первый этап
- выполнялись дноуглубительные работы на операционных акваториях причалов № 1 и № 2 на площади 594,2 тыс. кв. м с доведением отметок дна до -16,7 м и объемом изъятого донного грунта в размере 91,6 тыс. куб. м.
второй этап
- выполнялись дноуглубительные работы на операционных акваториях причалов № 3 и № 4 на площади 335,6 тыс. кв. м с доведением отметок дна до -13,15 м и объемом изъятого донного грунта в размере 5,7 тыс. куб. м.
третий этап
- выполнялись дноуглубительные работы на операционной акватории причала № 5 на площади 345 тыс. кв. м с доведением отметок дна до -10 м и объемом изъятого донного грунта в размере 187,5 тыс. куб. м.
первый этап
- выполнялись дноуглубительные работы на операционных акваториях причалов № 1 и № 2 на площади 594,2 тыс. кв. м с доведением отметок дна до -16,8 м и объемом изъятого донного грунта в размере 96,6 тыс. куб. м.
второй этап
- дноуглубительные работы на операционных акваториях причалов № 3 и № 4 приостановлены в соответствии с результатами промерных работ на этом участке.
третий этап
- выполнялись дноуглубительные работы на операционной акватории причала № 5 на площади 345 тыс. кв. м с доведением отметок дна до -10,95 м и объемом изъятого донного грунта в размере 312,7 тыс. куб. м.
первый этап
- выполнялись дноуглубительные работы на операционных акваториях причалов № 1 и № 2 на площади 594,2 тыс. кв. м с доведением отметок дна до -17 м и объемом изъятого донного грунта в размере 203,6 тыс. куб. м.
третий этап
- выполнялись дноуглубительные работы на операционной акватории причала № 5 на площади 345 тыс. кв. м с доведением отметок дна до -10,98 м и объемом изъятого донного грунта в размере 15,9 тыс. куб. м.
первый этап
- дноуглубительные работы на операционных акваториях причалов № 1 и № 2 на площади 594,2 тыс. кв. м приостановлены в связи с истечением срока действия разрешения на захоронения донного грунта, извлеченного при проведении дноуглубительных работ, во внутренних водах Российской Федерации.
третий этап
- дноуглубительные работы на операционной акватории причала № 5 на площади 345 тыс. кв. м приостановлены в связи с истечением срока разрешения на захоронения донного грунта, извлеченного при проведении дноуглубительных работ, во внутренних водах Российской Федерации.
- дноуглубительные работы не выполнялись в связи с истечением срока действия разрешения на захоронения донного грунта, извлеченного при проведении дноуглубительных работ во внутренних водах Российской Федерации.
первый этап
- выполнялись дноуглубительные работы на операционных акваториях причалов № 1 и № 2 на площади 594,2 тыс. кв. м с доведением отметок дна до -17,02 м и объемом изъятого донного грунта в размере 12,4 тыс. куб. м.
первый этап
- выполнялись дноуглубительные работы на операционных акваториях причалов № 1 и № 2 на площади 594,2 тыс. кв. м с доведением отметок дна до -17,1 м и объемом изъятого донного грунта в размере 41,9 тыс. куб. м.
третий этап
- выполнялись дноуглубительные работы на операционной акватории причала № 5 на площади 345 тыс. кв. м с доведением отметок дна до -11,0 м и объемом изъятого донного грунта в размере 23,9 тыс. куб. м.
первый этап
- выполнялись дноуглубительные работы на операционных акваториях причалов № 1 и № 2 на площади 594,2 тыс. кв. м с доведением отметок дна до -17,35 м и объемом изъятого донного грунта в размере 266,5 тыс. куб. м.
второй этап
- выполнялись дноуглубительные работы на операционных акваториях причалов № 3 и № 4 на площади 335,6 тыс. кв. м с доведением отметок дна до -13,30 м и объемом изъятого донного грунта в размере 29,7 тыс. куб. м.
третий этап
- выполнялись дноуглубительные работы на операционной акватории причала № 5 на площади 345 тыс. кв. м с доведением отметок дна до -11,03 м и объемом изъятого донного грунта в размере 4,4 тыс. куб. м.
первый этап
- выполнялись дноуглубительные работы на операционных акваториях причалов № 1 и № 2 на площади 594,2 тыс. кв. м с доведением отметок дна до -17,39 м и объемом изъятого донного грунта в размере 124 тыс. куб. м.
второй этап
- выполнялись дноуглубительные работы на операционных акваториях причалов № 3 и № 4 на площади 335,6 тыс. кв. м с доведением отметок дна до -13,33 м и объемом изъятого донного грунта в размере 17,6 тыс. куб. м.
третий этап
- выполнялись дноуглубительные работы на операционной акватории причала № 5 на площади 345 тыс. кв. м с доведением отметок дна до -11,05 м и объемом изъятого донного грунта в размере 4,2 тыс. куб. м.
первый этап
- выполнялись дноуглубительные работы на операционных акваториях причалов № 1 и № 2 на площади 594,2 тыс. кв. м с доведением отметок дна до -17,4 м и объемом изъятого донного грунта в размере 63,8 тыс. куб. м.
второй этап
- дноуглубительные работы на операционных акваториях причалов № 3 и № 4 приостановлены в соответствии с графиком производства дноуглубительных работ.
третий этап
- дноуглубительные работы на операционной акватории причала № 5 приостановлены в соответствии с графиком производства дноуглубительных работ.
первый этап
- выполнялись дноуглубительные работы на операционных акваториях причалов № 1 и № 2 на площади 594,2 тыс. кв. м с доведением отметок дна до -17,42 м и объемом изъятого донного грунта в размере 38,9 тыс. куб. м.
третий этап
- выполнялись дноуглубительные работы на операционной акватории причала № 5 на площади 345 тыс. кв. м с доведением отметок дна до -13,3 м и объемом изъятого донного грунта в размере 223,9 тыс. куб. м.
первый этап
- выполнялись дноуглубительные работы на операционных акваториях причалов № 1 и № 2 на площади 594,2 тыс. кв. м с доведением отметок дна до -17,43 м и объемом изъятого донного грунта в размере 15,5 тыс. куб. м.
второй этап
- выполнялись дноуглубительные работы на операционных акваториях причалов № 3 и № 4 на площади 335,6 тыс. кв. м с доведением отметок дна до - 13,35 м и объемом изъятого донного грунта в размере 2,6 тыс. куб. м.
третий этап
- выполнялись дноуглубительные работы на операционной акватории причала № 5 на площади 345 тыс. кв. м с доведением отметок дна до -13,35 м и объемом изъятого донного грунта в размере 445,5 тыс. куб. м.
первый этап
- завершены дноуглубительные работы на операционных акваториях причалов № 1 и № 2 на площади 594,2 тыс. кв. м с доведением отметок дна до -17,5 м и объемом изъятого донного грунта в размере 18,6 тыс. куб. м. Всего выполнено дноуглубительных работ на операционных акваториях причалов № 1 и № 2 на площади 594,2 тыс. кв. м с доведением отметок дна до -17,5 м и объемом изъятого донного грунта в размере почти 5,8 млн куб. м;
- завершены работы по строительству створных навигационных знаков «УТТ Южный» и «УТТ Северный»;
- выполнялись работы по оформлению документов на ввод объектов первого этапа в эксплуатацию.
второй этап
- выполнялись дноуглубительные работы на операционных акваториях причалов № 3 и № 4 на площади 335,6 тыс. кв. м с доведением отметок дна до - 13,5 м и объемом изъятого донного грунта в размере 16,8 тыс. куб. м.
третий этап
- выполнялись дноуглубительные работы на операционной акватории причала № 5 на площади 345 тыс. кв. м с доведением отметок дна до -13,5 м и объемом изъятого донного грунта в размере 160,3 тыс. куб. м.
первый этап
- получено заключение Северо-Западного управления Ростехнадзора от 20.12.2024 № 16-07-59 о соответствии построенного объекта капитального строительства требованиям проектной документации (в том числе с учетом изменений, внесенных в рабочую документацию и являющихся в соответствии с частью 1.3 статьи 52 Градостроительного кодекса Российской Федерации частью такой проектной документации);
- получено заключение, выдаваемое в случаях, предусмотренных частью 5 статьи 54 Градостроительного кодекса Российской Федерации, утвержденное приказом Северо-Западного межрегионального управления Росприроднадзора от 13.12.2024 № 770-ПР, которым установлено соответствие построенного объекта капитального строительства обязательным требованиям в области охраны окружающей среды, а также соответствие проектной документации, получившей положительное заключение государственной экологической экспертизы федерального уровня;
- получено разрешение Росморречфлота от 24.12.2024 № 47-30-БТ-39/85-2024-ФАМРТ на ввод в эксплуатацию построенного объекта капитального строительства.
второй этап
- выполнялись дноуглубительные работы на операционных акваториях причалов № 3 и № 4 на площади 335,6 тыс. кв. м с доведением отметок дна до - 13,6 м и объемом изъятого донного грунта в размере 29,2 тыс. куб. м.
третий этап
- выполнялись дноуглубительные работы на операционной акватории причала № 5 на площади 345 тыс. кв. м с доведением отметок дна до -13,6 м и объемом изъятого донного грунта в размере 88,1 тыс. куб. м.
второй этап
- выполнялись дноуглубительные работы на операционных акваториях причалов № 3 и № 4 на площади 335,6 тыс. кв. м с доведением отметок дна до -15 м и объемом изъятого донного грунта в размере 13,8 тыс. куб. м.
третий этап
- дноуглубительные работы на операционной акватории причала № 5 приостановлены в соответствии с графиком производства дноуглубительных работ.
второй этап
- выполнялись дноуглубительные работы на операционных акваториях причалов № 3 и № 4 на площади 335,6 тыс. кв. м с доведением отметок дна до -15,5 м и объемом изъятого донного грунта в размере 12,1 тыс. куб. м.
второй этап
- выполнялись дноуглубительные работы на операционных акваториях причалов № 3 и № 4 на площади 335,6 тыс. кв. м с доведением отметок дна до -15,7 м и объемом изъятого донного грунта в размере 11,7 тыс. куб. м.
второй этап
- выполнялись дноуглубительные работы на операционных акваториях причалов № 3 и № 4 на площади 335,6 тыс. кв. м с доведением отметок дна до -15,8 м и объемом изъятого донного грунта в размере 32,8 тыс. куб. м.
второй этап
- выполнялись дноуглубительные работы на операционных акваториях причалов № 3 и № 4 на площади 335,6 тыс. кв. м с доведением отметок дна до -16 м и объемом изъятого донного грунта в размере 38,4 тыс. куб. м.
второй этап
- выполнялись дноуглубительные работы на операционных акваториях причалов № 3 и № 4 на площади 335,6 тыс. кв. м с доведением отметок дна до -16,2 м и объемом изъятого донного грунта в размере 31,9 тыс. куб. м.
второй этап
- выполнялись дноуглубительные работы на операционных акваториях причалов № 3 и № 4 на площади 335,6 тыс. кв. м с доведением отметок дна до -16,5 м и объемом изъятого донного грунта в размере 104,7 тыс. куб. м.
второй этап
- выполнялись дноуглубительные работы на операционных акваториях причалов № 3 и № 4 на площади 335,6 тыс. кв. м с доведением отметок дна до -16,7 м и объемом изъятого донного грунта в размере 163,3 тыс. куб. м.
второй этап
- выполнялись дноуглубительные работы на операционных акваториях причалов № 3 и № 4 на площади 335,6 тыс. кв. м с доведением отметок дна до -16,8 м и объемом изъятого донного грунта в размере 118,6 тыс. куб. м.
второй этап
- выполнялись дноуглубительные работы на операционных акваториях причалов № 3 и № 4 на площади 335,6 тыс. кв. м с доведением отметок дна до -16,9 м и объемом изъятого донного грунта в размере 64,8 тыс. куб. м.
второй этап
- выполнялись дноуглубительные работы на операционных акваториях причалов № 3 и № 4 на площади 277,5 тыс. кв. м с доведением отметок дна до -17,1 м и объемом изъятого донного грунта в размере 40,5 тыс. куб. м.
второй этап
- выполнялись дноуглубительные работы на операционных акваториях причалов № 3 и № 4 на площади 277,5 тыс. кв. м с доведением отметок дна до -17,4 м и объемом изъятого донного грунта в размере 66,6 тыс. куб. м.
Срок сдачи в эксплуатацию объектов:
- объекты первого этапа: не позднее 28 ноября 2024 года;
- объекты второго этапа: не позднее 27 ноября 2025 года;
- объекты третьего этапа: не позднее 4 октября 2026 года;
- всего комплекса объектов: до 4 апреля 2027 года
Строительство операционной акватории причалов № 1 и № 2 строящегося морского терминала по перевалке минеральных удобрений в морском порту Усть-Луга осуществляется в целях обеспечения безопасного подхода и маневрирования расчетных судов длиной 225 м, шириной до 32,2 м и осадкой в грузу до 13,1 м, следующих к строящимся причалам № 1 и № 2 морского терминала по перевалке минеральных удобрений в морском порту Усть-Луга проектной мощностью 7 млн тонн в год
В рамках проекта строительства операционной акватории причалов № 1 и № 2 в морском порту Усть-Луга планируется:
- создать акваторию площадью 116,4 тыс. м2 с отметками дна -16 м
- строительно-монтажные работы не выполнялись в связи с выходом из строя мобилизированной дноуглубительной техники.
- выполнялись дноуглубительные работы на акватории причала № 2 на площади 102,4 тыс. кв. м с доведением отметок дна до -3 м и объемом изъятого донного грунта в размере 13,1 тыс. куб. м.
- выполнялись дноуглубительные работы на акватории причала № 2 на площади 102,4 тыс. м с доведением отметок дна до -6 м и объемом изъятого донного грунта в размере 35 тыс. куб. м.
- выполнялись дноуглубительные работы на акватории причала № 2 на площади 102,4 тыс. м с доведением отметок дна до -6,3 м и объемом изъятого донного грунта в размере 50 тыс. куб. м.
- выполнялись дноуглубительные работы на акватории причала № 2 на площади 102,4 тыс. кв. м с доведением отметок дна до -6,4 м и объемом изъятого донного грунта в размере 16,1 тыс. куб. м.
- выполнялись дноуглубительные работы на акватории причала № 2 на площади 80 тыс. кв. м с доведением отметок дна до -7,8 м и объемом изъятого донного грунта в размере 16,5 тыс. куб. м.
- выполнялись дноуглубительные работы на акватории причала № 2 на площади 80 тыс. кв. м с доведением отметок дна до -8,0 м и объемом изъятого донного грунта в размере 33 тыс. куб. м.
- выполнялись дноуглубительные работы на акватории причала № 2 на площади 80 тыс. кв. м с доведением отметок дна до -8,5 м и объемом изъятого донного грунта в размере 37,3 тыс. куб. м.
- выполнялись дноуглубительные работы на акватории причала № 2 на площади 80 тыс. кв. м с доведением отметок дна до -11,5 м и объемом изъятого донного грунта в размере 62,2 тыс. куб. м.
- выполнялись дноуглубительные работы на акватории причала № 2 на площади 80 тыс. кв. м с доведением отметок дна до -12 м и объемом изъятого донного грунта в размере 50,9 тыс. куб. м.
- выполнялись дноуглубительные работы на акватории причала № 2 на площади 80 тыс. кв. м с доведением отметок дна до -12,2 м и объемом изъятого донного грунта в размере 60,2 тыс. куб. м.
- выполнялись дноуглубительные работы на акватории причала № 2 на площади 15 тыс. кв. м с доведением отметок дна до -15,5 м и объемом изъятого донного грунта в размере 36,5 тыс. куб. м.
Срок завершения работ: 31 декабря 2024 года.
Срок ввода в эксплуатацию: 31 марта 2025 года







